2024. 5. 10. 15:54ㆍPROJECT/Story
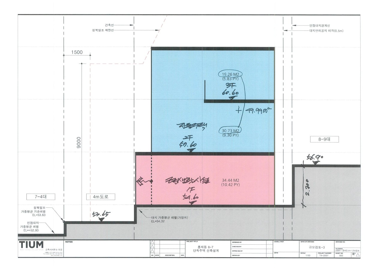
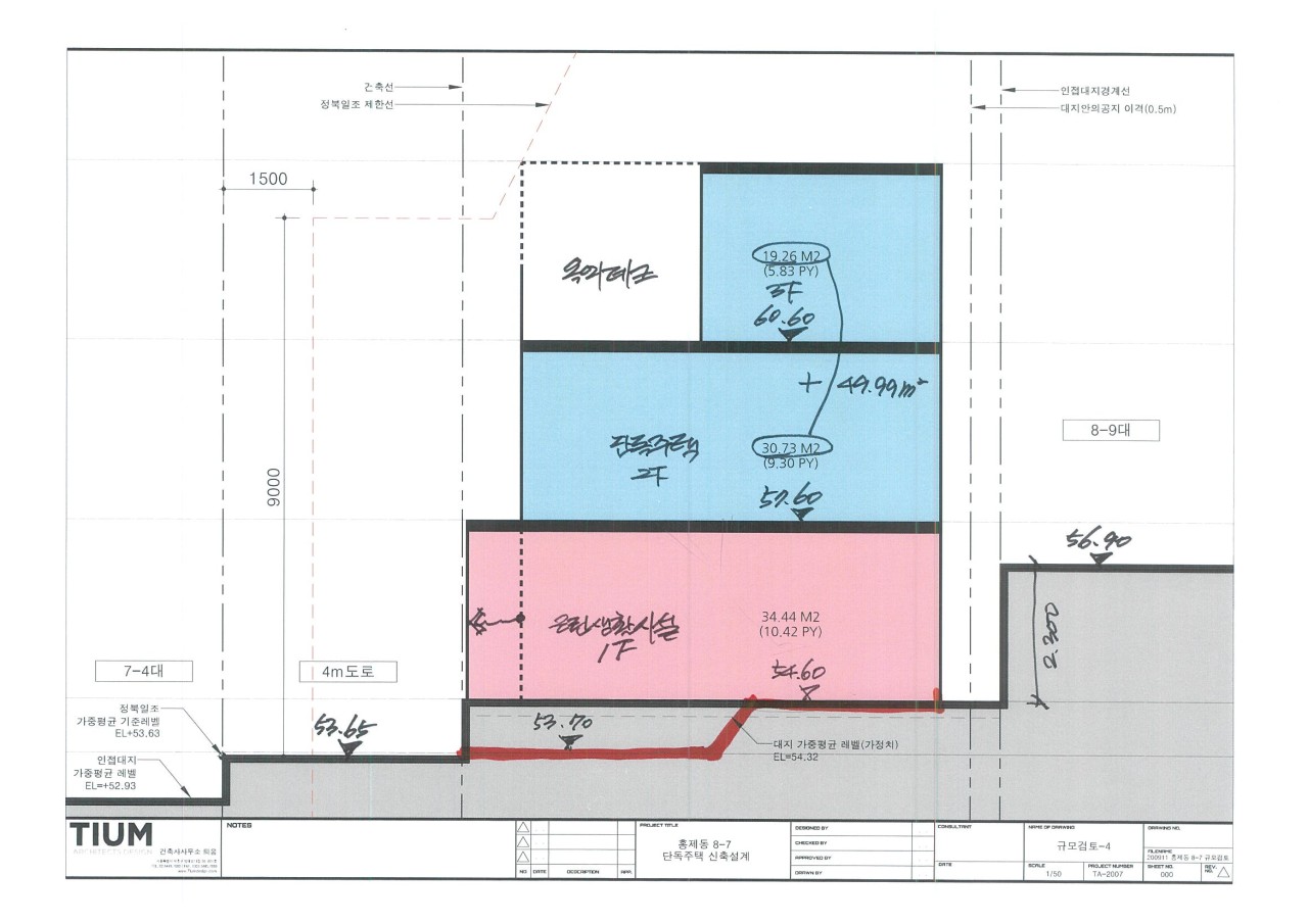
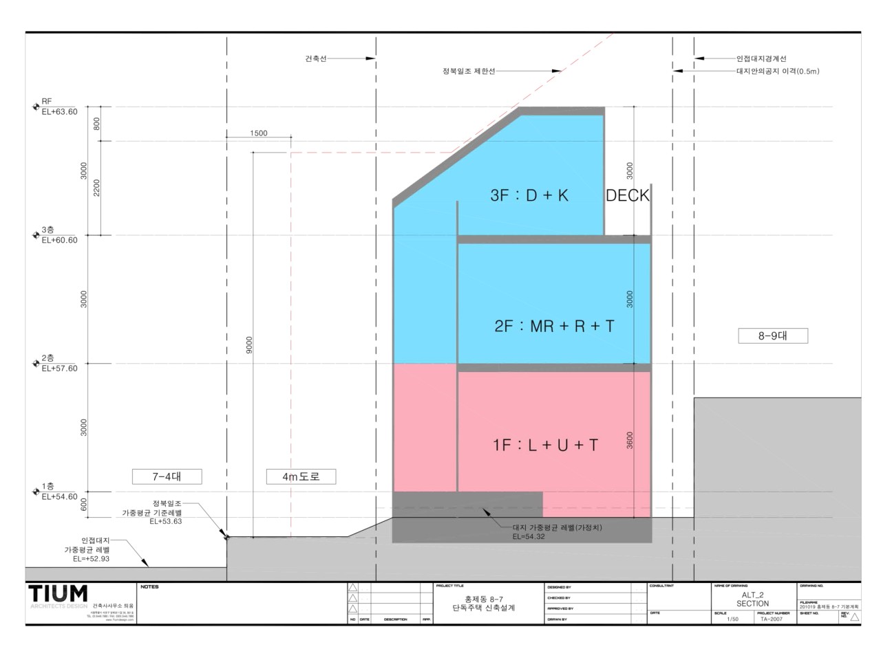
1) 층고 관련
- 현재 규모검토 3m 기준에서 아래와 같은 계획 내용과 조율하며 향후 진행
- 계획에 따라 1층 레벨을 다운 하여 최대 층고 확보,
- 침실로 구성된 층은 층고를 낮게, 나머지 공용공간쪽은 최대 층고 확보하며 계획 진행
2) 면적 관련
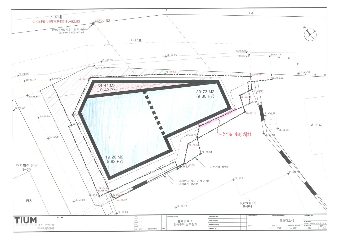
- 주차를 안하는 규모로 전체 규모 산정
- 1층 근린생활시설 면적은 여유가 있음
- 2,3층 단독주택은 현재 50㎡ 미만으로 계획하여야 하기때문에 전체 면적을 다 찾을수 없음.
--> 근린생활시설의 여유면적을 2층까지 확보하지는 않고 1층에 최대한 확보하는 방향으로 진행
단독주택은 법적면적 50㎡를 맞추는 방향에서 법적면적에 포함되지 않는 다락, 확장형 발코니 면적, 내부 오프닝(채적확보) 계획을 통해 계획방향을 잡음.














1. 평면도
1) 설계개요
- 단독주택 면적 50㎡ 미만(주차 안하는 규모)
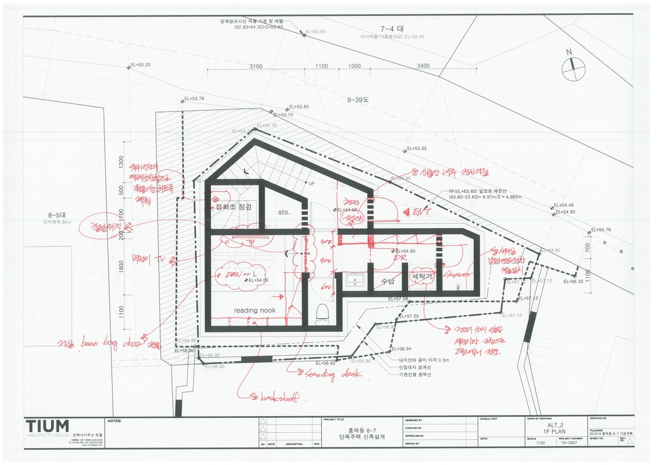
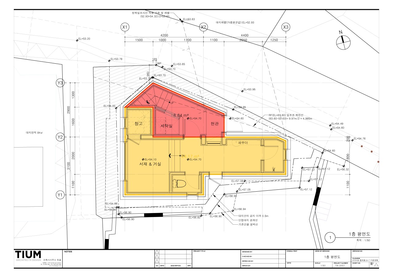
2) 1층 평면도
- 근린생활시설 1층 면적 확보를 위해 정화조 검검 창고를 근생쪽으로 도어 계획하여 근린생활시설에서 활용하도록 계획
- 1층으로 내려온 세탁실 공간에 맞는 세탁기, 건조기 크기 제안
- 신발장 깊이 40cm 확보

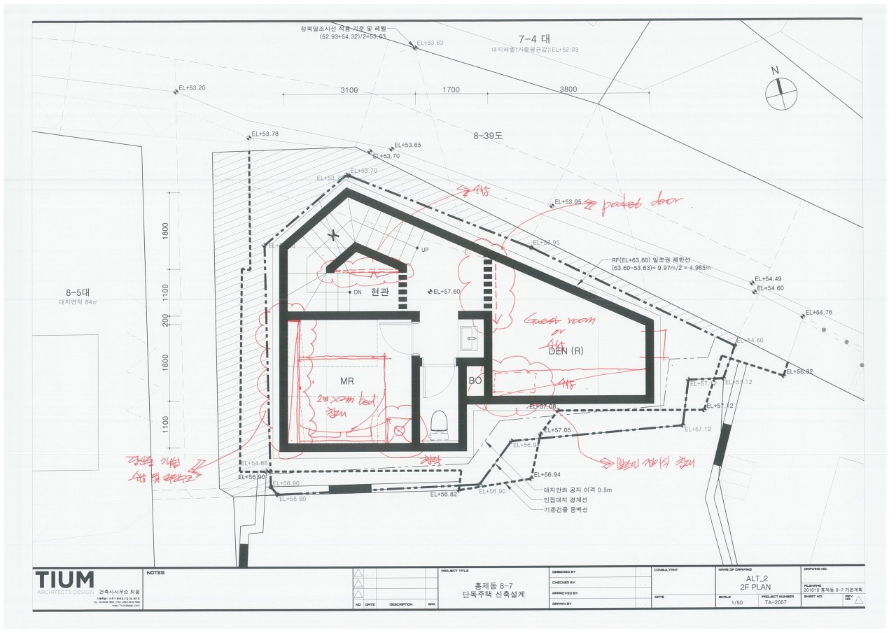
3) 2층 평면도

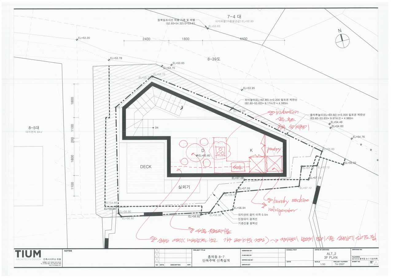
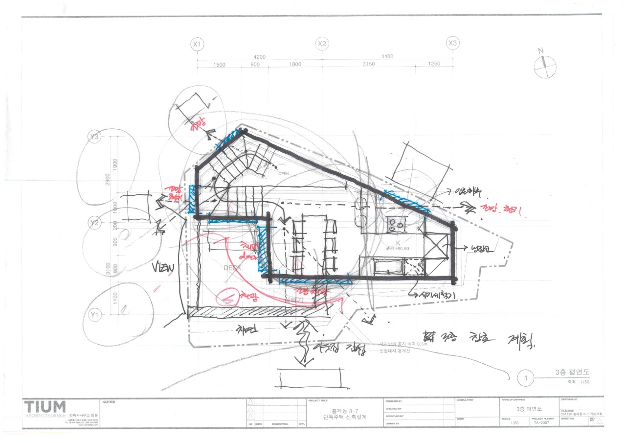
4) 3층 평면도
주방 현재 레이아웃에서 식기세척기 위치 조정후 코너부 수납으로 쓸 수 있도록 계획

2. 건축주 요청사항 정리
1) 커텐박스 계획 --> 현재 계획 분위기에 맞춰 블라인드 고려
2) international outlet ---> 한층에 하나씩 계획 가능하다면 ( 추후 전기분야와 협의하여 가능하면 적용)
3) 화장실 문 --> 유리 타공도어 (상부에 시창 있는 타입) 1,2층 화장실 적용
4) 자립형 우편함 위치 --> 추후 검토 후 제안
5) 서재(거실) 책꽂이 계획 --> 높이 2m 이상에 300 높이 다음은 천장높이까지 해서 책장 계획
6) 창호 내부 (창 턱) 최대한 나올수 있도록 계획
7) 인터폰 계획 관련 --> 1층(근생), 2,3층(단독주택) 두개로 계획 (추후 전열, 전등 계획하여 건축주와 협의)
8) 1층 샤워실 해바리기 샤워기에 호스 샤워기로 계획
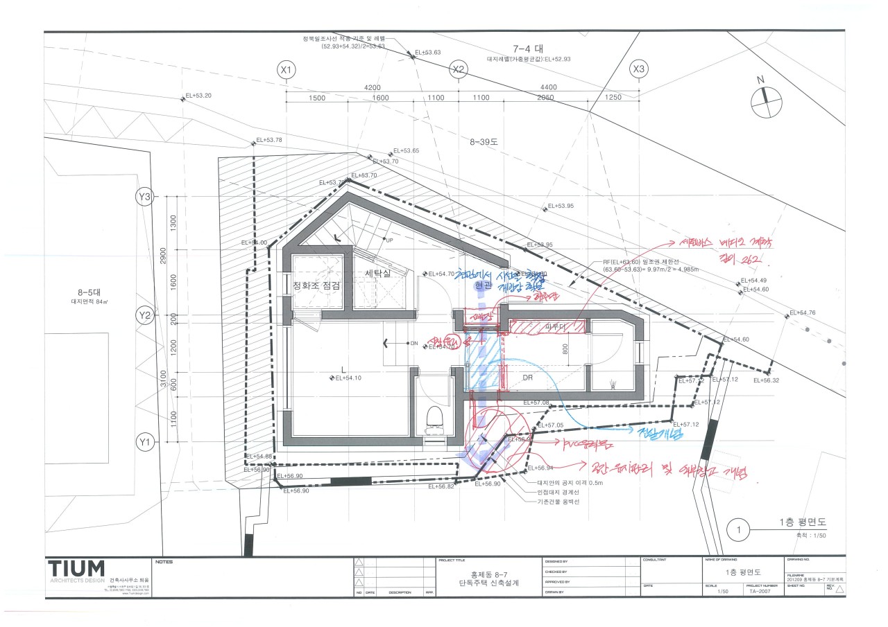
1F PLAN 협의내용 정리
- 뒤 후정공간을 활용 및 현관에서의 개방감까지 고려하여 계획방향 정리
- 신발장 높이 조절 상단 개방감을 위한 시창 계획
- 후정 진입을 위한 도어계획(유지관리 측면)
- 신발장 시창과 후정까지 시각적 연결을 위해 도어 유리 도어로 계획
- 위와 같이 정리하고 다음 미팅에 1층 PLAN이슈의 대안을 가지고 금번 미팅 3층 PLAN 결정과 같은 과정으로 정리하고자 함.





















| [2023] 영등포업 PART-1 (0) | 2024.05.10 |
|---|---|
| [2023] 남산주택 (0) | 2024.05.10 |
| [2022] 정미소 (0) | 2024.03.11 |
| [2022] 림 (0) | 2024.01.08 |
| [2022] 슴 (0) | 2024.01.08 |