2024. 5. 10. 18:04ㆍPROJECT/Story

이태원 협소주택 시작을 위해 프로그램 구상중 입니다.
다른 듯 같은 부부의 거주 특성을 고려해야 합니다. 함께 시간을 소중하게 생각하는 만큼 공유하는 정주공간을 중심으로 보조공간들의 위계를 설정합니다.
먼저 고민되는 구성은 주 정주공간; 거실,주방,식당의 포지션을 어떻게 설정하느냐 입니다.
수직으로 적층되는 공간의 특성상, 정주공간이 저층에 위치하여, 안정적인 거주를 도모할 수 있습니다.
조금은 외부로 부터 시선 및 간섭을 받지 않아야 하는 침실을 출입구로 부터 멀리하는 장점도 있습니다. 하지만 대지의 특성상, (경사지에 위치한 주거밀집지역) 상층부와 저층부의 환경이 매우 다릅니다.
이웃한 집들 덕분에(?) 상층으로 올라가야 이웃건물의 간섭없이 시야가 열리고, 동네를 한눈에 내려다 보는 전망도 열립니다. 그래서 건축주와 함께 고민하는 프로그램은 주 정주공간을 상층부로, 대신 침실을 저층으로 계획하고 있습니다.
물론, 외부로 부터 불필요한 간섭을 받지 않도록 침실은 충분히 버퍼를 만들어 주고, 안정적인 위치를 계획 할 예정입니다.

이태원동에 위치한 이번 협소주택은 이태원보다 남산, 후암동에 더 가까운 대지 입니다.
이태원이 갖고 있는 지리적 특징이 고스란히 반영된 대지로, 형상은 네모반듯하지 않고, 앞과 뒤, 경사가 있으며, 도로 또한 그닥 넓지 않아 고민이 많이 필요한 대지 입니다.
대신 경사지의 거의 끝자락에 위치한 덕분에 집의 상층부는 도시를 전망하는 뷰포인트를 만들 수 있고, 남산과 가까워 보도로 산책할 수 있는 숲세권을 갖고 있습니다.
색채가 짙은 대지 덕분에 이번 작업은 매우 흥미로울 듯 싶습니다.






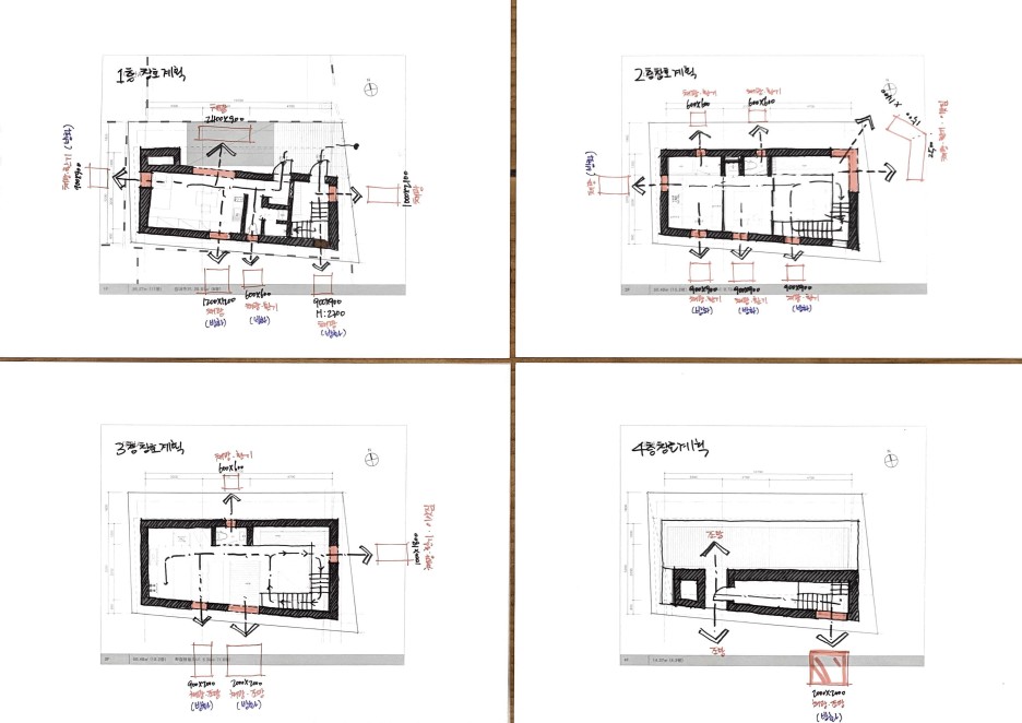
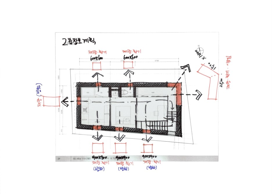
내부와 외부를 연결하는 소통의 창구 역활과 자연채광 유입으로 내부조도를 일정하게 유지하는 목적으로 창호를 설치 합니다. 여기에 환기와 조망을 위한 설정값이 더해집니다.
주거 밀집지역 내 위치한 이번 주택의 특성상, 도로에 접한 동측면을 제외하고 북,서,남측에는 건물이 인접한 상태입니다. 채광과 조망을 확보하기 위해서 (이웃한 건물과 간섭 없는 생활권 보장을 위해서는) 계획시, 높이가 확보되는 3층 구간에 정주공간(거실,주방,식당)을 배치 합니다. 그리고 남측으로 열리는 대형창호를 계획, 건물의 채광과 조망을 확보합니다. 2층 동측에 웰컴공간에는 도로와 관계 맺는 코너창을 설치, 건물의 정면성과 외부의 관계를 설정합니다.
각 동선을 따라 공간이 열리도록 동선창호를 설치하고, 각각의 정주공간에 창호를 반영합니다.





이태원 주택의 평면구성은,
외부의 조건과 내부의 조건; 대지현황과 건축주의 요구조건의 합을 맞추어 봅니다.
북측에서 남측으로 경사진 대지의 조건과 동서방향으로 긴 대지형상 그리고 동측으로 접한 4미터 현황도로의 관계는 건축물을 동서방향으로 긴 리니어한(linear) 평면구성을 시작하게 합니다. 여기에 주차장 확보를 위해 1층의 일부분은 도로와 관계를 맺어야 합니다. 긴 평면구성에서는 건물 시작동선을 어디에 위치하느냐에 따라 성격이 달라집니다. 동, 서 단부에 설치하는 경우, 깊숙히 위치한 프로그램이 동떨어지지 않도록 앞에 시작하는 프로그램과 관계를 설정해야 합니다. 이를 통해 연속된 오픈플랜을 구현 할 수 있습니다. 건물의 중심부에 동선이 시작하는 경우는 양쪽으로 공간구성이 가능하기 때문에 효율적인 동선체계와 합리적인 공간구분이 가능합니다. 대신, 연속된 또는 확장된 오픈플랜이 아닌, 구분되어 독립적으로 사용하는 프로그램으로 사용하게 됩니다.
선택의 방향은 작은면적을 확장하여 사용할 수 있도록 동측 동선배치로 시작합니다.
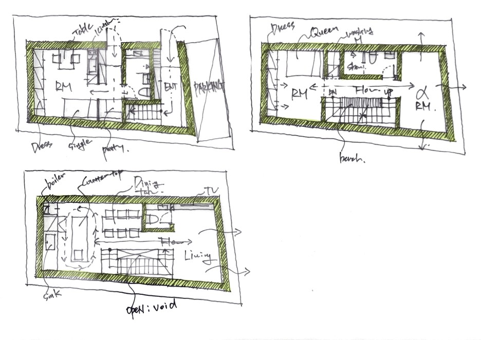
1층은 주차장 배치와 알파공간; 건축주 개인 사무실
2층은 내외부를 버퍼하는 웰컴공간과 침실 그리고 욕실과 드레스공간
3층은 외부로 열리는 전망과 채광을 누릴 수 있는 정주공간; 거실, 주방,식탁으로 구성
4층은 북측으로 열린 외부데크와 건축주의 아지트 공간
각층을 연계하는 수직동선에 중간레벨을 설정, 각 지점에 윈도우시트를 배치합니다. 2층의 윈도우 시트는 웰컴공간 속에서 활용될 수 있도록 하며, 3층의 윈도우 시트는 서가 역활을 할 수 있도록 책장과 함께 배치됩니다.






이태원과 남산이 만나는 지점에 위치한 대지의 성격은 고스란히 건축에 반영됩니다. 대지의 경사는 북측에서 남측으로 흘러가며, 자연스레 북측면에 테라스 공간과 경사벽체를 생성합니다.

폭 4미터 골목길에서 마주하는 집의 첫인상을 위해, 도시와 건축을 연결하는 코너창을 계획합니다. 내부에 위치한 윈도우 시트를 통해 도시와 마주할 수 있으며, 풍부한 채광을 확보합니다.



1층 현관을 통해 들어온 2층(주생활공간)은 전실(웰컴스페이스), 침실, 드레스룸으로 구성됩니다.




3층은 건축주 부부를 위한 공용공간으로 남측으로 열린 조망과 채광을 누릴 수 있도록 계획되었습니다. 주방,식탁과 거실사이에 위치한 평상(중간지대)는 사용자의 생활방식을 반영, 다목적으로 사용됩니다.


4층 테라스와 3층을 연결, 고측창을 통해 풍부한 채광을 확보합니다.



스플릿레벨로 설정된 계단은 윈도우시트 기능을 겸하며, 기능적인 동선을 확보합니다.
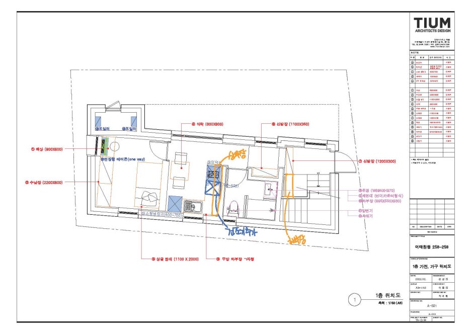
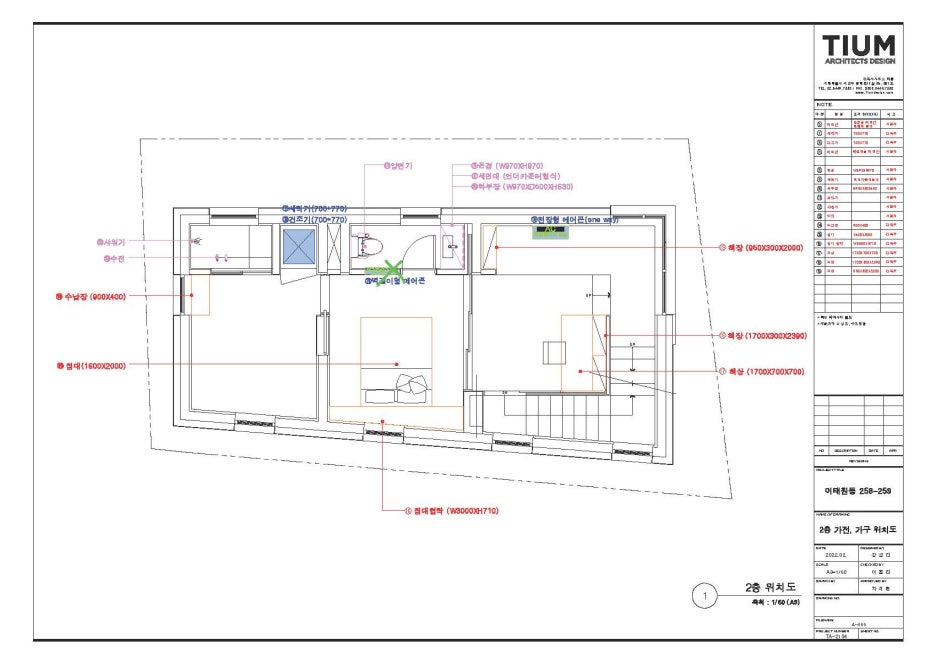
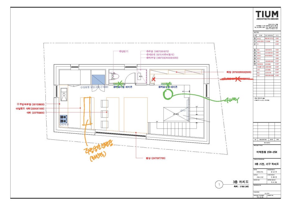
실시설계로 넘어가기 전 거주공간 및 생활과 맞물려 있는 기능적인 요소 중 하나인 전등, 배선기구를 설정합니다. 여기에 함께 가전, 가구를 함께 고려하여 실생활에 더 밀착된 공간 구현을 만듭니다.








| [2023] 영등포업 PART-2 (0) | 2024.08.16 |
|---|---|
| [2023] 영등포업 PART-1 (0) | 2024.05.10 |
| [2022] 홍제동 (0) | 2024.05.10 |
| [2022] 정미소 (0) | 2024.03.11 |
| [2022] 림 (0) | 2024.01.08 |