2024. 1. 8. 19:44ㆍPROJECT/Story

전원주택을 지으면 현재 건축업을 하고 계신 건축주가 서울에 본인 가족(아내와 딸2)을 위한 보금자리를 마련하기 위해 설계를 맡겨주셨다. 설계과정 내내 건축주와 조금 더 건축적인 언어로 피드백을 주고받으며 진행했고 이러한 소통 과정이 이번 프로젝트에 또 다른 깊이와 재미를 주었다.
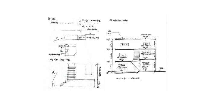
초기의 건축주는 저층부를 임대로 주고 공용계단을 통해 주인세대가 최상층으로 올라가 루프탑 공간을 활용하는 일반적인 층별 구분인 저층부 임대+상층부 주인세대를 생각하셨다. 하지만 위와 같은 일반적 구성으로 건축주의 생각을 담기 어렵다는 판단을 한 후, 건축주와 처음부터 다시 소요공간의 규모를 정리하고 공간의 성격을 규명한 후 생각의 우선순위를 함께 정리하며 초기의 생각한 단면구성을 뒤집자고 제안 드렸다.



임대를 최상층으로 구성하여 루프탑 개념을 임대세대의 상품성으로 치환하여 임대가치를 높이고 주인세대는 작업실과 거주공간을 연속적으로 구성하여 저층부를 전체 활용하는 방안을 제안했다. 비록 주인세대와 임대세대의 동선이 완전히 분리되어 동선으로 쓰는 공용면적이 증가하는 단점이 있지만, 위의 같은 단점이 해결될 수 있다면 제안한 단면 구성은 건축주에게 최적의 결과물을 가져 드릴 거라고 판단했다. 이러한 단점을 최소화하고 건축주에게 온전히 맞춰진 개성 있고 편안한 공간계획, 임대세대를 더욱 매력적인 공간으로 만들어 임대가치를 높이는 일이 이번 프로젝트의 시작점이 되었다.

내부공간도 건물 전체 디자인 맥락과 같이 하도록 계획한다. 평면계획에서 부터 고민하고 제안드렸던 기본적인 가구의 배치를 시작으로 정리된 내부 마감재료의 재질 및 색상, 톤을 시뮬레이션 하고 최종적으로 결정된 재료를 기준으로 실제로 연출 가능한 소품들을 최소한 배치하여 내부공간의 분위기를 함께 보여드림으로서 건축주에게 향후 입주 후 본인이 살아 갈 공간의 이해를 돕는다.
-1F 작업실



-1F공동현관

2F공용공간(L+D+K)






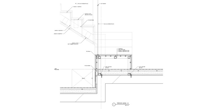
2층 내부 공간의 메인 컨셉은 정방향의 내부 평면에 중앙에 위치한 내부계단의 오브제화이다. 내부계단을 디자인 요소로 활용하여 공간, 가구와 어울릴 수 있도록 디자인 한다. 아래는 내부 계단의 구체화단계 이다.




3F 사적공간 (Reading nook + MR + R1 + R2 + Utility)








긴 여정 끝. 사용승인이 완료 됐다.
사용승인 필증을 전달하러 잠시 방문한 건축주의 새 보금자리는 짐 정리를 위해 분주하게 움직이며 바쁜 일정을 보내고 있었다.
좋은 바탕에 이제는 건축주분의 색깔로 채워질 시간이다.
앞으로 건축주의 색깔로 채워질 공간의 이야기가 기대되고, 설계 시 상상했던 공간의 이야기가 어떻게 보여질지 기대한다.
2달 후 준공촬영을 위해 다시 마주할 림하우스와 잠시 인사하고 사무실로 돌아온다.








| [2022] 홍제동 (0) | 2024.05.10 |
|---|---|
| [2022] 정미소 (0) | 2024.03.11 |
| [2022] 슴 (0) | 2024.01.08 |
| [2021] 레이어드 (0) | 2024.01.08 |
| [2021] 모슬포: 카렌시아 (2) | 2024.01.08 |