2024. 3. 11. 19:28ㆍPROJECT/Story
![]() |
![]() |
![]() |
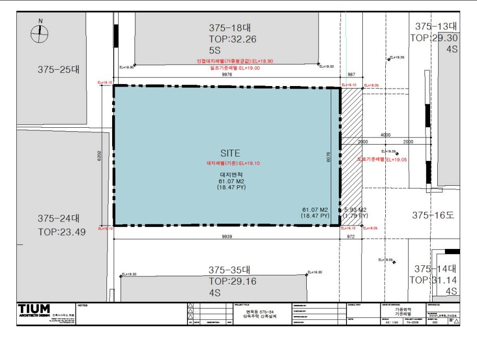
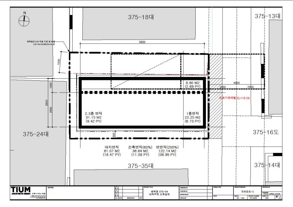
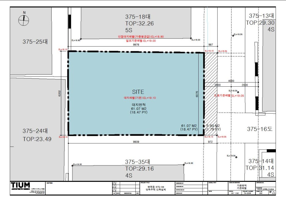
동측 4m도로를 제외한 남서북측에 건물이 인접해 있는 상황. 게다가 건물 일부분은 이웃한 집과 담장 또는 건물벽체 일부분을 공유하고 있는 상황.
![]() |
![]() |
![]() |
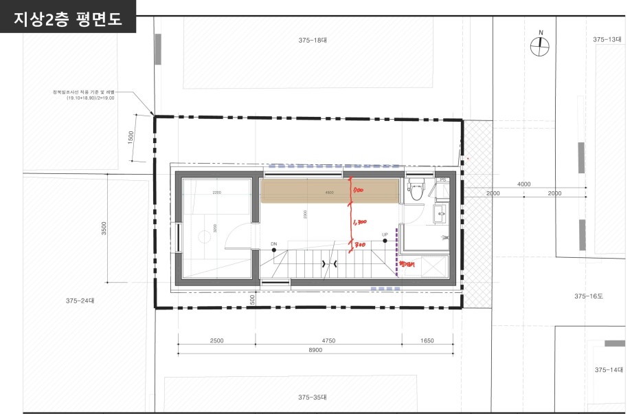
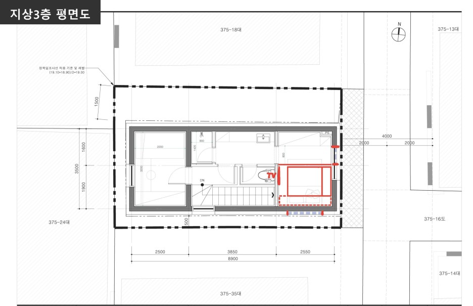
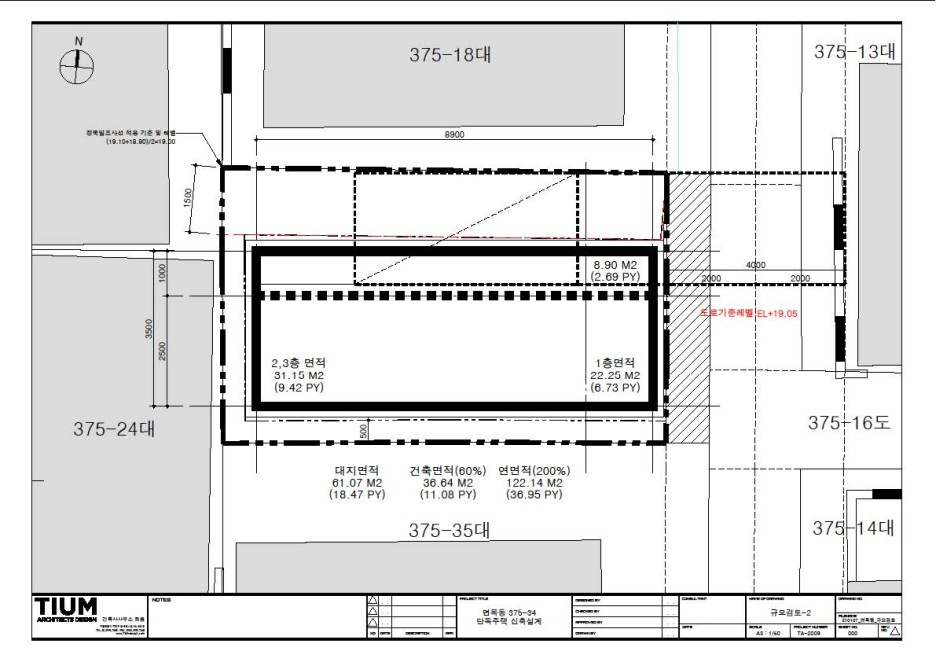
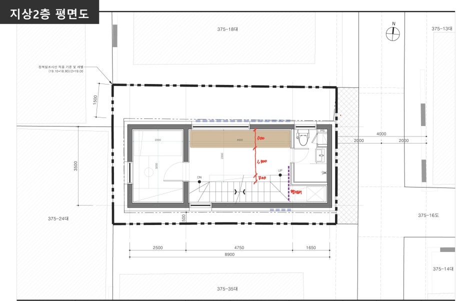
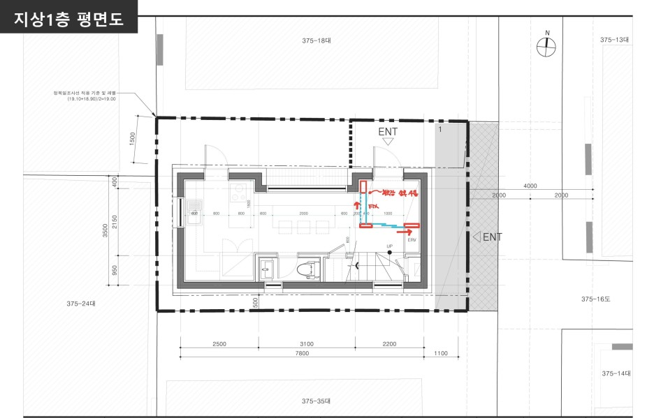
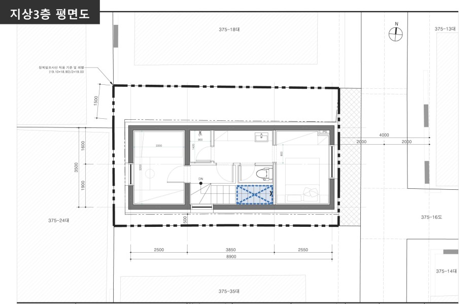
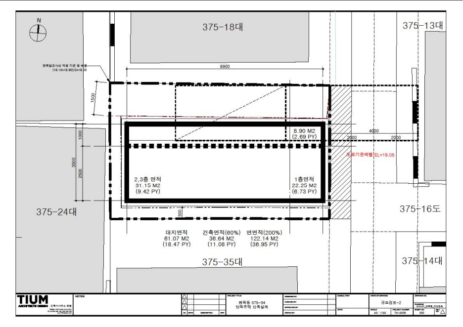
건축면적은 대지면적의 60%에 해당하는 31.15㎡(약9평)이며, 연면적을 찾기 위한 층수는 3개층 규모까지 가능함.(대지의 장변방향으로 정북사선이 적용되어, 4층부터는 건축공간 형성이 어려움)

주차를 포함한 외부공간 사용을 위해서는 1층 일부분을 외부로 할애해야 하는 함
![]() |
![]() |
![]() |
건축물의 용도, 규모로 볼때 법정주차를 만들지 않아도 되는 규모로 판단되나, 실사용적인 측면을 고려한 대안 협의


10평씩 3개층에 4인가족인 거주해야 하는 프로그램.
(1층은 외부공간으로 할애하여 10평이 안되는 규모)
공용공간의 위치에 따라 각자의 생활공간을 배치함.
지금의 생활도 중요하지만, 현재 성인인 두 자녀가 출가한 후 집의 사용패턴도 고려해야 함.

B2: 공용공간 저층+ 개인공간 상층
공용공간과 개인공간(침실)을 수직으로 분리하는 프로그램. 1층을 주방,식당공간으로 제안, 외부로 확장하여 사용.
2층 거실 배치, 1층과 분리된 세컨드 공용공간 구성. 메인침실을 포함한 3개의 침실은 서로의 크기에 따라 짝을 이루며 배치함, 2층 공간에 거실과 침실을 배치하며, 3층에는 메인침실과 침실을 배치함.

B4: 개인공간 / 개인공간
1층에 독립적으로 메인침실을 배치함. 3개층 중, 2층에 공용공간을 배치하고, 3층에는 두개의 침실을 배치함.
개인공간의 독립성을 확보하며, 공간의 중심; 2층에 공용공간을 배치하며 효율적인 동선을 확보함.



![]() |
![]() |
![]() |
![]() |
![]() |
![]() |
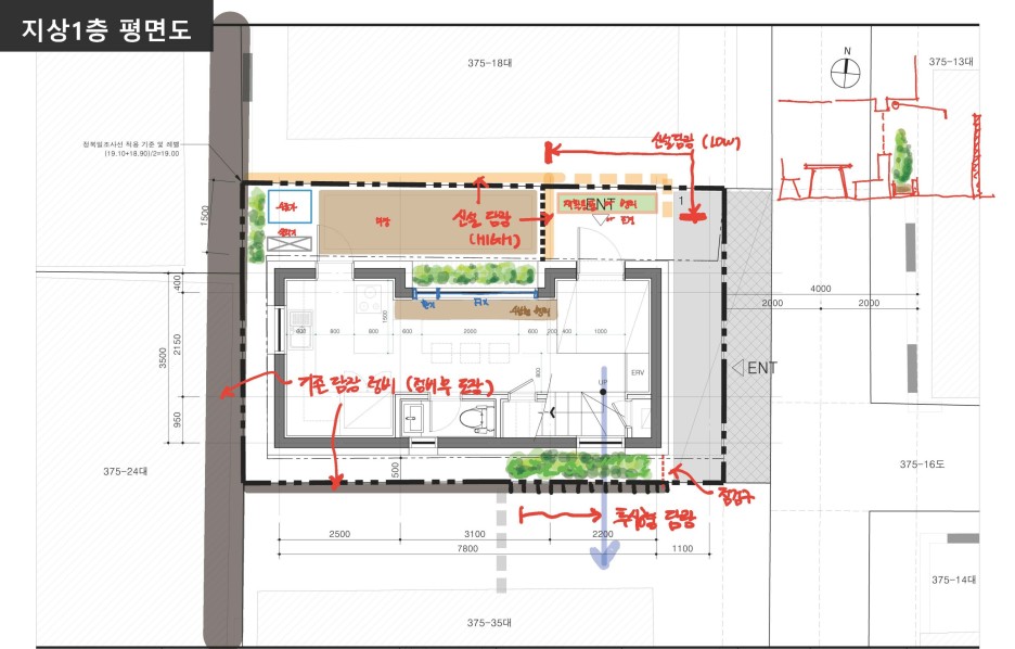
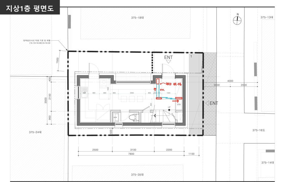
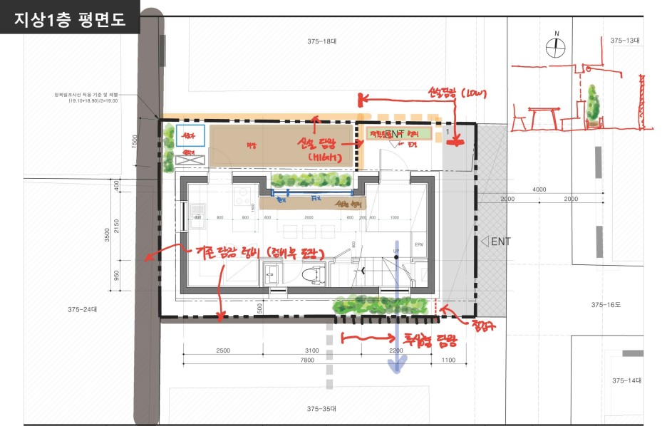
1. 현관 중문 및 장식장 : 개방감을 확보할 수 있도록 유리 중문 설치 / 장식장은 앞뒷면에 유리 설치 (내부 개폐형, 현관쪽 고정형)
2. 정원 및 담장 : 건축주 의견 청취 예정
정원 : 알코브(외부에 화단+어닝 설치)+고정형 벤치(등받이 부분까지 벽체 설치)+LS창호(고정+부분 환기창)
주방측에는 실외기 및 수돗가 설치 / 이외 마당 설치 제안
담장 : 기존담장+신설담장 부분 설명
3. 매립형 샤워기 설치 : 해바라기 + 핸드샤워기 매립형으로 설치
4. 변기(3개소) 측면 청소용 스프레이건 설치 : 비데용으로 사용시 냉수 사용에 대한 부분은 별도 의견 청취 예정
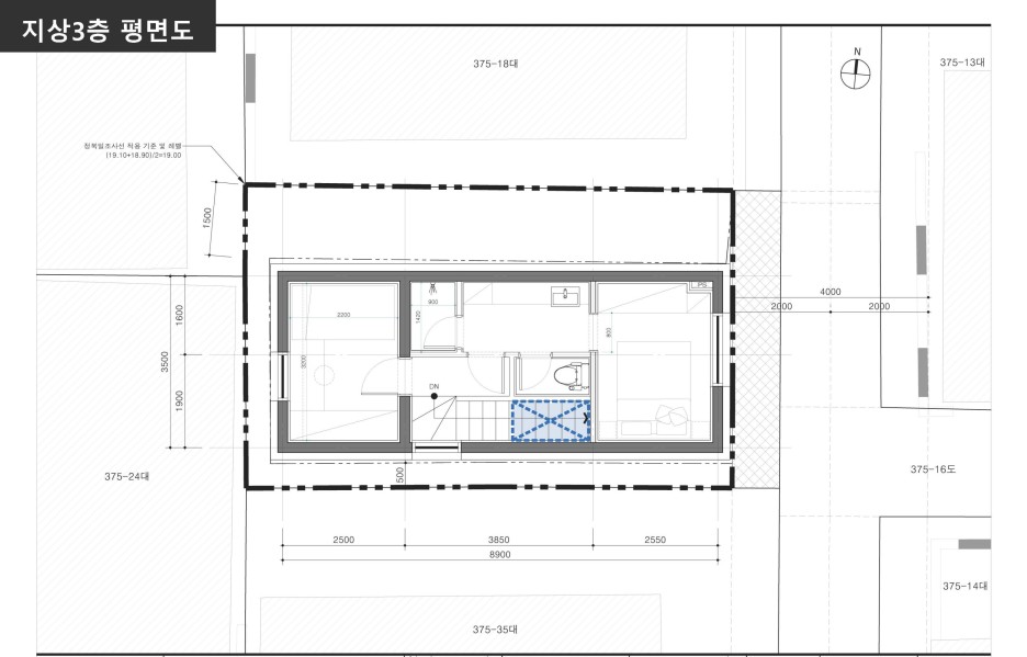
5. 2층 거실 : 북측 창호는 프라이버시 확보하는 방향으로 설치 (작고 가로로 긴창 형식 고려) / 2층 수납형 벤치는 700mm로 확대 설치 (전면부 통로 확보 및 화장실 문과의 간섭 고려)
6. 3층 MR : TV 설치를 위한 레이아웃 조정 및 남향 창호 설치 검토
7. 천창 : 외부 조망이 아닌, 남측 채광에 대한 보완으로 설치하려는 천창은 유지관리가 (경험상) 어렵지 않음. (청소가 필요하다는 사용자 의견을 듣지 못함) 설치 여부에 대하여, 건축주 의견 청취하기로 함.
![]() |
![]() |
![]() |
![]() |
![]() |
![]() |
![]() |
![]() |
![]() |
<기초공사>
습식공사, 콘크리트 공사를 대체하는 스틸하우스 공사; 콜드폼시스템(CFS)를 적용한 면목동 협소주택의 시공과정입니다.
협소한 대지 위에 구축되야 하는 시공의 어려움을 극복하기 위한 방법론으로 이번 작업은 의미가 있습니다. 공장에서 사전제작(3차원 모델링으로 부재를 설계, 제작)된 부재를 현장 조립으로 이루어지는 시공과정은 습식공사(철근콘크리트 공사)의 단점을 보완합니다.
이러한 시공은 공장제작한 자재를 현장에서 조립하는 모듈러주택과 동일한 시공성을 확보합니다.
![]() |
![]() |
![]() |
![]() |
![]() |
![]() |
<기초위 1층 벽체 시공>
![]() |
![]() |
![]() |
![]() |
![]() |
![]() |
![]() |
![]() |
![]() |
<2층, 3층 CFS 구조프레임 구축>
![]() |
![]() |
![]() |
![]() |
![]() |
![]() |
<2층, 3층 CFS 구조프레임 구축>
CFS(스틸하우스)의 장점 중 하나는 공정을 분리하여 운영이 가능하다. 습식공사의 경우, 철근콘크리트를 타설하는 공정 중에 기계분야와 전기분야가 함께 들어와서 작업을 해야 한다. 그만큼 복잡하고 관리하기가 힘들다. 더러는 각 기계도면과 전기도면이 있는데도 불구하고, 작업자가 편한대로 시공하기도 한다. (작은 현장들의 한계가 아닐까?)
이와 달리, CFS는 구조설계와 MEP 간섭을 검토한 부재들이 공장에서 제작된다. (공장제작되는 모듈러 주택과 동일하다.)
기계분야(배수,오수,우수,전열교환기라인, 냉매배관과 같이 직경이 어느이상되는 관류)의 관이 횡주 또는 입상하는 지점을 표시한다. 이렇게 각 계통의 루트가 파악된 현장에서는 현장과 각 분야가 조율한 스케쥴에 맞쳐 진행하면 된다.
여기서 한발 더 나아가 모듈러 주택에 적용할 수 있도록 mep를 설계하는 것도 반영해야 한다.
![]() |
![]() |
![]() |
![]() |
![]() |
![]() |
![]() |
![]() |
![]() |
![]() |
![]() |
![]() |
![]() |
![]() |
![]() |
![]() |
![]() |
![]() |
![]() |
![]() |
![]() |
![]() |
![]() |
![]() |
면목동 협소주택의 특징 중 하나는 고유한 텍스쳐를 부여한 일이다. 협소주택을 진행하다보면, 작은 면적 안에서 가장 합리적인 선택들을 하게 된다. 선택의 과정 중, 우선순위를 놓고 보면 거주자의 삶을 담는 내부공간에 더 많은 초점을 맞추게 된다. 그렇게 완성된 프로그램의 발현은 가장 현실적인 형태로 표현된다. 개구부-창문- 또한 가장 현실적인 형태로 구현된다. 그런데 재미있는 점은 그렇게 현실적인 표현이, 오히려 건축물에 힘을 실어주고 당위성을 만들어 준다. 형태가 기능을 따라가는 것처럼 건축은 공간을 따라가고, 외형도 내부를 따라간다.
우리들끼리 그런이야기를 많이 한다. 잘 풀어진 공간-건축-은 원래 그렇게 되어 있는 것처럼 자연스러워 보인다고, 그래서 머 특이하게 보이지 않고, 한듯 안한듯 평범해 보인다고 이야기 한다. 그런데 역설적으로 그렇게 자연스럽게 보이기 만들기 위해서, 수많은 선들을 정리하고, 수많은 간섭사항을 정리한다.
면목동에 적용한 스토(STO)는 Linear 10 제품에 핑크컬러를 매치한 결과물로 예상했던 것보다 고유한 분위기를 만들어 낸다. 핑크컬러가 주변으로 부터 분리된 튀는 이미지를 만들 것 같은 우려와 달리, 이웃한 붉은색 벽돌건물과도 어울리고, 전체 동네분위기와도 파스텔톤으로 잘 맞아 들어간다. 원래 그렇게 자리 했던 것처럼 자리한다. 우리가 하는 건축처럼 자연스럽게 장소에 위치한다.
![]() |
![]() |
![]() |
면목동협소주택의 특이점 중 하나는 구도심, 협소한 대지 위에 유연하게 적용 할 수 있는 스틸하우스 구조입니다.
습식공사; 철근콘크리트 공사에 비해서 협소한 대지에서도 수월하게 작업이 가능합니다. 사전제작된 구조체는 현장에서 조립을 하기 때문에 시공기간을 줄일 수 있으며, 자재를 현장에 적재하지 않고 바로 구축할 수 있습니다.
| [2023] 남산주택 (0) | 2024.05.10 |
|---|---|
| [2022] 홍제동 (0) | 2024.05.10 |
| [2022] 림 (0) | 2024.01.08 |
| [2022] 슴 (0) | 2024.01.08 |
| [2021] 레이어드 (0) | 2024.01.08 |