2024. 1. 8. 18:50ㆍPROJECT/Story

(어쩌면 너무 당연한 요구와 방향이라고 생각들지만) 임차인에게 매력적인 임대 거주공간과 건축주를 위한 단독주택 구현을 목표로 시작합니다.
삼송택지개발지구의 지침을 따라 최대 5가구 이하로 가구수를 시작합니다. 주인세대를 제외한 임대가구(4가구)의 조닝이 이번 프로젝트의 흥미로운 지점이 될 것 입니다.
(택지개발 지구 마다 지구단위계획이 있어, 일반적인 법규보다 강화된 지침을 적용 받는다.)

두가지 배치 대안에서 시작합니다.
첫번째는 일반적인 주거유닛 배치 입니다. 빌라와 같은 공동주거에서 범용적으로 사용되는 주거배치형식으로 코어를 중심으로 층마다 단층 주거 유닛이 배치됩니다.
두번째는 로우하우스(LOW HOUSE)와 유사한 복층형 주거유닛을 연접한 주거배치 형식입니다. 출입구를 공유하는 대신 각자의 출입구 계획과 지면을 활용 할 수 있는 배치 형식입니다.


두가지 장면을 생각했습니다. 도로에 면한 정면은 가로환경을 연결하는 주택의 모습을 그립니다. 대신 강가를 따라 연속된 산책로에 면한 후면은 저층가구가 외부환경과 호흡하는 활동적인 생활모습을 생각했습니다.
백색에 가까운 롱브릭은 주택의 담백한 맛을 잘 살리는 동시에 조형적인 입체감이 살아 날 수도 있도록 적용되었습니다.


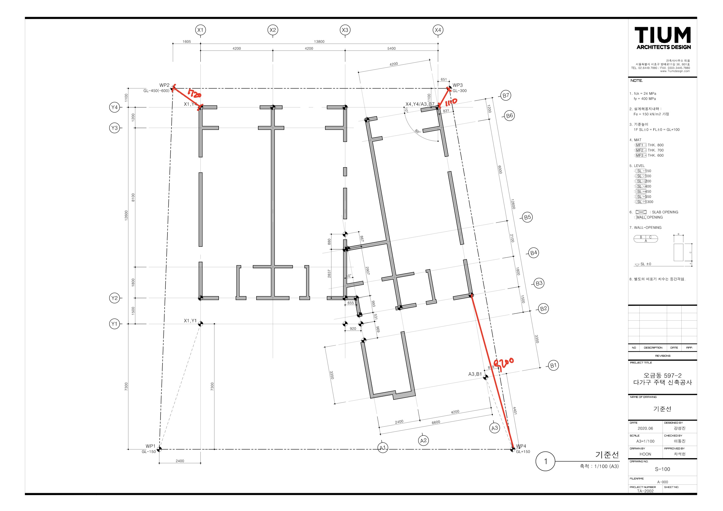
콘크리트를 현장에서 타설하는 습식공사에서 설계의 의도를 구현하기 위해서는 시공자뿐만이라 설계자의 관심도 필요합니다. 건물이 각 지점에서 명확하게 위치하는지, 바닥의 레벨은 마감의 두께와 위치를 고려하여 타설되었는지, 공간을 구획하는 동시에 수직하중을 연속시키는 구조벽은 구조도면과 일치한지, 타설된 골조를 검측합니다. 현장에서 타설하는 것을 감안하여, 시공오차 (최종 마감에 따라 구조해석 범위내에서 허용할 수 있습니다.)를 고려합니다.











| [2022] 림 (0) | 2024.01.08 |
|---|---|
| [2022] 슴 (0) | 2024.01.08 |
| [2021] 모슬포: 카렌시아 (2) | 2024.01.08 |
| [2021] 자곡까사 (0) | 2024.01.08 |
| [2020] 소사본동 (0) | 2024.01.08 |