2024. 1. 8. 17:24ㆍPROJECT/Story


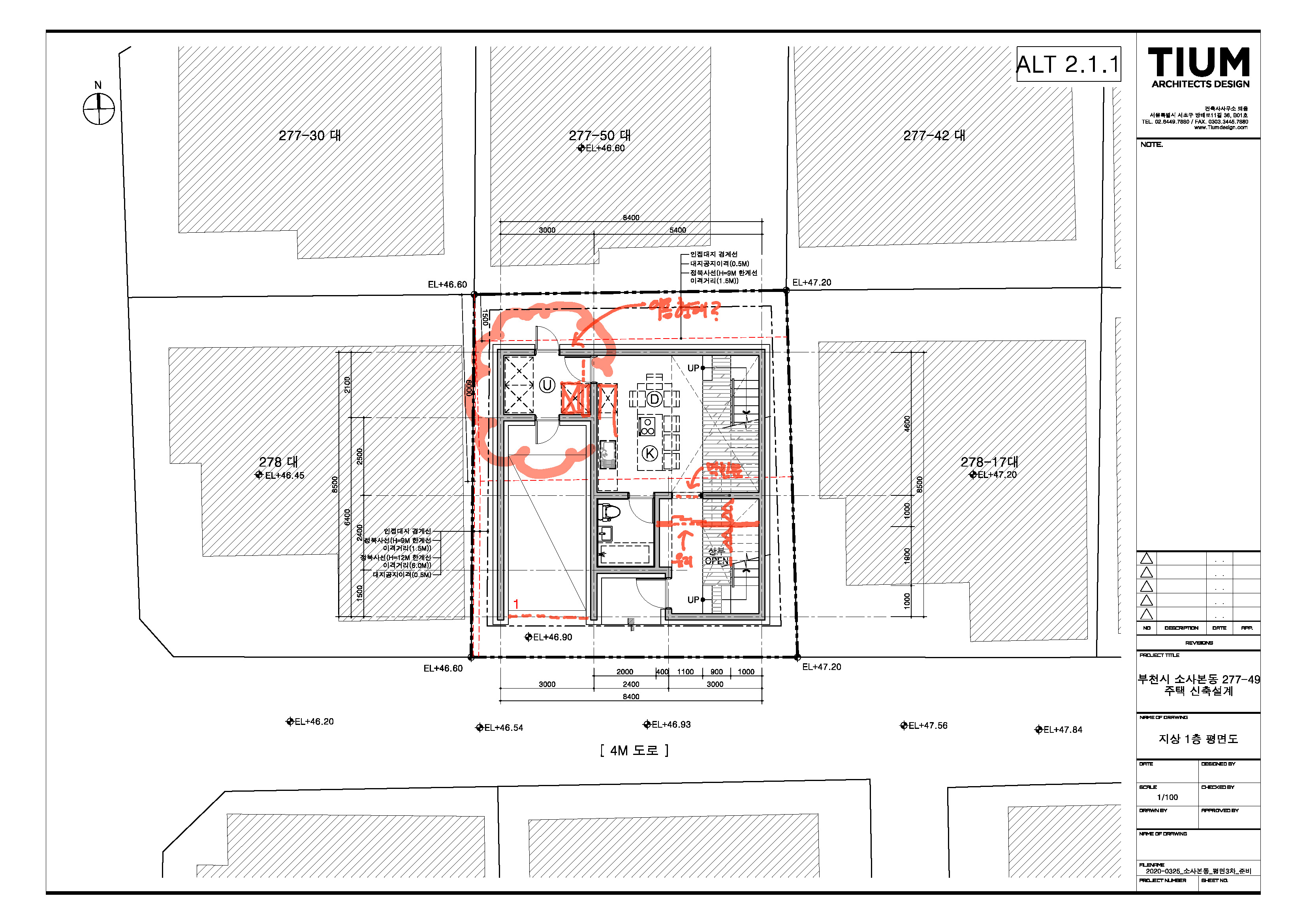
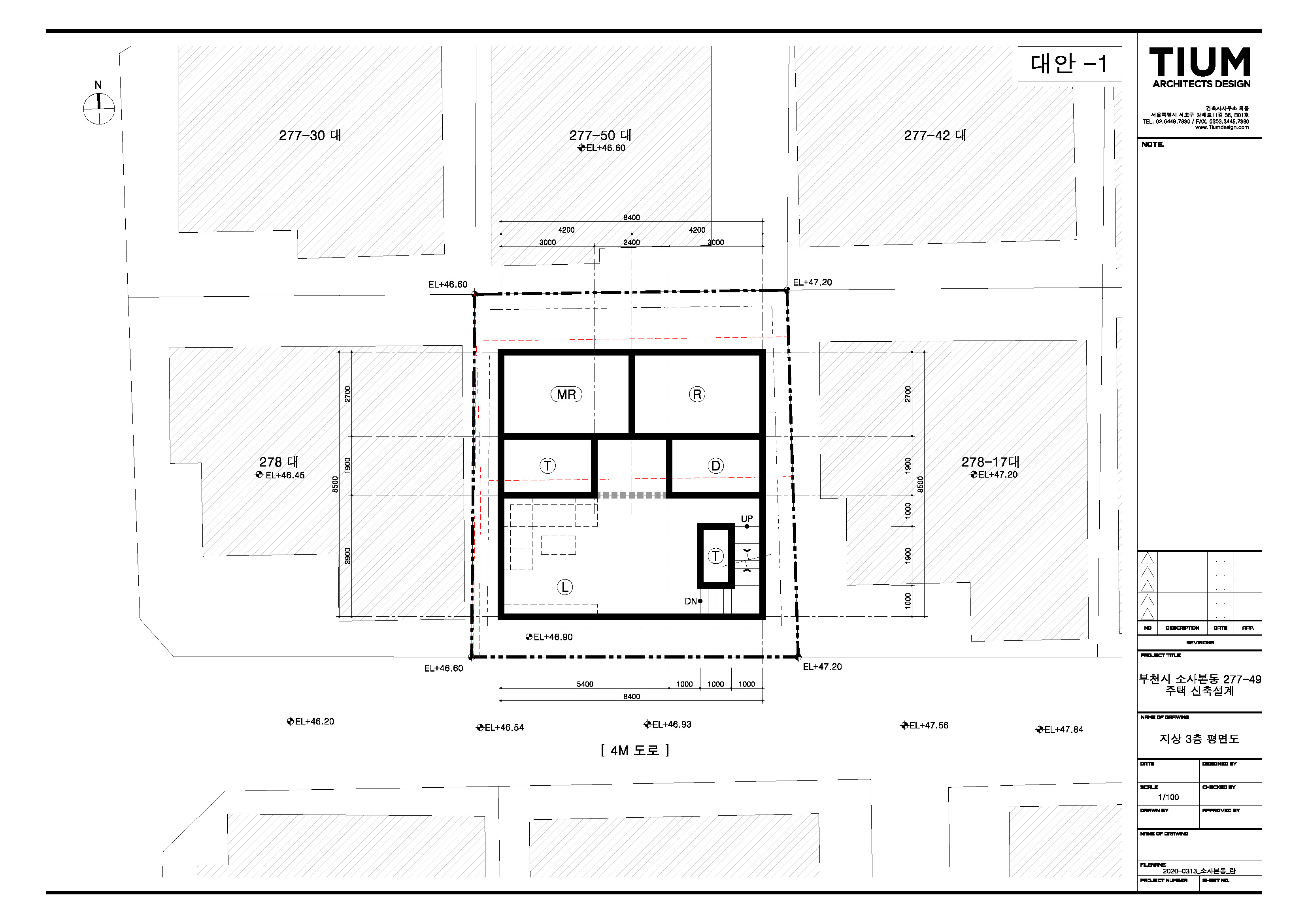
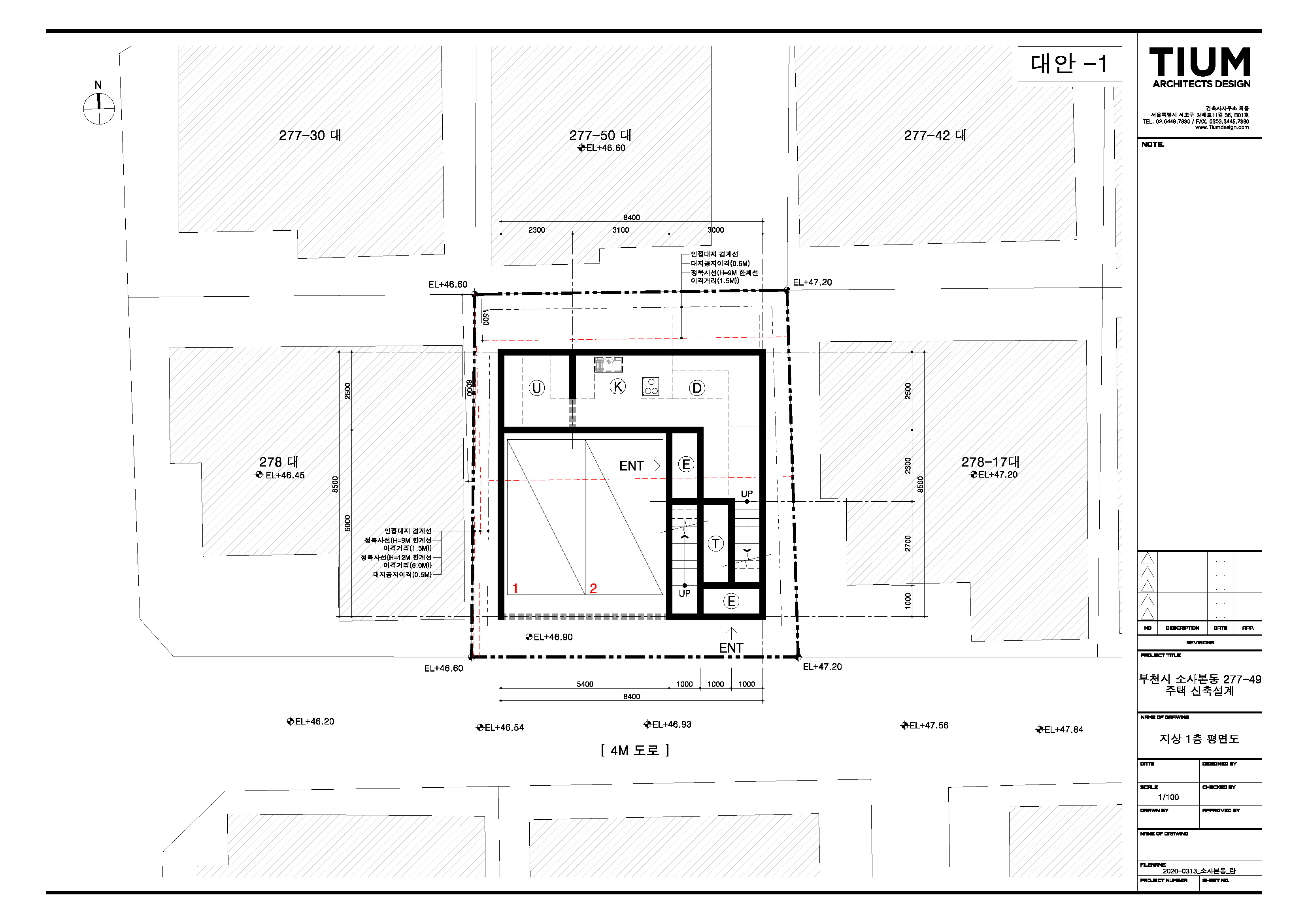
<대안1>
![]() |
![]() |
![]() |
![]() |
<대안2>
![]() |
![]() |
![]() |
![]() |
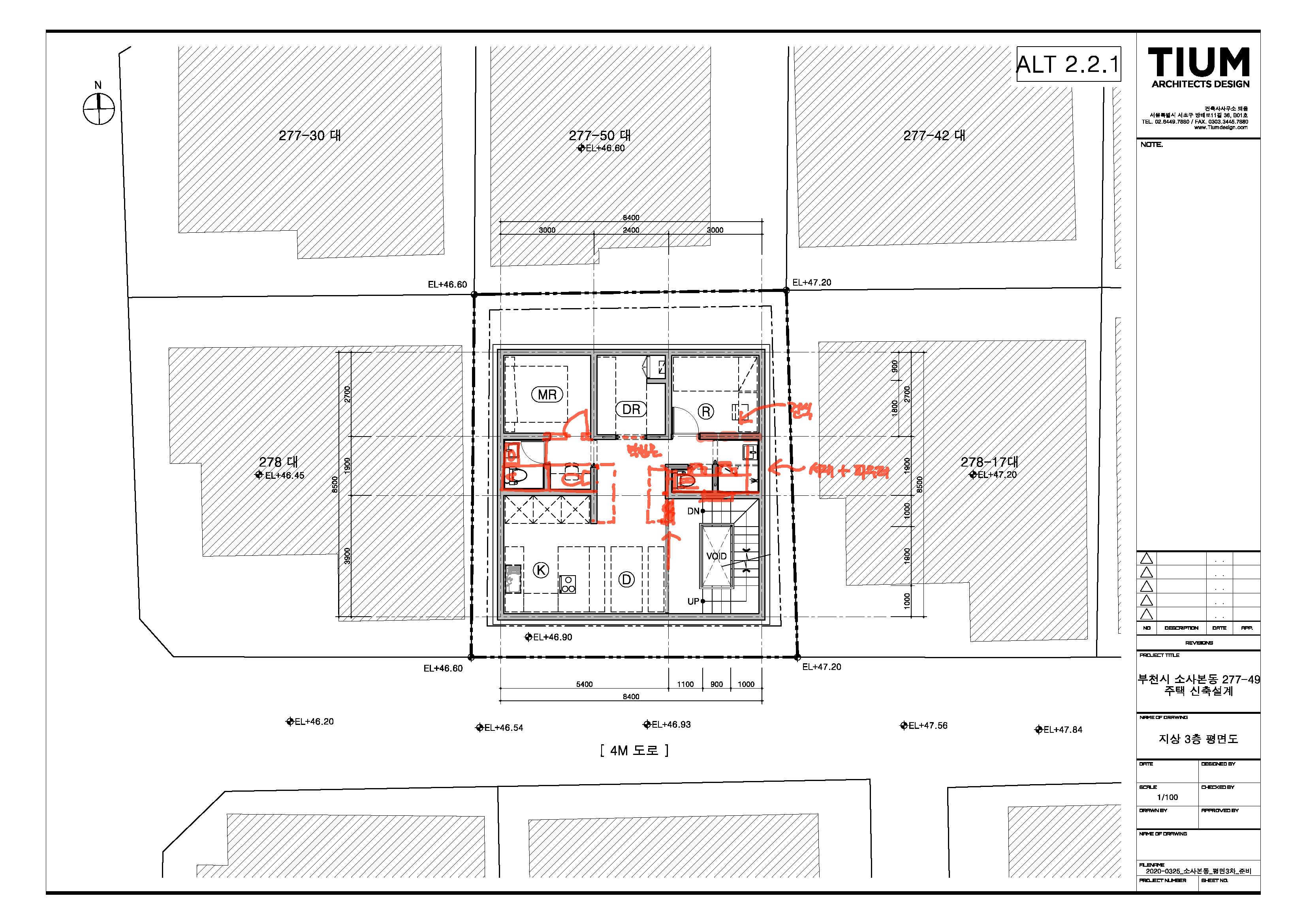
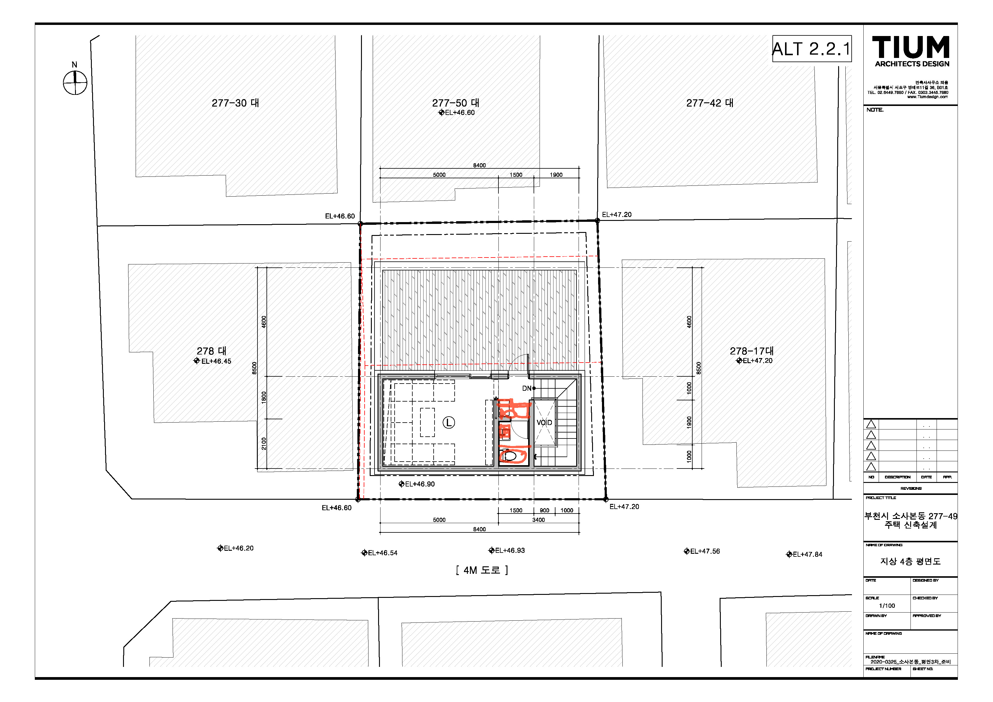
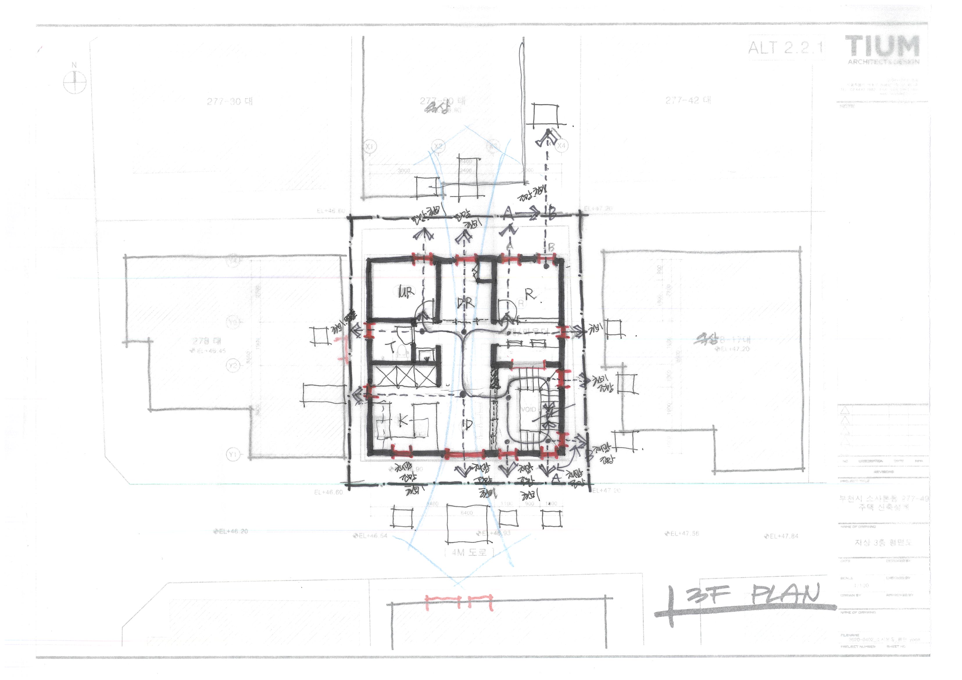
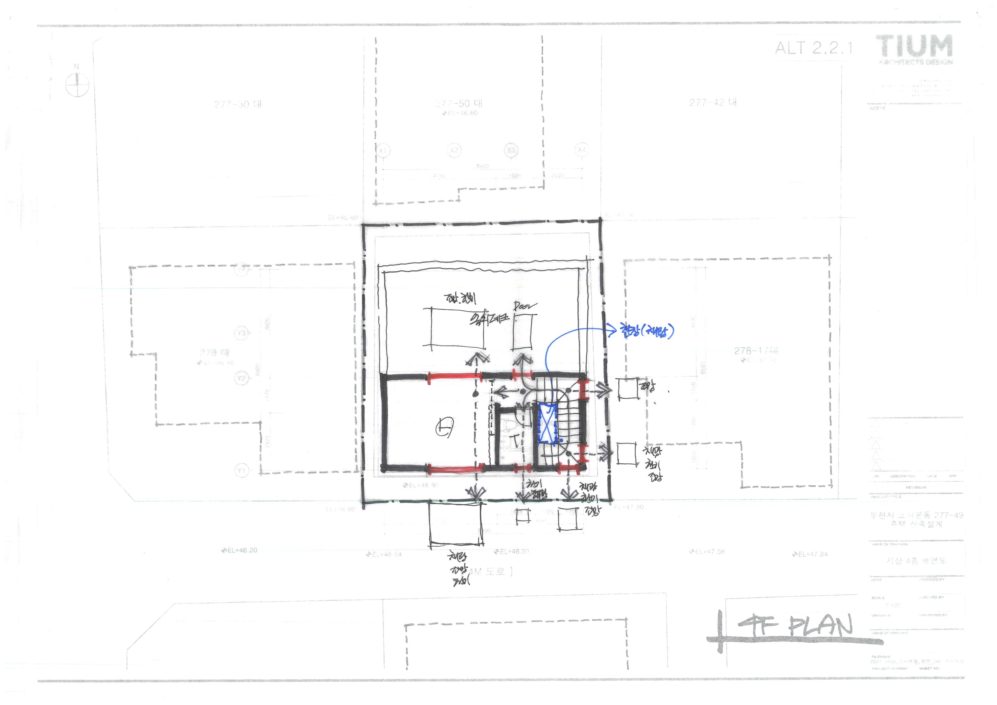
<대안3>
![]() |
![]() |
![]() |
![]() |
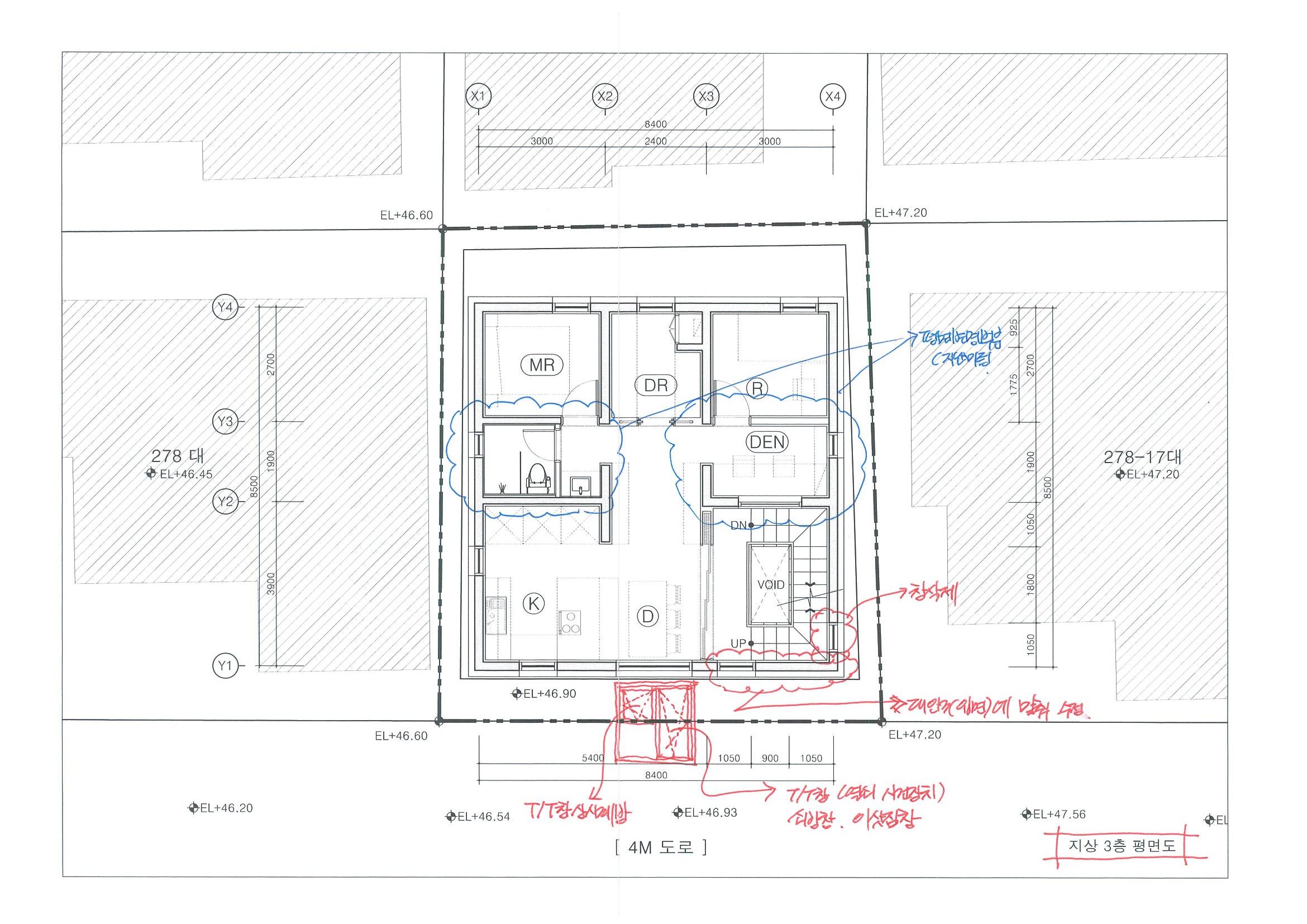
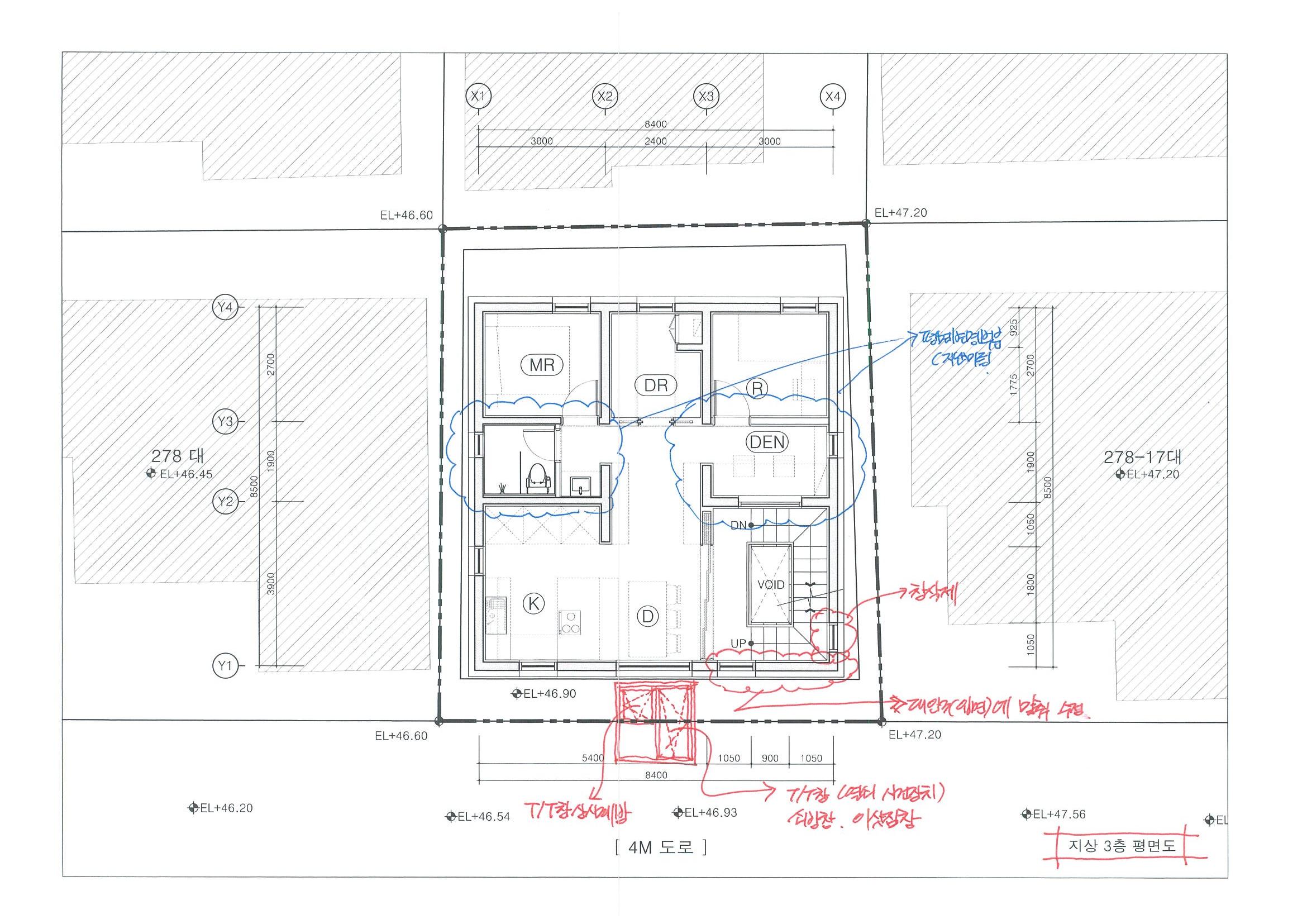
- 평면 대안3 으로 진행
- 1층 내부계단 하부 대청마루 개념 어머님 쉬실수 있는 공간계획
- 1층 아일랜드 활용한 아일랜드 대면형 바 테이블과 아일랜드 끝부분에 식탁 계획
- 세부계획에 따라 1층 유틸리티 와 화장실 계획 차후 미팅에 제안
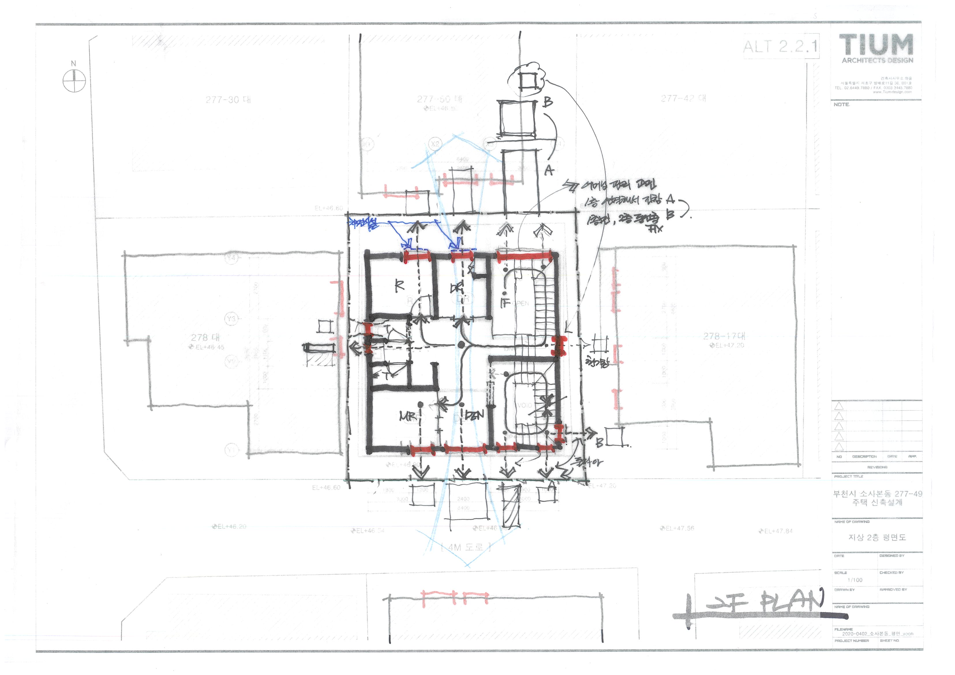
- 3층 계단실 중문 계획부분 최대한 벽체로 계획 가능한지 --> 차후 미팅 검토 후 제안
- 4층 손님들 방문시 계단을 통해 소리가 내려가는 것을 막을수 있는 계획 검토
- 현재 결정된 대안3의 방향으로 세부 평면계획 하여 미팅 진행

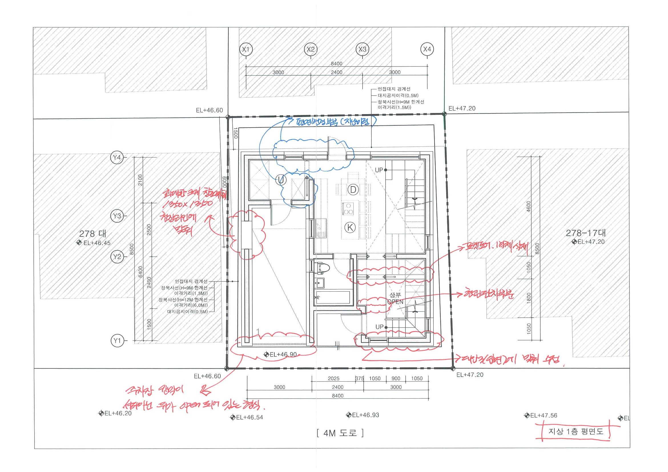
- 보조주방 통돌이 세탁기 제외 그 위치에 냉동고 계획
- 보조주방 포켓도어 계획
- 보조주방 이용 형태 어머님과 상의 후 의견 피드백 주시기로 함.
- 공동현관 부분 어머님 출입 도어 이중으로 설치 --> 유리 부분 스크린, 막힌문 중문 역활(각 세대 간 출입시 소음 및 간섭 최소화 위해)


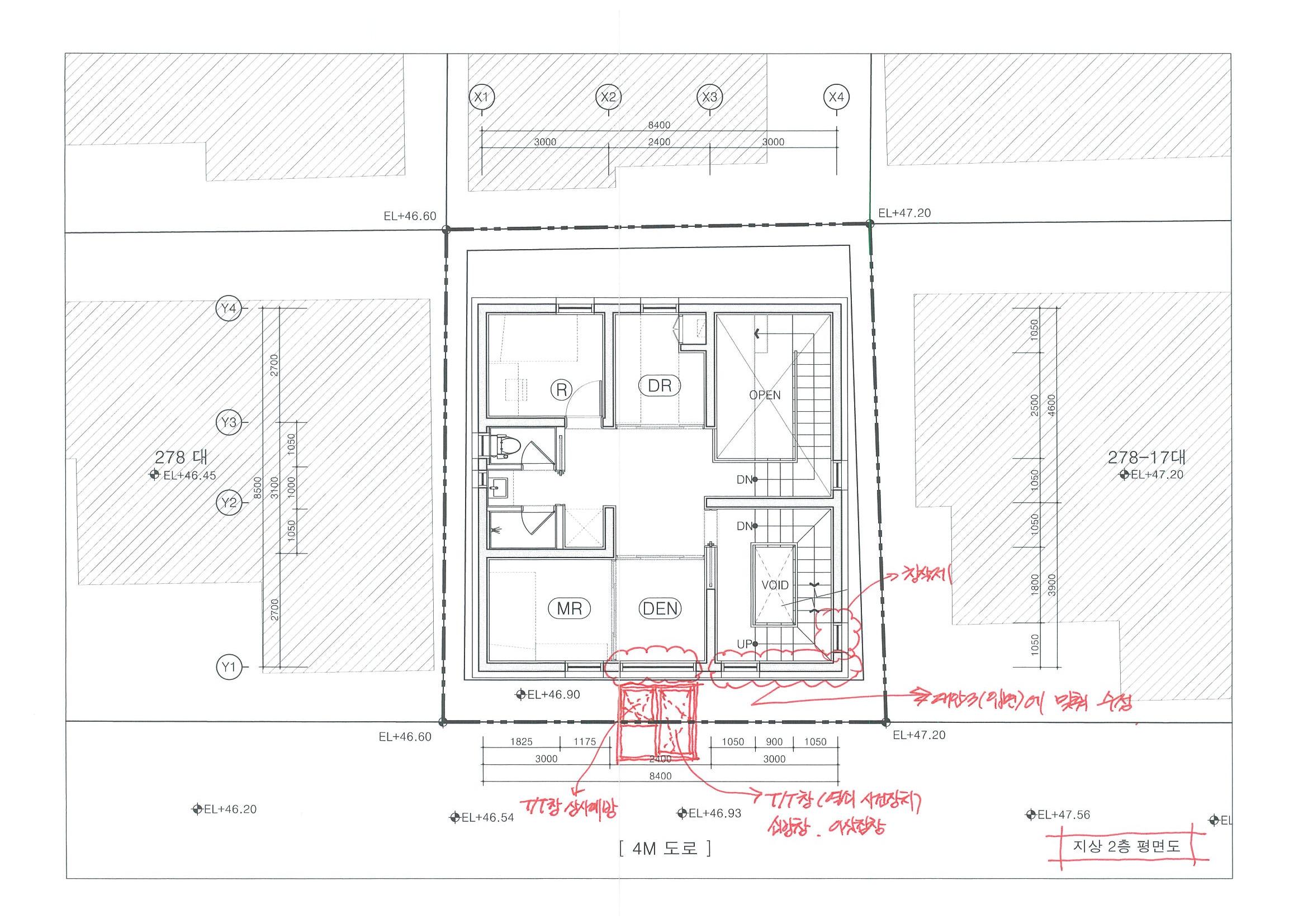
- MR과 욕실 분리 --> 기존 MR욕실 위치에 공용욕실 계획
- 공용욕실 (건식세면대, 화장실, 샤워부스 분리)
- 공용계단부 연계하여 서재+파우더 계획
- DR 포켓도어 계획
- 다이닝룸에서 DR 진입부 좌우 낮은장 계획
- R과 서재 중간벽 건식으로 계획하여 향후 확장성 고려

- 욕실에 욕조 계획






























![]() |
![]() |
![]() |
![]() |
| [2021] 모슬포: 카렌시아 (2) | 2024.01.08 |
|---|---|
| [2021] 자곡까사 (0) | 2024.01.08 |
| [2020] 리테일한남 (0) | 2024.01.08 |
| [2020] 이태원24 (0) | 2024.01.08 |
| [2020] 이이공 (0) | 2024.01.04 |