2024. 8. 16. 20:19ㆍPROJECT/Story
설계변경계획_1차
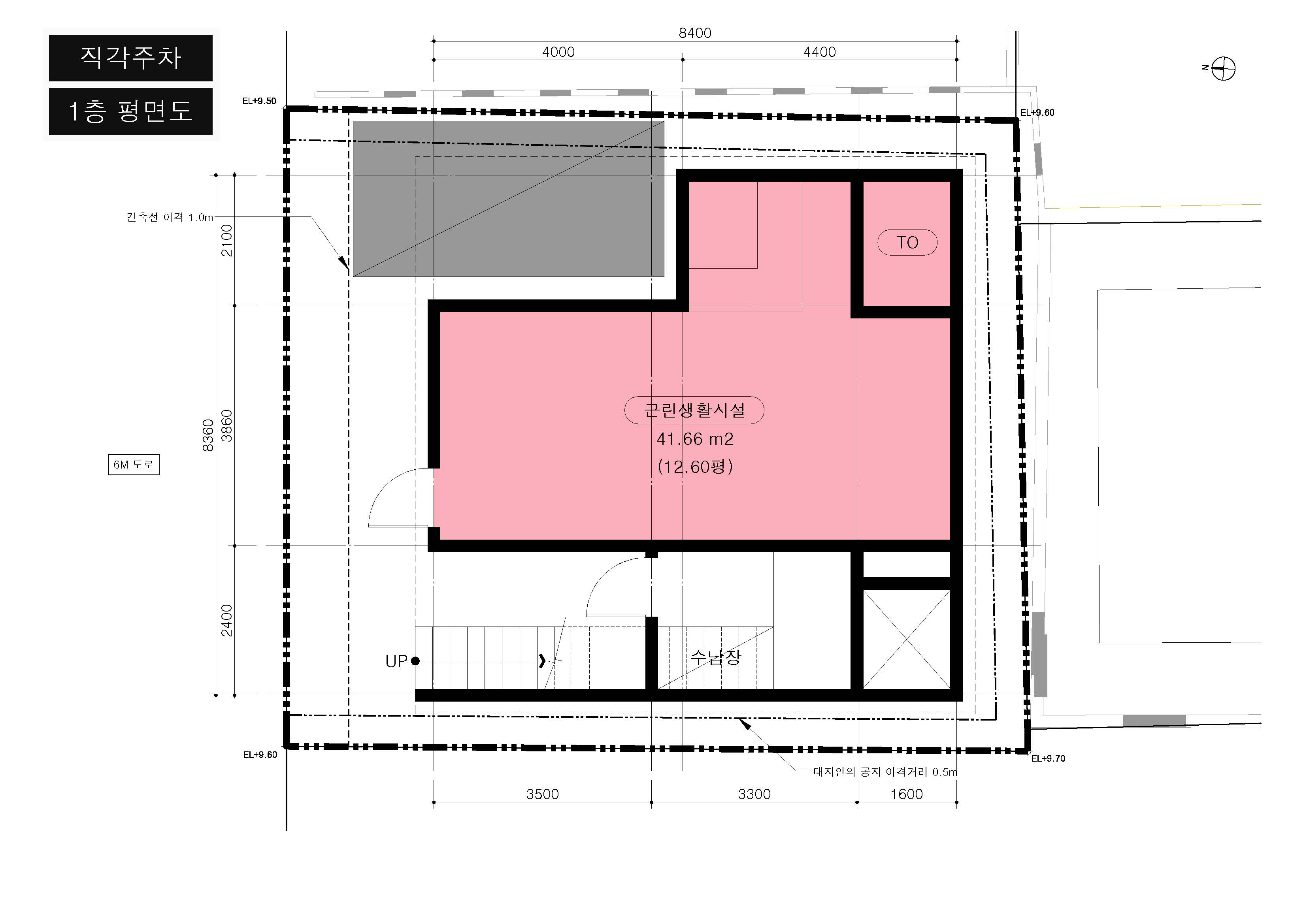
*층별구성
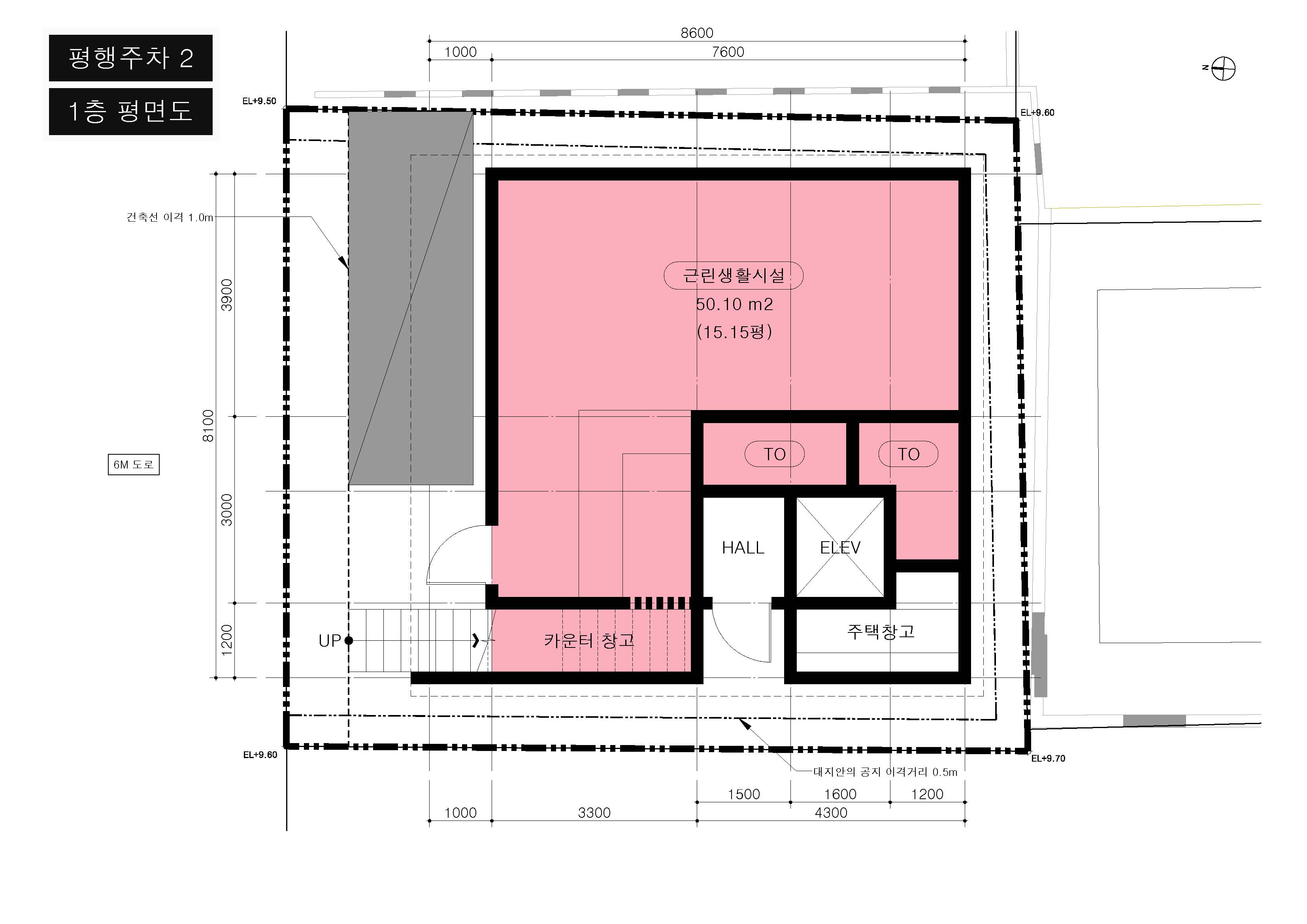
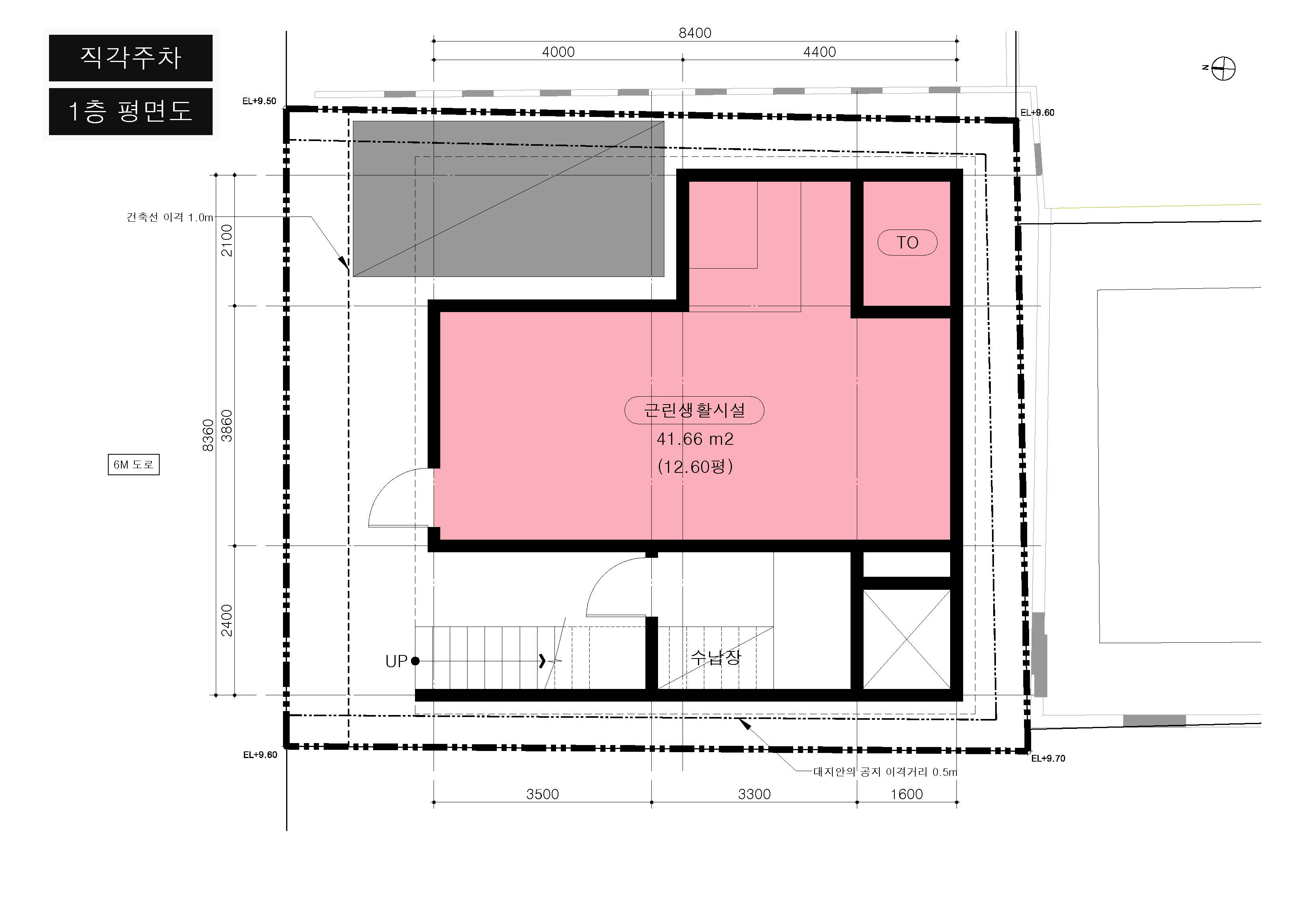
1층 : 근린생활시설
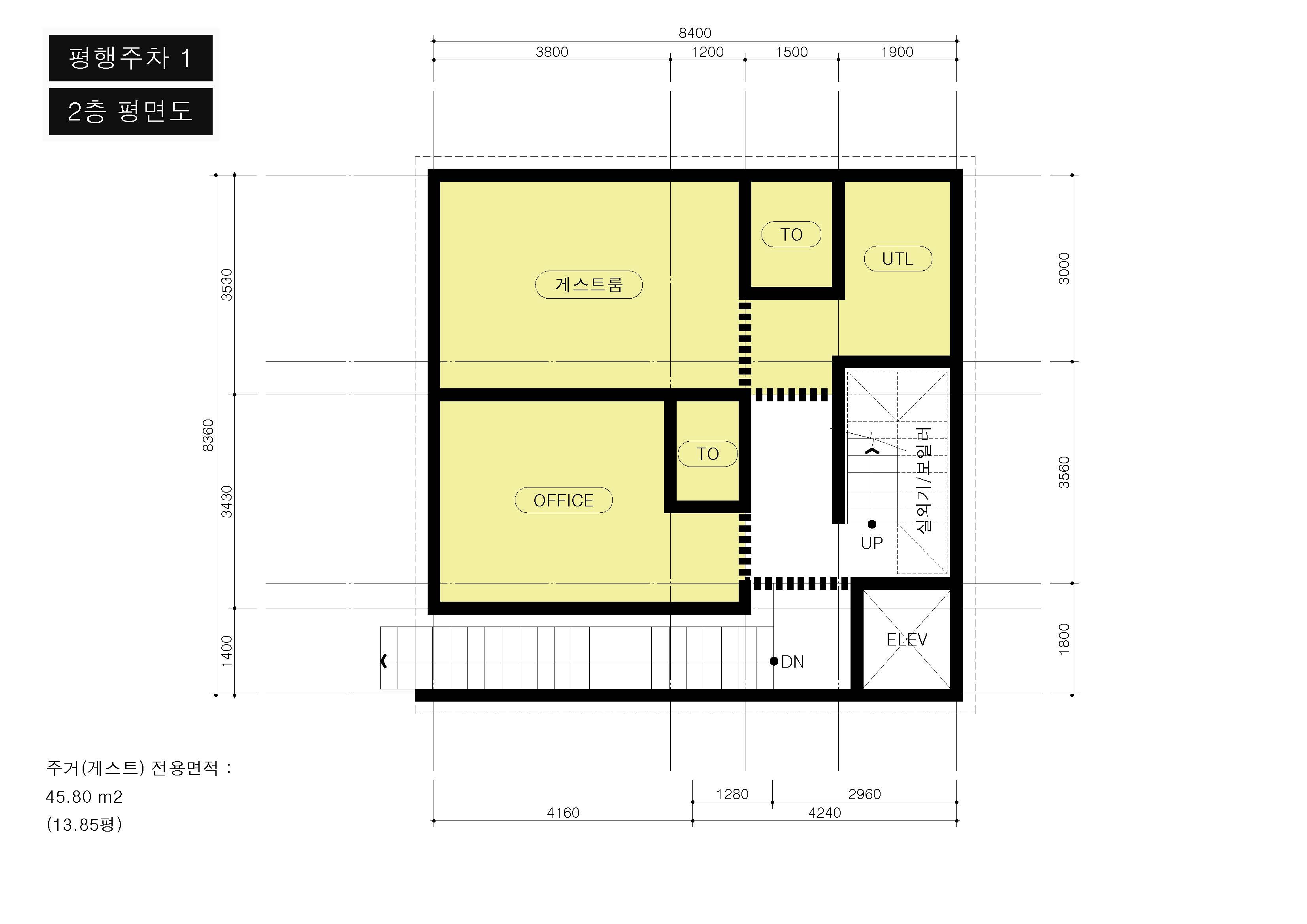
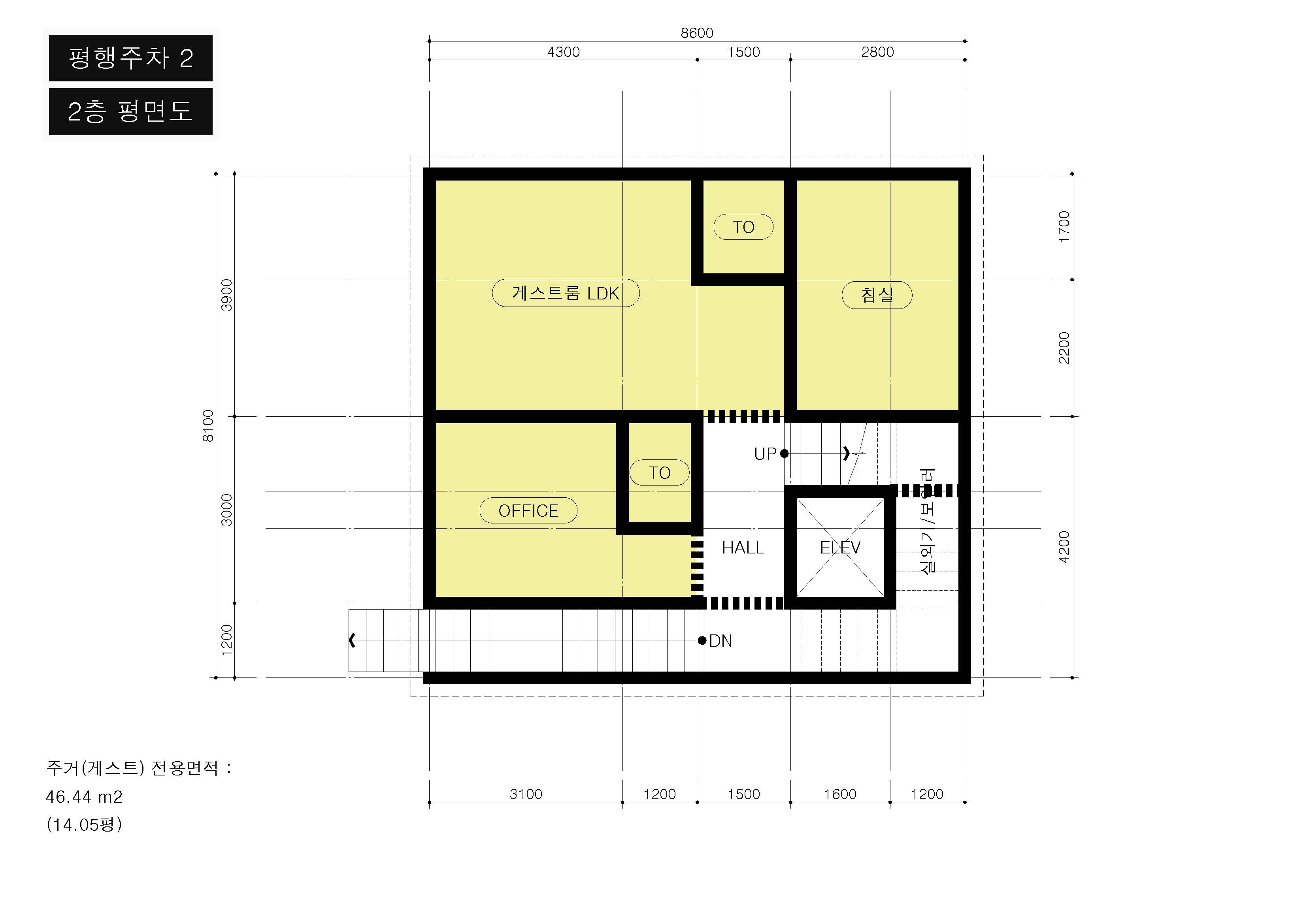
2층 : 다중주택 2호 (office/guest)
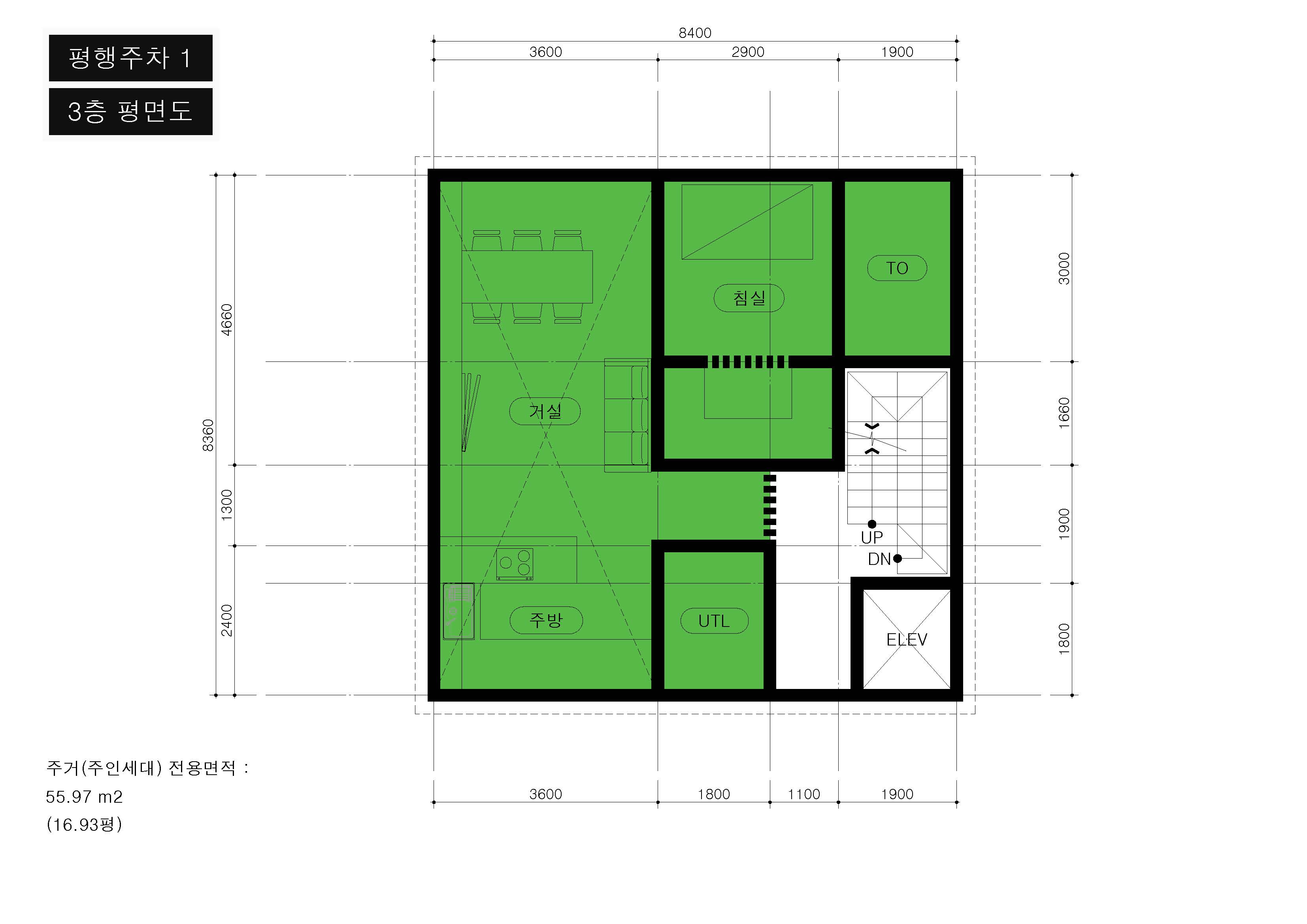
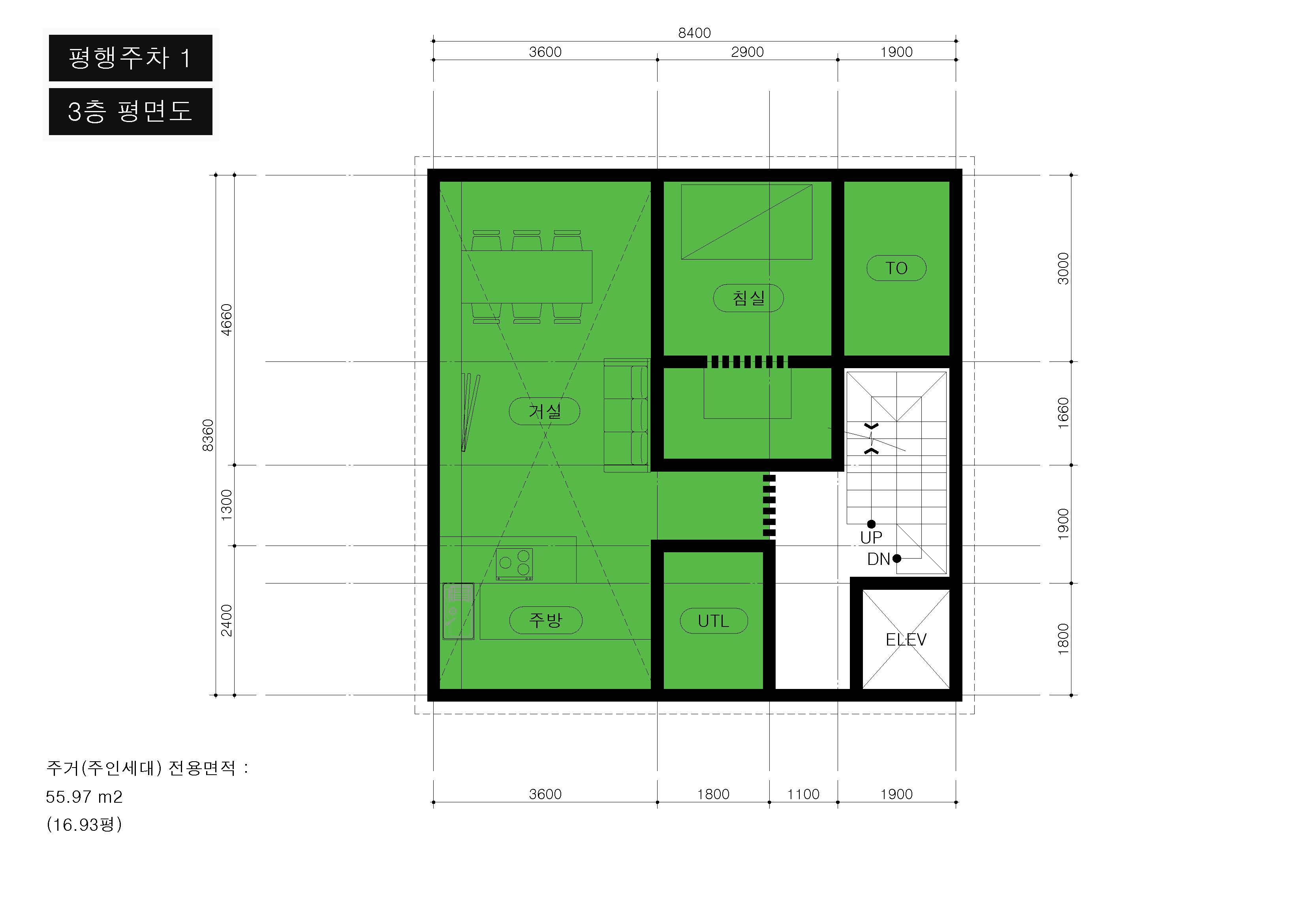
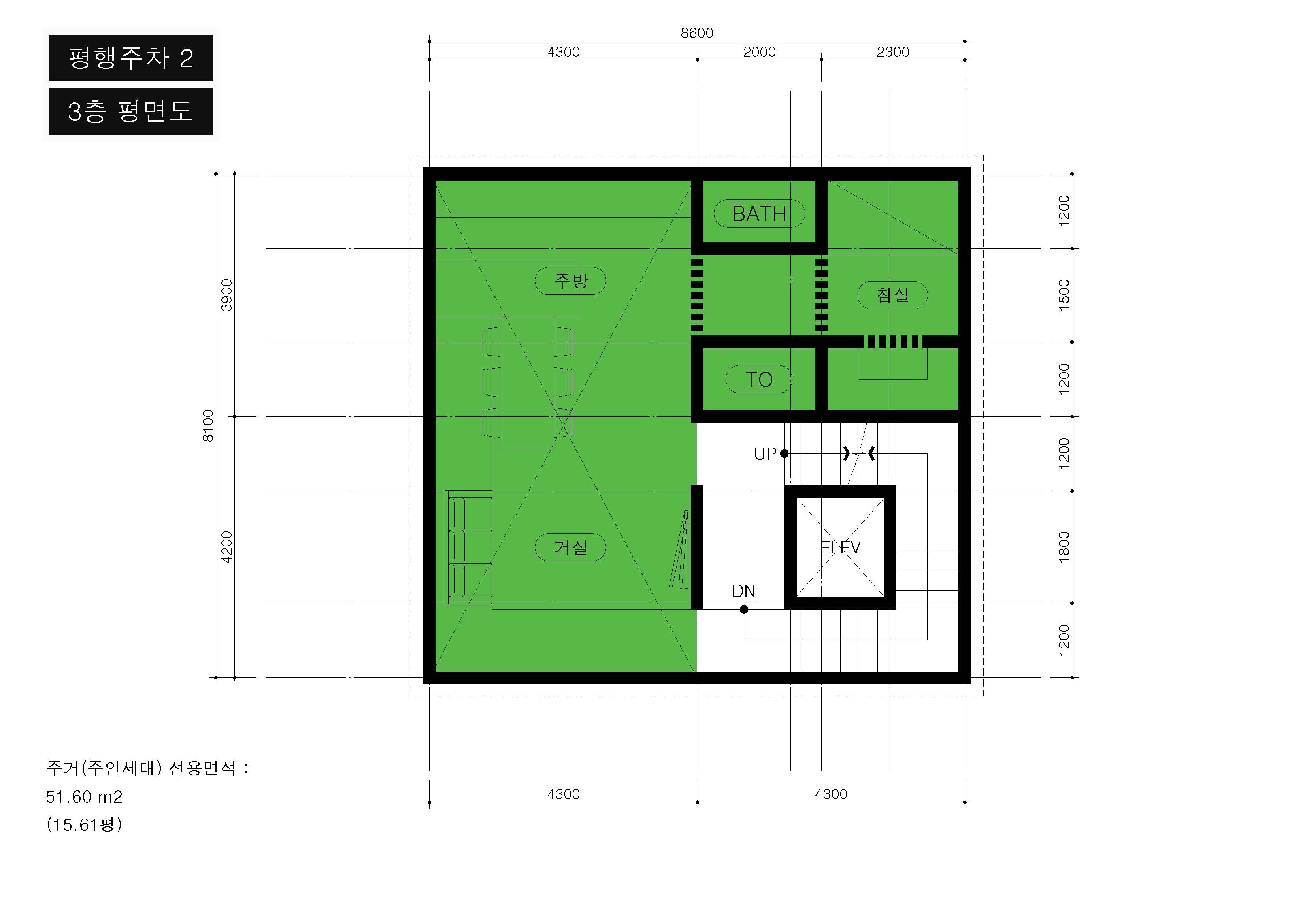
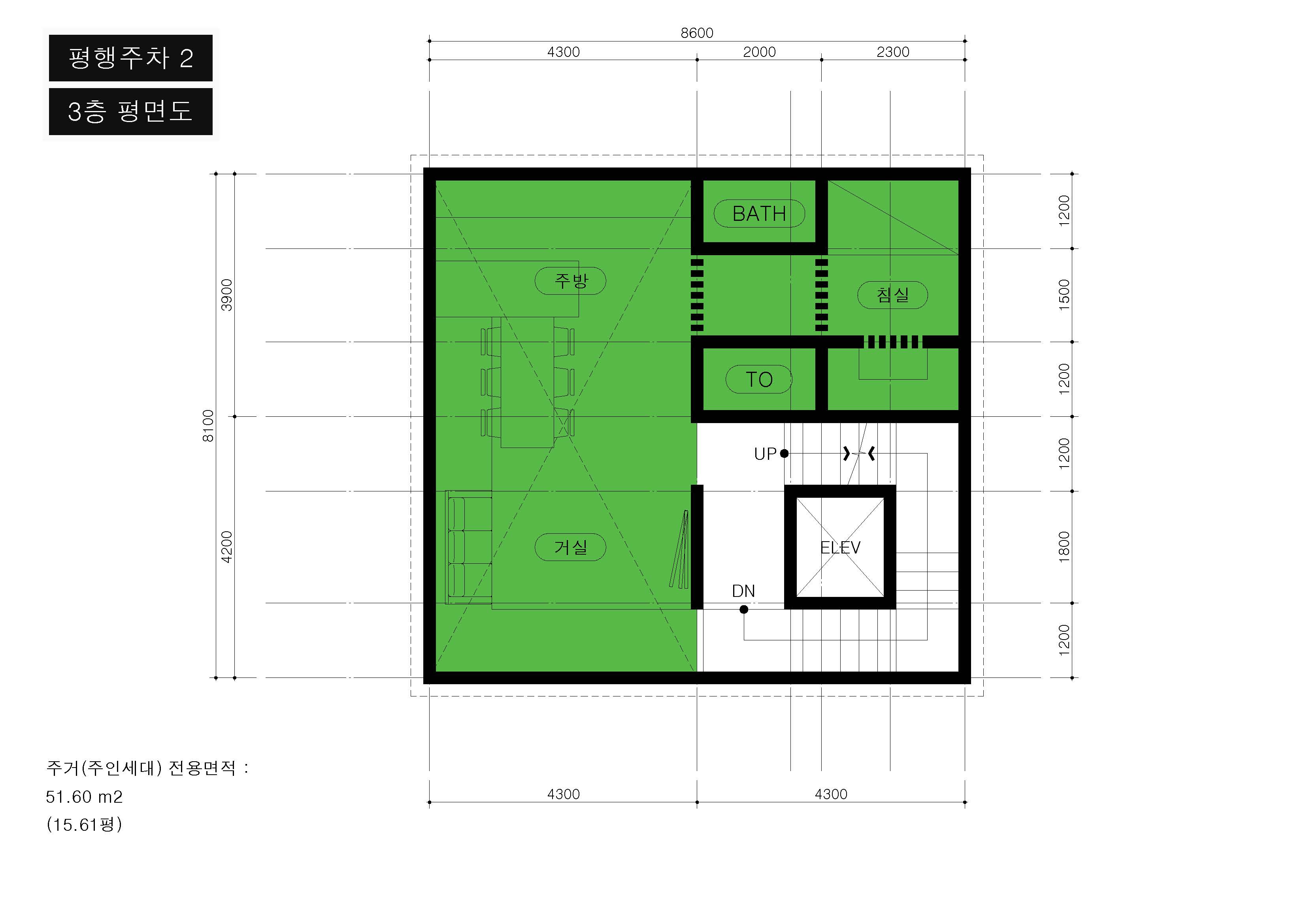
3층+다락 : 다중주택 1호 (host)
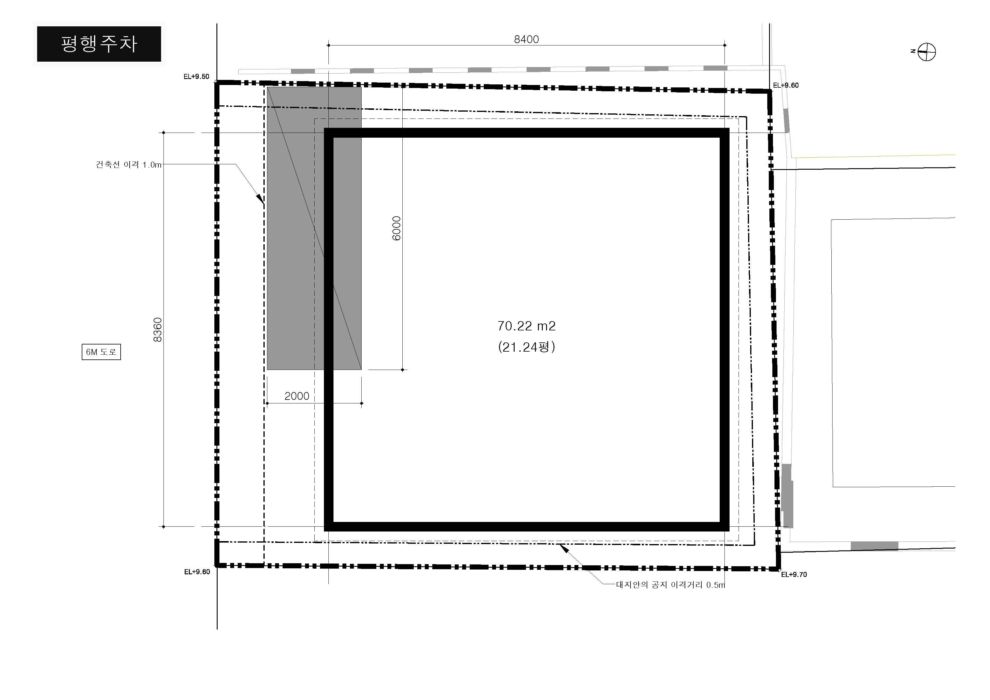
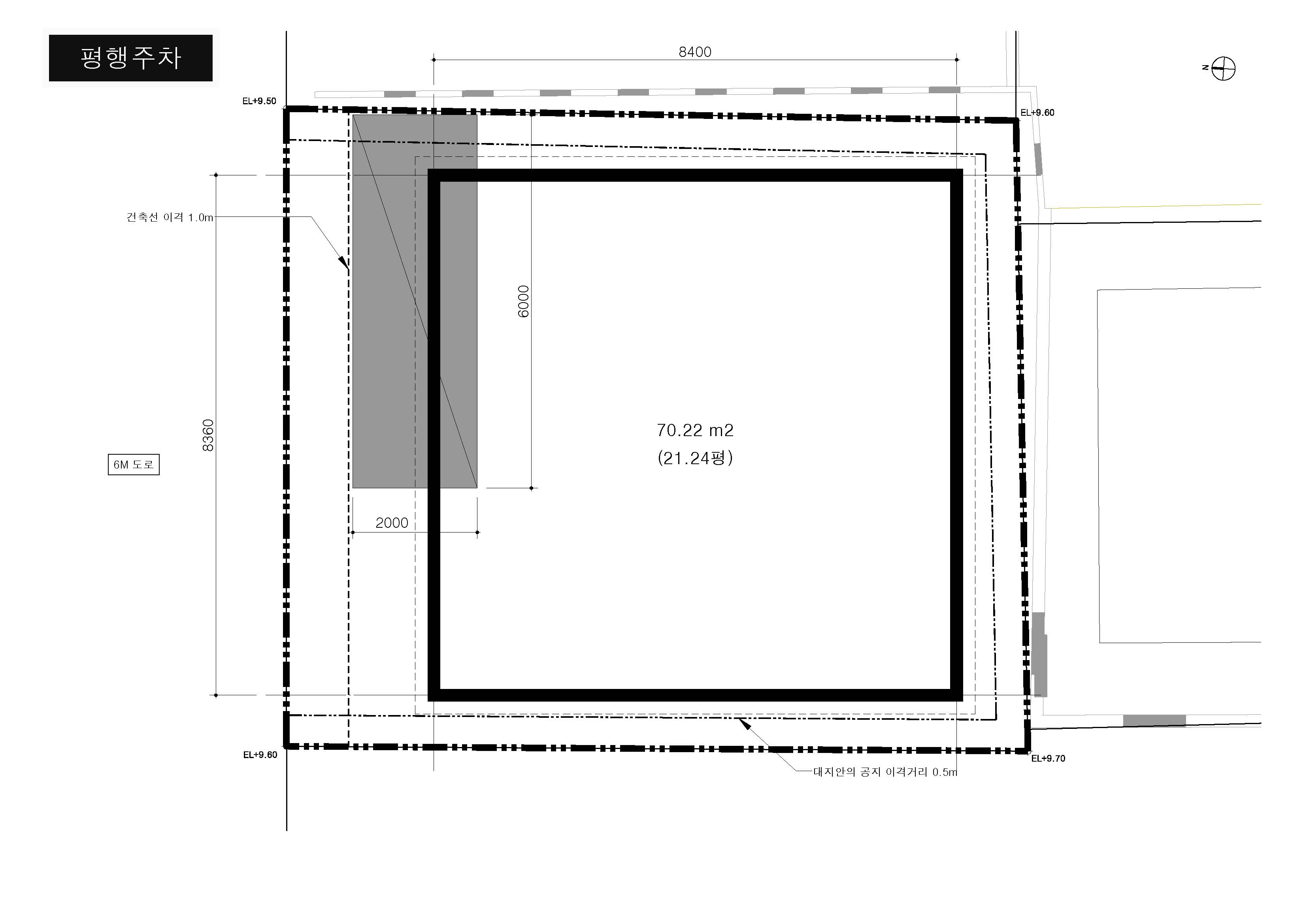
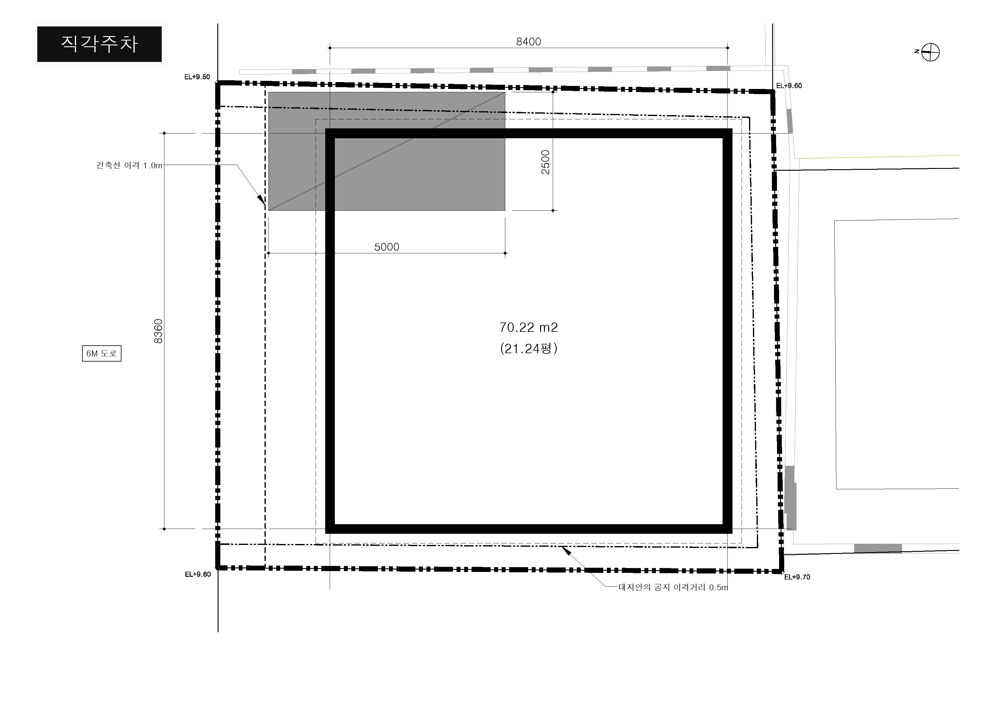
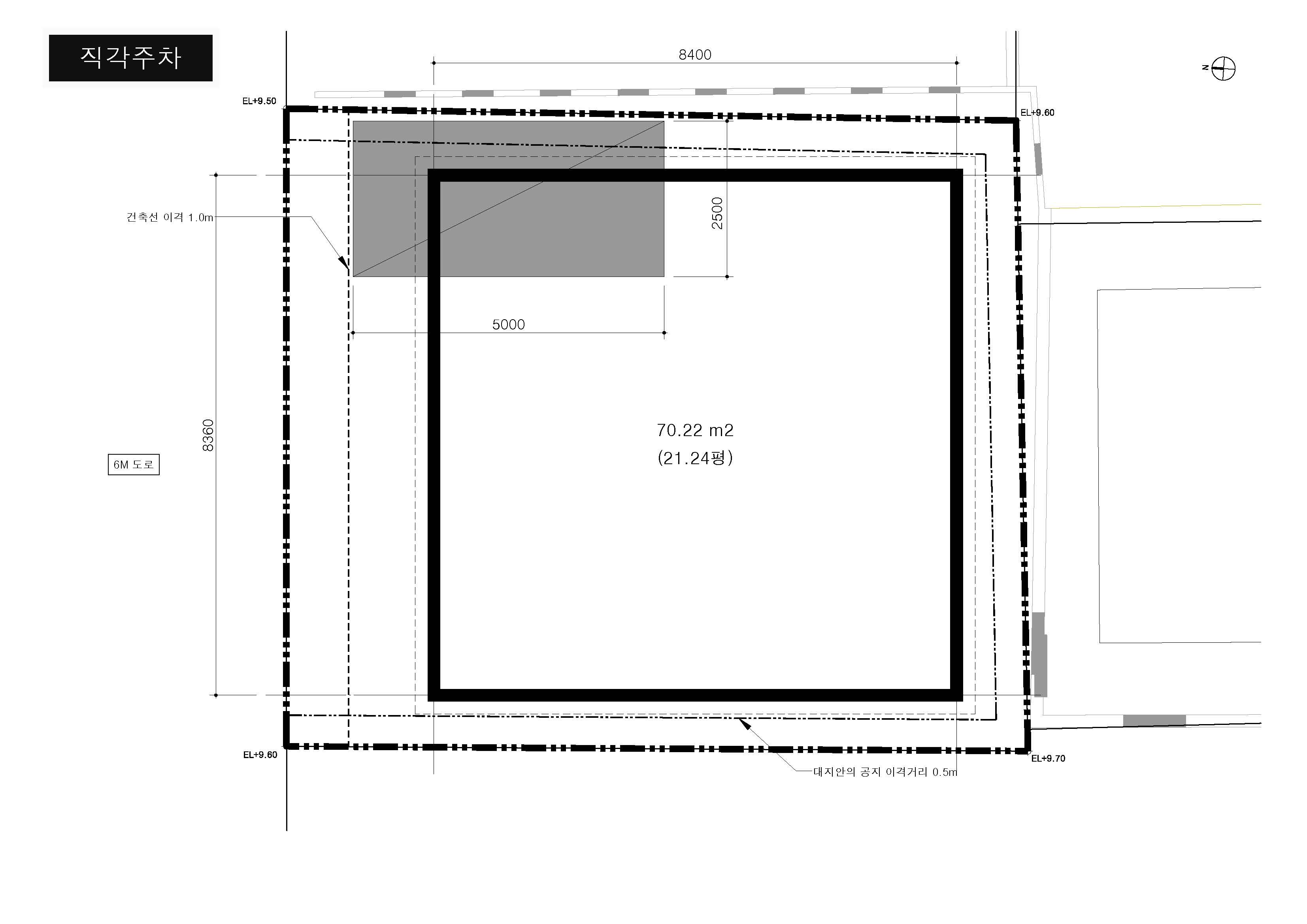
*법정주차 1대
평행주차 형식 / 직각주차형식
*다중주택 진출입
2층 : 직통계단
3층 : ELEV (내부복도 진입/외부측면 진입)



















*협의내용
1.평행주차 2안으로 결정
2.좌우 반전하여 진행(좌측에 직통계단+접근로) : 상가 개방성 확보 + 1층 ELEV홀 프라이빗 접근로 + 대문 + 조경 설치
3.1층 : 청소씽크 공간 고려
4.2층 : 오피스 구획 확대 + 1.5룸 구성 + 직통계단과 면하여 개방(화단설치 고려)
5.3층 : 침실 확장, 다락X, 거실은 침실과 면하도록 배치, 가능하면 외부 발코니 설치(티타임 용도)
설계변경_계획2차









*협의내용
1. 평행주차 구성으로 결정
2. 1층 : 대문 삭제, 조경 설치구간 조정, 택배수납 공간은 외부창고 이용
3. 2층 : 보일러실+택배 수납
4. 3층 : 가구 레이아웃 일부 조정(아일랜드 확대, 독립형 후드2개, 대형 테이블 별도 구매, 리딩누크 설치 폭 80cm, TV 및 책꽂이장, 발코니는 인접 건물 시선 차단)
5. 사용승인 이후 추가공사 관련 : 2층 도어 2개소 추가 설치
설계(변경)_입면1차




















*협의내용
1.입면
- 밝은 베이지톤의 따뜻한 색감의 마감재 선호
- 재료비가 너무 비싸지 않고, 유지관리에 좋은 재료
- 벽돌타일 / 외부용 포쉐린타일
- 3층 창호는 바닥까지 오픈되지 않았으면 함
- 금일 협의내용으로 ALT-1, ALT-3을 다음번 미팅시 협의예정
설계(변경)_기본계획 확정























*협의내용(평면)
1. 1층 : 화장실 일부 조정
2. 2층 : 사무실 화장실에도 샤워 겸용 세면대 설치
3. 3층 : 샤워실 유리파티션 및 도어 삭제하고, 날개벽 설치(콘센트 설치)/ 출입문 ABS도어 설치 및 바닥 단차 구성
*협의내용(입면)
1. ALT-3으로 진행
2. 전면 돌출부는 계획에 따라 오픈형 또는 캐노피형 적용
3. 외부용 포쉐린타일 마감 적용
| [2024] 삼사오 (0) | 2024.11.18 |
|---|---|
| [2023] 영등포업 PART-1 (0) | 2024.05.10 |
| [2023] 남산주택 (0) | 2024.05.10 |
| [2022] 홍제동 (0) | 2024.05.10 |
| [2022] 정미소 (0) | 2024.03.11 |