2024. 1. 8. 16:42ㆍPROJECT/Story

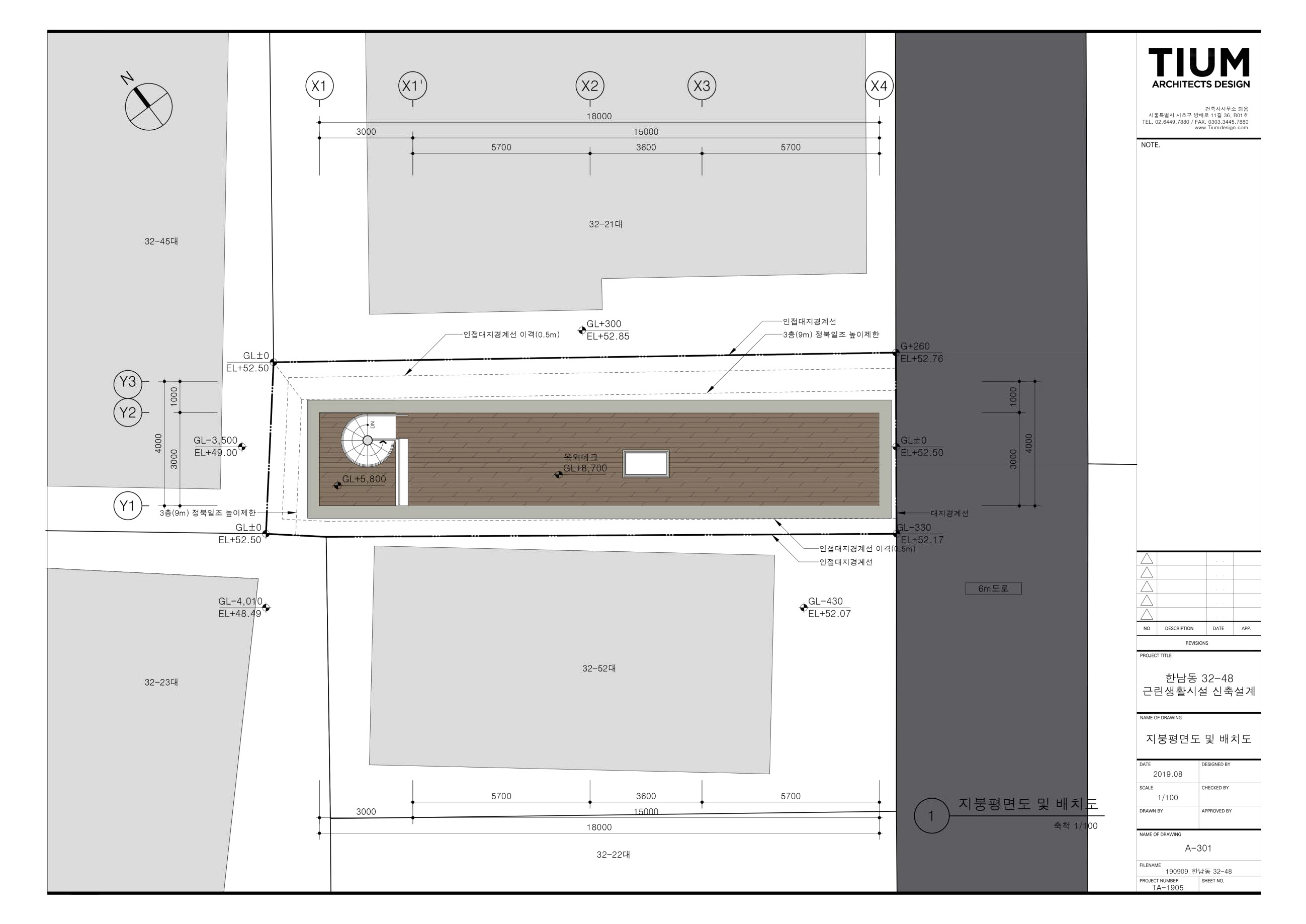
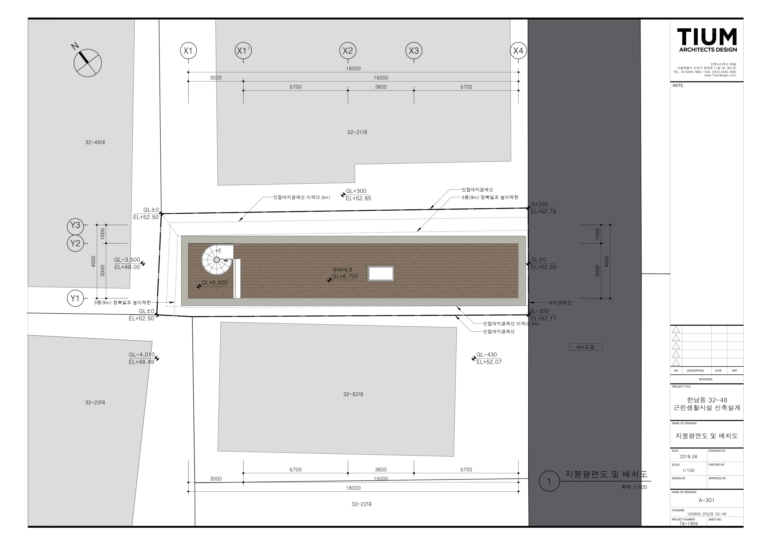
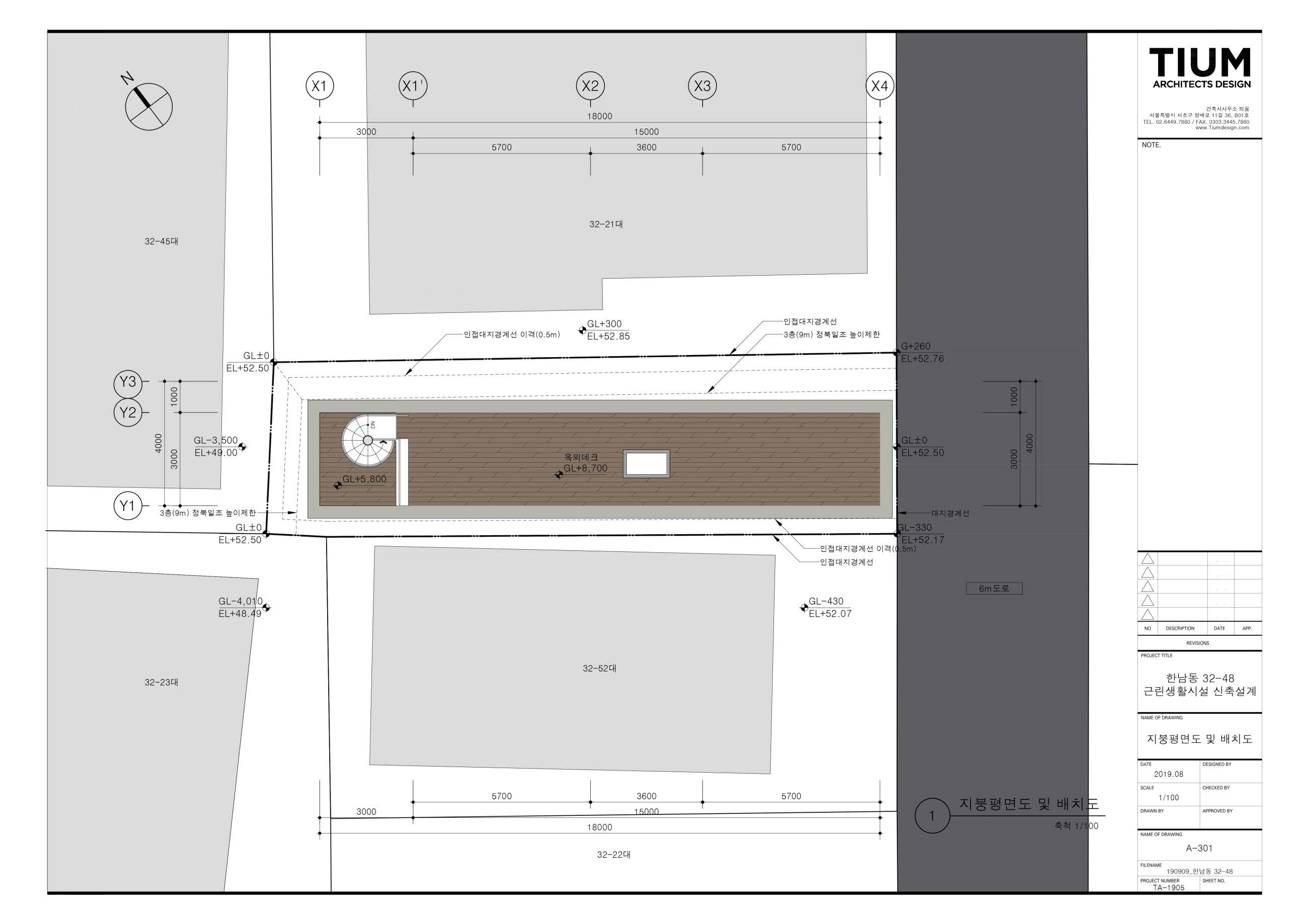
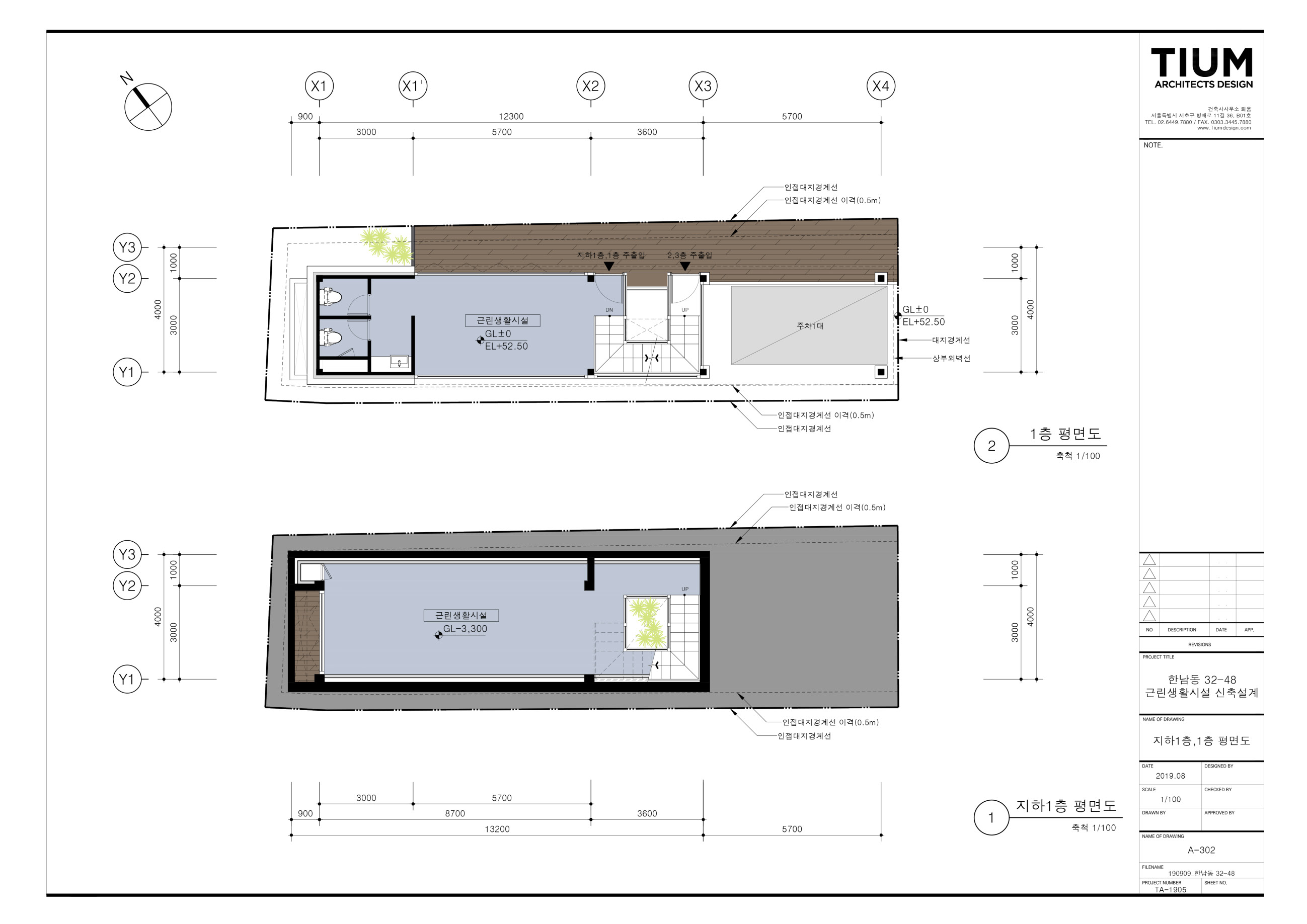
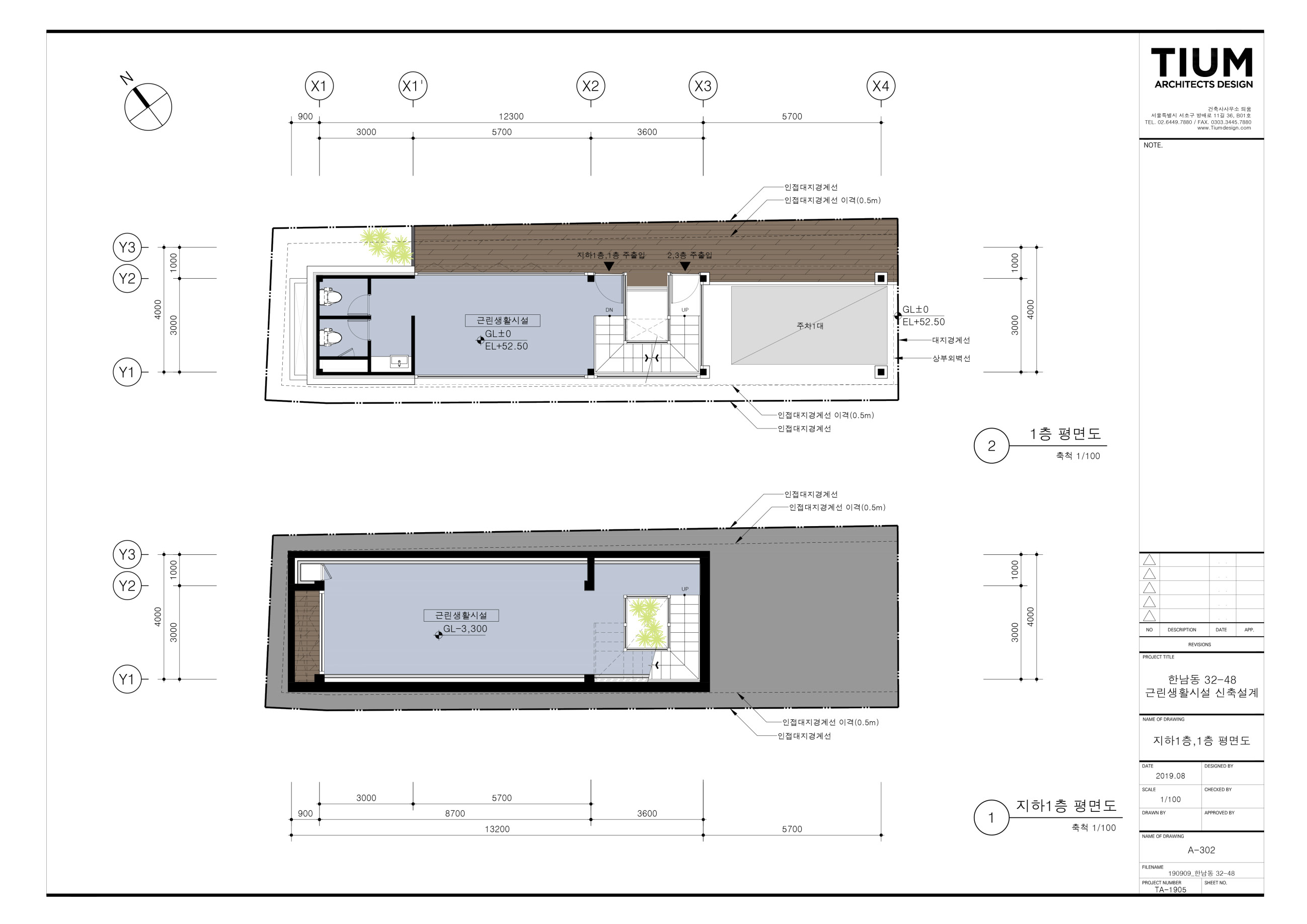
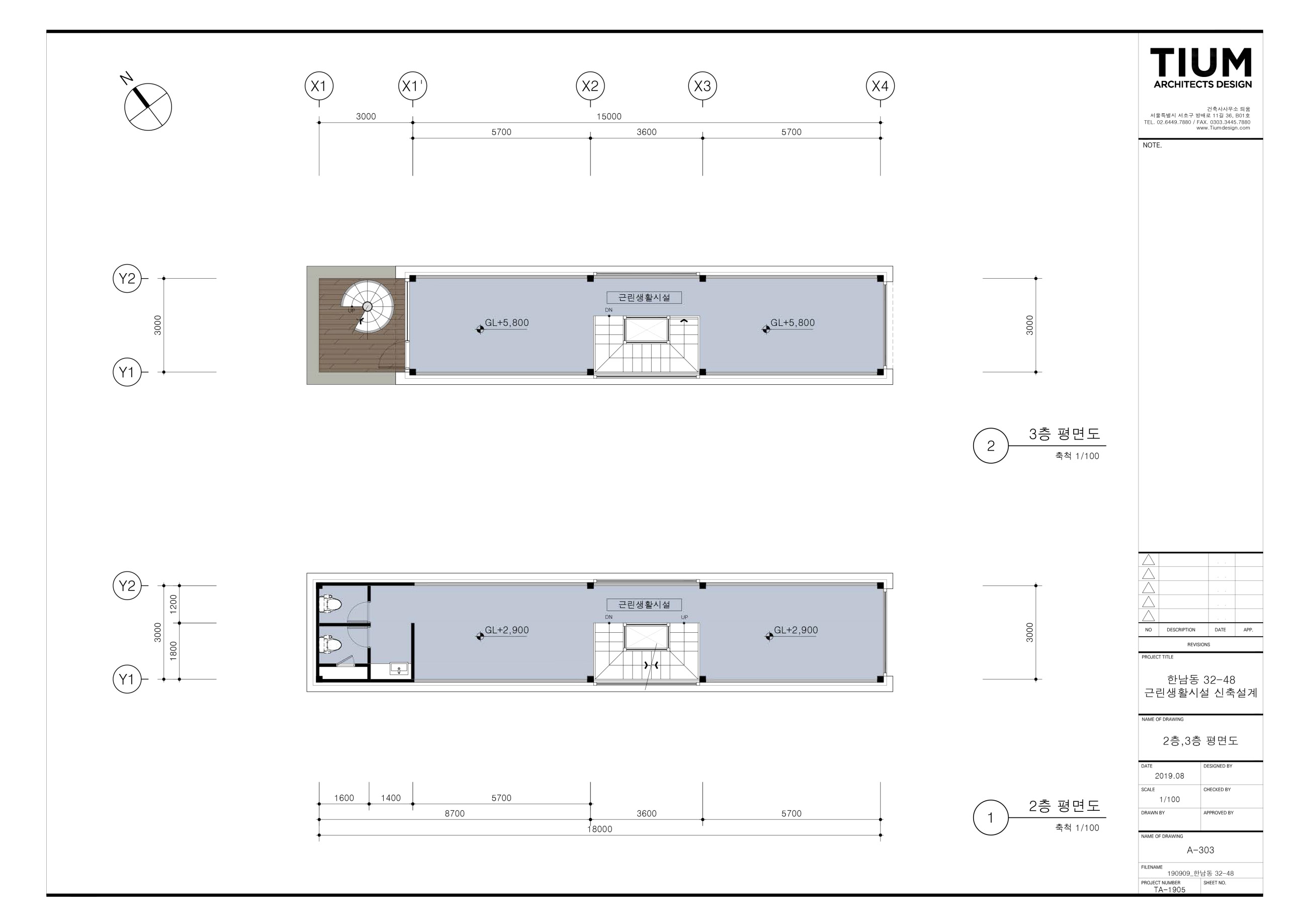
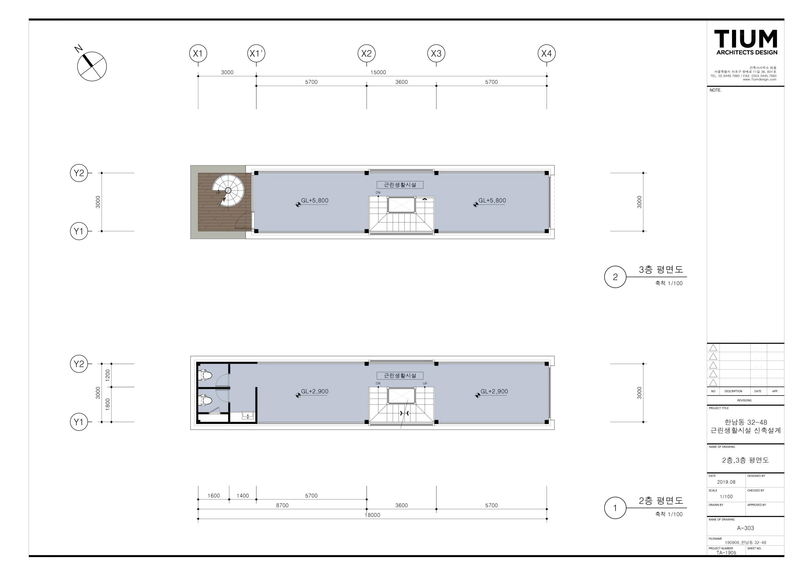
한남동에 위치한 기존 노후된 건물을 철거하고, 새로운 근린생활시설을 신축하는 프로젝트 입니다.
전면도로에 접한 대지의 폭은 좁고, 안쪽으로 깊어지는 대지의 형상을 따라 건물 또한 리니어한 형상으로 계획되었습니다. 여기에 대지의 높낮이 -전면도로보다 안쪽 대지가 접하는 높이차가 3미터 가량됨-를 이용하여, 지하1층과 1층은 리테일삽으로 운영하고, 2층과 3층을 사무공간으로 이용하는 프로그램 입니다.
무엇보다 이번 건축설계에서 가장 중요한 요소는 한남동 상권, 골목길 안쪽에 위치한 건물의 인지성을 확보하는데 있습니다. 그러기 위해서 근생의 얼굴로 접합한 재료와 입면디자인을 고려합니다.
고강도 콘크리트판넬을 사용한 파라메트릭 디자인을 제안합니다. 모듈을 이용한 파라메트릭 디자인을 통하여 주변건물들과 태양의 입사각을 고려한 개폐율을 입면에 적용합니다. 이를 통해 나타나는 패턴의 조직은 고유한 디자인방향을 표현하게 됩니다. 이는 지능적인 건축어휘의 적용으로 기능적인 건축과 심미적인 건축을 하나의 언어로 연결합니다.










| [2021] 자곡까사 (0) | 2024.01.08 | 
|---|---|
| [2020] 소사본동 (0) | 2024.01.08 | 
| [2020] 이태원24 (0) | 2024.01.08 | 
| [2020] 이이공 (0) | 2024.01.04 | 
| [2020] 자양243 (0) | 2024.01.03 |