2024. 1. 4. 19:41ㆍPROJECT/Story

여타 협소주택처럼 여유 있는 크기는 아니지만 건축주 본인 거주 목적에 임대수익을 올릴 수 있는 협소 상가주택을 시작합니다. 인터뷰를 통해 건축주에게 주거로 필요한 소요공간을 산정하고 대지가 가지고 있는 볼륨을 여러 요소들과 조율하며 상가의 적정면적을 만들어 나가게 될 것입니다. 전면과 후면에서 접근 가능한 대지특성을 설계에 잘 녹여낸다면 방법을 찾을 수 있을 것입니다. 6가지 대안은 기본 설정한 프로그램을 바탕으로 주차방식과 주출입구 방향 그리고 전체 동선체계를 정리할 계단 위치를 각기 다른 지점에서 검토한 결과물로 이번 프로젝트에 첫 단추가 되어줄 것입니다.
SITE
대지위치: 서울시 영등포구 당산동 4가
용도지역지구: 준공업지역
대지면적: 52.6㎡ (15.9평)
건폐율(법정)60%: 31.56㎡(9.54평) / 용적률(법정):400%: 210.4㎡(63.64평)
도로: 북측 8m / 서측 6m / 남측 (현황)1m (막다른 도로 확폭 필요)
대지형태 : 남북방향으로 긴 직사각형 형태의 대지 (9.9m*5.3m)
주변건물 : 동측, 서측 인접건물 (1층), 북측으로 아파트 단지, 남측으로 다세대주택
북측과 서측으로 조망 (내부 가구 배치 및 계단계획, 창호계획에 주안점)
차량진입은 북측 8m에서 접근 가능 / 보행자 진입은 전면 8m 도로와 후면 1m도로에서 접근 가능 (2면 접근)
후면(남측) 막다른 도로 규정에 따라 대지 내 확폭 필요 (도로중심선 기준 1.5m 이격)

계획의 시작
- 주차 적용대수에 따른 용도 및 규모산정 필요 (최대 주차 1대 계획가능 대지)
- 임대수익을 위한 공간 확보
- 주인세대는 2개층 이상 공간 확보 필요
- 1층 주출입구+주차+계단위치에 따라 근생 계획 가능
- 옥탑 or 옥상마당 or 다락 : 거주자 활용 및 계획 방향에 따라 반영

주거 정주공간과 부공간 설정 / 계단위치에 따른 동선 계획방향 설정
계단이 어디에 위치함에 따라 정주공간과 부공간 설정이 가능합니다. 수직 동선(계단)을 한쪽에 위치하는 것이 정주공간을 효율적으로 사용할 것 같지만, 화장실과 같은 부공간 계획 및 오픈계단과 정주공간이 맞물리는 계획을 고려한다면 위의 다이어그램과 같이 계단 계획은 다양한 위치로 대안설정이 가능합니다.

프로그램 조닝
각 층을 연계할 계단과 동선이 어느 공간과 물리면서 연속될 것인가를 고민합니다. 거주자 입장에서 보면 동선을 효율적으로 구성하는 것이 좋습니다. 한 층에 담을 수 있는 프로그램이 한정적이기 때문에 선택과 집중은 필수 입니다.



도심에서 내 집을 짓는 하나의 대안으로서 상가주택은 수익을 기대하는 상가의 규모와 위치에 따라 방향성이 달라지기 때문에 초기부터 용도 결정 및 단면조닝(프로그램의 구성) 검토가 세세하게 이루어지게 됩니다. 특히 작은 규모의 땅에서 협소주택+수익을 기대하는 상가(협소상가주택)를 만들기 위해서는 각각의 용도 비율이 중요해집니다.
수익성을 위해 한개층, 두개층 상가비율을 올리면 공용면적의 증가로 인한 주택비율은 줄어들게되며, 계획적으로는 주택의 현관 위치가 상부층으로 올라가 단면 조닝상 계단의 피로감은 증가하게 됩니다. 반대로 본인의 주택비율을 늘리면 수익성은 떨어지게 됩니다.
결국, 주택(본인 생활공간)의 규모와 상가(수익성) 규모의 조율이 협소상가주택을 푸는 첫 단추가 됩니다.
[용도 및 규모]

- 14평의 대지면적 --> 건축가능면적 8평
- 사업성을 위한 임대면적의 확보
- 주차없는 규모의 계획
단독주택50㎡ 이하 시설면적 계획, 근생 67㎡ 이하 시설면적 계획
- 상가주택으로서 근생용도계획, 저층부 배치 --> 3층에서 단독주택의 시작
- 준공업지역으로 협소한 대지면적에 비해 수직적인 볼륨의 여유 충분한 층고 계획 가능
하지만 층고의 높이에 따라 계단의 오르내림의 피로감도 올라가기 때문에 적정 층고 계획 필요

[ 동선 및 진출입 계획]
주출입의 분리
- 8m도로 부분 공지부분 최대 확보 1층 상가 주출입 계획
- 4m도로(도록 확폭 후) 2층 근린생활시설, 주거부분 주출입 계획
계단계획
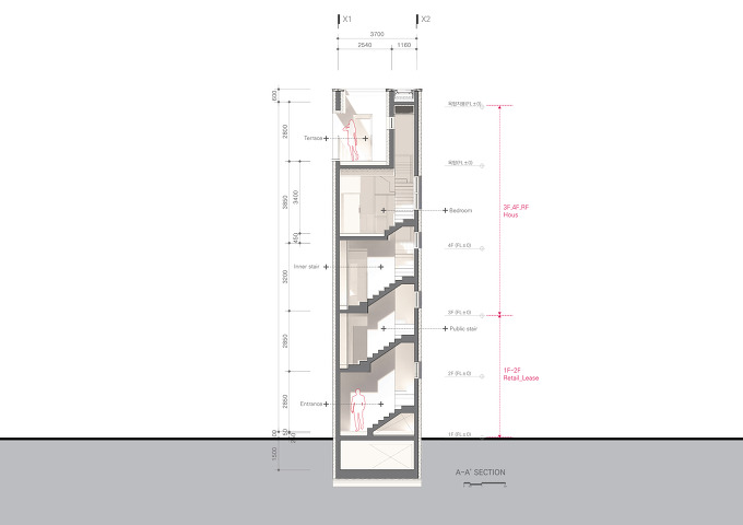
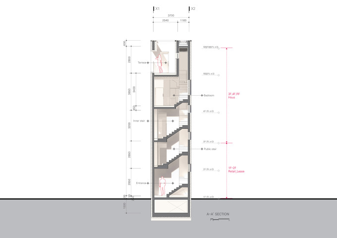
3층 현관까지의 공용계단 계획
- 진입까지의 피로감 최소화를 위한 계획
- 실용성 우선의 집안에 최소한의 계단면적을 담기 위한 컴팩트한 계단 계획
(계단참 부분 30도 3단계획 계단폭=800)
주거 내부계단 계획
- 주공간과 부공간의 적정한 위계의 배치를 위한 계단의 방향 변경 (단방향-->장방향)
- 오픈계단으로 계획된 선적인 요소의 계단공간과 정주공간의 교집합을 만드는 계획
- 복도공간을 정주공간과 함께 활용할 수 있는 공간계획

[주거 평면구성_3F,4F,RF 3개층 구성]
- 3F 침실+욕실+파우더룸(건식세면대+세탁시+건조기)
- 3층 주거 현관부터 기능적인 거주자 사용패턴을 반영한 평면구성
현관->파우더룸->옷장->욕실->세탁기->침실
- 3층 현관부터 침실까지 진입방향의 공간의 깊이로 위계를 만듬으로서 게스트 방문시 프라이버시 확보
- 4F (L+D)+K 주방이 분리되어 옥외데크와 L+D사이 위치, 스플릿레벨 450
- 협소한 대지에 비해 준공업지역의 건축가능한 높이의 여유치를 최대한 활용하기 위해 공용공간의 최상층 위치
- RF 옥외데크의 활용성을 고려한 주방에서 진입하도록 계단위치 결정
- 4F K 450 스플릿 레벨을 활용한 콤팩트한 주방 제안



창의 공간화
창의 계획을 한정된 내부공간의 기능적 측면만을 고려한다면 실의 입장에서 기능적으로 가장 적합한 위치에 창을 계획하게 됩니다. 하지만 창의 기능적 측면에 공간과 관계적인 측면까지 생각해본다면 창의 계획은 달라집니다.
우선적으로 창을 경계로 외부공간과의 관계 측면에서
주변 건물의 창과의 관계, VIEW의 적절성, 채광의 범위 등을 고려하게 되고, 창을 경계로 내부공간과의 관계 측면에서는 내부의 다른 공간과의 관계(L↔D↔K, MR↔L등)를 고려하게 됩니다. 여기에 외부와 내부 다시 외부를 잇는 공간의 확장성 개념을 고려하여 창과 창의 관계를 조율하며, 최종적으로 외부로 드러나는 창의 리듬 및 비례를 평면과 같이 피드백하여 입면 계획의 시작점을 만들게 됩니다.
협소주택에서 창의 계획은 공간의 물리적 거리가 작아 공간의 관계 정리를 통해 더욱더 세심한 계획이 필요합니다. 한정된 내부공간에서 외부공간과의 확장(OPEN) 및 경계(CLOSE)를 만드는 창을 공간과의 관계 정리를 통해 중첩하여 계획 하였을 때 창은 공간의 개념을 같이 가져가게 되고 시각적으로 작은 공간을 확장할 수 있는 매개체가 되기 때문입니다.
SITE CONDITION - 주변 건물과의 관계, 채광

도심지에 협소주택을 계획할 때 많은 경우 이웃과의 거리가 매우 가깝습니다. 이러한 이유로 입면 계획을 위해 인접 건물 및 주변 대지환경과의 관계설정부터 시작합니다. 주변 건물의 용도 및 높이, 창의 위치 검토를 통한 인접 건물과의 관계설정, 주도로와의 관계설정을 통한 건물의 정면성을 가져야 할 범위 설정, 마지막으로 조망이 가능한 범위, 채광의 범위 등의 관계설정을 통해 아래와 같은 당산동 협소 상가주택 창 계획의 시작점을 만듭니다
1) 북서쪽 건물의 정면성 및 조망 공간 확보
2) 남측 채광 범위 설정, 내부실 계획에 맞춰 채광창 계획
3) 남서측 4층 규모의 인접 건물 계단창 및 다용도실 창과 간섭을 막기 위한 최소 창 계획
4) 남동측 3층 규모의 인접 건물 주방 창 및 거실 창과 간섭을 막기 위해 최소 창 계획
공간의 시각적 확장(조망점의 연결)과 환기


후면도로의 현관부터 시작되는 최소 크기로 계획된 공용계단은 좁은 공간의 한계를 극복하기 위해 동선상에 창을 배치함으로써 시각적으로 공간을 확장할 수 있도록 계획합니다. 우측면과 인접 건물의 관계를 기준으로 최소한의 창을 동선상에 배치합니다.
2층부터 4층까지 공통으로 배면에서 정면으로 깊어지는 정주 공간의 연결 선상에서 동선축 양 끝단에 창을 계획, 조망점을 연결하여 공간의 개방감을 최대한 확보합니다. 물론 층마다 실의 특성에 따라 창의 크기는 달라집니다. 이렇게 마주하는 창을 통해 환기는 자연적으로 해결됩니다.
3층 침실의 포켓도어는 위와 같은 동선축 선상에 계획, 선택적인 경계를 만드는 장치로 활용하여 때로는 시각적으로 공간의 확장을, 때로는 프라이버시를 지키기 위한 장치로 활용합니다.
3층 침실의 침대와 연계된 조망창과 4층 거실의 쇼파와 연계된 조망창은 좌측면으로 조망을 확보하고 가구와의 관계를 고려하여 정적인 공간의 확장을 의도합니다.


설계를 마치고, 실시설계까지 납품하게 되면 설계자의 몫은 대부분 끝납니다. 시공과정을 관리·감독하는 감리자의 역활로 전환됩니다. 주어지 여건에 따라 법정감리를 수행할 수도 있고, 설계구현의도 업무를 수행할 수도 있습니다. 그리고 건물이 완성되면, 준공을 하기 위한 사용승인 업무를 진행합니다.
건축가와 건축주가 약속한 계약서의 시간은 여기까지 입니다.
오늘은 건축주께서 입주 후 초대해 주셔서 함께 저녁 식사를 했습니다. 함께한 설계과정에 대한 많은 이야기, 시공 중에 에피소드 등 함께 걸어온 이야기들을 이제는 즐겁게 나누는 시간입니다. 새로운 생활공간에 대한 리뷰를 사용자 시점에서 이야기 나누는 순간은 매번 설계자 입장에서 값진 경험입니다.
식사 중간 집안 곳곳을 조심히 돌아봅니다.
설계자로서 아쉬운 공간들이 건축주의 손길로 아름답게 다듬어진 것을 보며, 마음속 한켠의 아쉬움을 뒤로한 채 즐거운 마음으로 장면들과 마주하고 인사합니다.






| [2020] 리테일한남 (0) | 2024.01.08 |
|---|---|
| [2020] 이태원24 (0) | 2024.01.08 |
| [2020] 자양243 (0) | 2024.01.03 |
| [2020] ㄹ: 리을 (0) | 2024.01.02 |
| [2019] CHA.UM (0) | 2024.01.02 |