2024. 1. 2. 20:10ㆍPROJECT/Story

-대지-
대지위치: 서울시 광진구 군자동
용도지역지구: 도시지역, 제2종 일반주거지역
대지면적: 112.6㎡ (34평)
건폐율(법정)60%: 67.56㎡ (20.44평) / 용적률(법정)200%: 225.20㎡(68.12평)
도로: 남측 4m(막다른도로, 소요도로길이 확보, 확폭 필요 없음)
대지형태: 동서방향으로 긴 직사각형 (약 12m*9.5m)
주변건물: 동서측, 다가구 주택 인접 / 북측, 대지보다 아래에 위치한 다가구 주택 인접
차량진입: 남측 도로 이용

-계획의 시작-
(1) 레벨의 정의
대지저점에서 0.15m 이상 설정 / 도로보다 높게 위치, 외부우수 및 다양한 외부요소 침투 방지
기준층고: 1층:2.8m / 2층:2.9m / 3층: 3.2m (건물높이 9m 이내로 맞춤)
기준천장고: 1층:2.35m / 2층:2.45m / 3층: 2.4m (수직공간 최대확보)
(2)시작면적
1층 면적: 36.91㎡(11.17평)+ 주차1대(전면4m도로, 대지 내부로 2m후퇴 설치)
2층 면적: 65.77㎡(19.90평) / 건폐율 58.41%
3층 면적: 40.88㎡(12.37평)

(3)프로그램(건축주 요청사항)
부모님(2인)+가족(4인): 2가족이 분리, 함께하는 단독주택
1. 부모님 공간(3개공간): (침실) / (거실,주방) / (욕실)
2. 가족 공간
2.1. 주공간(6개공간): (거실) / (주방,식당) / (마스터침실) / (아이들침실) / (스터디공간) / (게스트침실)
2.2. 보조공간(3개공간): (계단+현관) / (통합유틸리티:드레스룸+욕실+세탁실) / (욕실,보일러실,창고)
3.1. 부모님을 위한 1.5룸 공간을 1층에 배치
3.2. 4인가족을 위한 9개의 공간을 2,3층에 배치 (계단과 욕실은 각층 중복으로 실제는 10개 공간이 필요)
(4)계획의 전제 및 우선순위
3층 면적 확보를 위한 레벨조정 및 스킵플로어 적용

거실,주방,식당을 남측에 통합배치--> 하나의 공용공간으로 확장 활용
우선순위공간: 거실> 주방> 마스터침실> 아이들침실> 스터디공간> 게스트침실> 통합유틸리티
계단의 위치: 1층, 2층, 3층이 중첩되는 지점에 설치


-대안설정-
(1) 대안(zero) 최소규모, 계단 남측 위치
2층(5개공간): (거실) / (주방+식당) / (마스터침실) / (욕실+보일러실+세탁실) / (계단실)
3층(3개공간): (아이들침실) / (스터디공간) / (욕실,계단실) / 테라스

(2)대안(1)스킵플로어적용, 계단 남측 위치
2층(5개공간): (거실) / (게스트침실) / (주방+식당) / (보조주방+욕실+보일러실) / (계단실+스터디공간)
3층(3.5개공간): (마스터침실) / (아이들침실) / (통합유틸리티:드레스룸+욕실+세탁실) / (계단실) / 테라스

(3)대안(2)스킵플로어적용, 계단 북측
위치2층(5개공간): (거실) / (주방+식당) / (게스트침실) / (보조주방+욕실+보일러실) / (계단실)
3층(4개공간): (마스터침실) / (아이들침실) / (스터디공간+계단) / (통합유틸리티:드레스룸+욕실+세탁실) / 테라스

<시작하기>
제2종 일반주거 지역에서 제한하는 건폐율 60%, 용적률 200%를 찾기 위한 작업이 시작됩니다. 대부분의 경우, 2층과 3층은 허용하는 건폐율 내, 바닥면적 계획이 가능합니다. 그래서 규모 산정의 화두는 1층과 4층(이상)의 규모를 검토하는 것에서 시작됩니다. (주차장 확보와 정북사선 적용)
1층의 경우는 주차장 설치를 위한 외부공간과 1층 공간의 밀고 당기는 실랑이 속에서 규모를 찾습니다. 상층부 규모는 북측 인접대지로 부터 1.5M 이격시 9M(3층까지)까지 정북사선 영향 없이 계획이 가능하기 때문에, 4층부터 1/2정북사선을 고려한 규모를 검토합니다.
<대지: 막다른 도로/정북사선>

이번 군자동 주택 프로젝트는 대지가 갖고 있는 두가지 조건을 함께 풀어야, 1층과 상층부(정북사선 영향을 받는 높이)계획이 가능합니다.
대지 남측에 접한 막다른 4M 도로 / 사업대지보다 낮은 북측대지.
막다른 4M 도로에 접한 대지의 한계에 따라 건물 진출입을 위한 출입구와 차량 주차 위치가 개략적으로 선정됩니다. (다행히 35M 이내 막다른 도로라서 도로 확폭이 필요 없습니다.) 여기에 건물의 용도와 규모를 주차장 1대 설치 기준으로 계획, 1층공간과 출입구를 설정합니다.
<3층 규모-정북사선>

사업대지 보다 북측 인접대지의 레벨이 1.4M 낮습니다.(여기서 말하는 각 대지의 레벨값은 각 대지의 가중평균산출 값입니다.) 두 대지의 가중평균선에 따른 정북사선 레벨이 대지기준으로 -0.7M 아래에 위치하게 됩니다. 이러한 기준에 따라 북측에 가까운 3층 일부는 정북사선에 저촉, 계획을 재고해야 됩니다. ( H=8.3M )
<층고조정>

0.7M를 극복하기 위한 방법이 필요합니다.
3M로 가정한 층고를 재고합니다. 바닥마감+콘크리트 바닥+ 천장마감= 450mm(0.45M) / 유효 천장 높이는 2.4M로 조정, 층당 2.85M로 설정합니다. 3개층 높이를 2.85M + 2.85M + 2.85M= 8.55M로 조정합니다.
<레벨조정 /주차장 /볼륨찾기>

1층의 시작레벨을 기준레벨에서 -450mm(0.45M)로 조정합니다. 이렇게 조정된 건물의 높이는 대지기준으로 8.1M 입니다. 3층 계획을 위한 기준 레벨은 설정되었습니다. 여기서 몇가지 세부적인 조정을 진행합니다.
주차장이 설치되는 레벨을 -450mm(0.45M) 조정하는 것은 무리가 있습니다. 도로보다 낮은 주차장 진입을 위한 경사로 확보와 외부에서 유입되는 우수 등의 문제를 해결해야 합니다. 오히려 도로보다 높게 설정할 필요가 있습니다. 필로티 하부에 위치한 주차장의 유효높이 또한 확보해야 합니다. 주차장이 위치한 2층은 이러한 이유로 레벨 조정이 불가, 사업대지와 도로레벨을 기준으로 하는 레벨값을 설정합니다.
<6개의 레벨 / 면적>

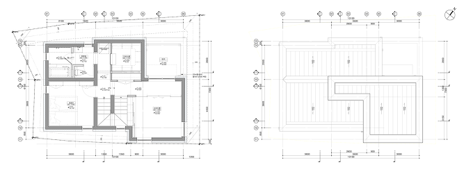
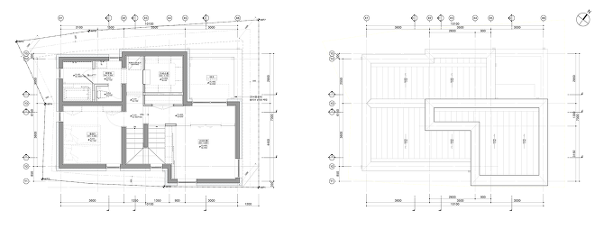
1층에서 시작된 2개의 기준레벨은 전층을 관통하며, 3개층 높이에 6개의 스플릿레벨으로 설정됩니다. 3개층에 설정된 각층 레벨은 +-400mm으로 연속된 공간을 확보합니다.
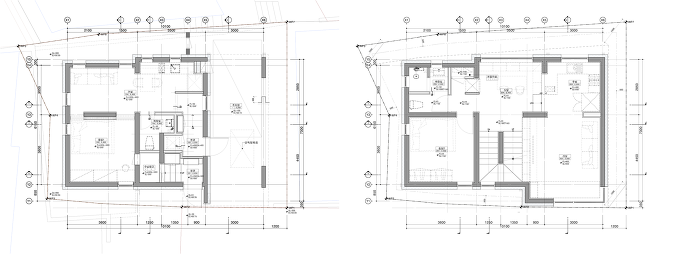
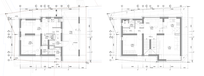
면적과 비율에 따라 1층은 게스트를 위한 1.5룸 계획 / 2,3층은 건축주 가족(4인)을 위한 공간으로 진행합니다.


출입현관을 기점으로 2층으로 올라가는 동선과 1층 내부로 진입하는 동선을 분리합니다.
현관에서 계단의 위치는 두가지 설정이 가능합니다. 현재 대지상황을 고려, 건물 중심부에서 위아래(남측 / 북측)로 배치 가능합니다. 남측에 있을 경우, 효율적인 동선 및 레벨계획이 가능합니다. 2,3층 공간은 남북방향으로 확장되는 플랜계획이 가능합니다. 북측에 있을 경우는 현관과 계단동선이 길어져, 1층 활용도가 떨어집니다. 2,3층 공간은 동서방향으로 확장되는(남측으로 열린 공간) 플랜계획이 가능합니다.
이러한 분석결과를 바탕으로 두가지 지점을 동시에 고민했습니다. 1층 공간 확보 (상층부 동선으로 1층 내부가 축소되지 않도록)와 2,3층에 구성해야 하는 4인가족의 프로그램 구성 방법과 거주형태를 고민했습니다.
<STAIR>

공용공간과 사적공간을 2층과 3층으로 분리하는 구성방식보다 공간이 건축주 삶에 밀착될 수 있도록 공용공간의 위계를 구분합니다. 그 위계에 적합한 사적공간을 연결, 동시간대에 놓습니다. 먼저, 거실과 주방, 식당을 같은 위계로 설정합니다. 스터디룸(다목적실), 드레스룸, 가족욕실이 같은 위계로 배치됩니다. 그리고 여기에 각 공용공간을 중심으로 사적공간과 보조공간을 연결, 하나의 정주공간을 생성합니다.
*스터디룸은 당초 건축주가 요청한 게스트룸과 참선실 등, 다목적으로 사용 가능한 공간입니다.
<PUBLIC ZONE>

생활영역을 연결, 분리하기 위한 첫단추, 계단을 남측에 배치합니다.
건축주 부부의 1차 생활영역인 마스터 침실과 거실, 주방, 식당을 하나의 정주공간으로 생성합니다. 2차 생활영역인 아이들 침실과 스터디룸, 드레스룸, 가족욕실을 또다른 정주공간으로 생성합니다. 공간의 활용빈도와 사용성을 바탕으로 구분된 생활영역은 주거 내부의 기능적인 측면을 보장하는 동시에 거주자간의 생활을 존중해 줍니다.
<PROGRAM>

마스터 침실, 거실, 아이들 침실, 스터디룸은 남측에 위치합니다. 드레스룸, 가족욕실, 화장실, 주방, 식당은 보조적인 역할로 북측에 위치합니다. 여기에 마스터침실과 아이들 침실을 남서측, 위아래 배치함으로써 다른 프로그램의 간섭을 최소화하고, 정적인 공간으로 유지시킵니다. 남동측에 위치한 거실과 스터디룸은 활동적인 공간으로 제공합니다. (거실은 주방으로 확장 / 스터디룸은 테라스로 확장)
부모님을 위한 1층 공간은 거주형태에 따라 향후 확장이 가능하도록 유연하게 계획합니다. 남측에 위치한 침실을 기점으로 서재를 겸하는 작은 응접실이 북측에 배치됩니다.
<PLAN>



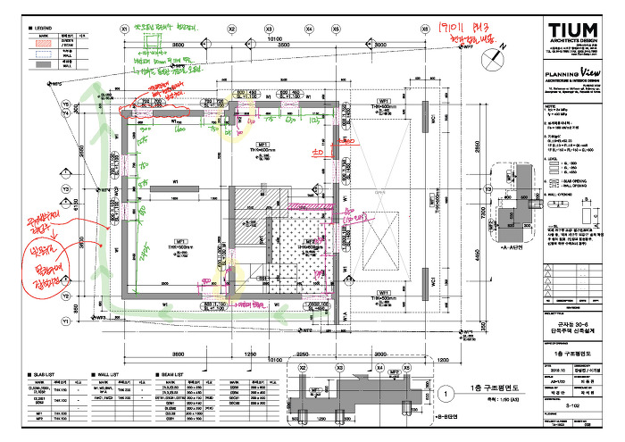
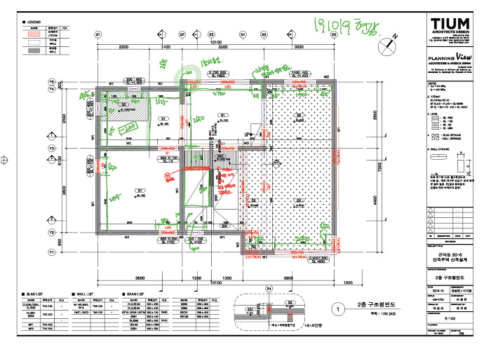
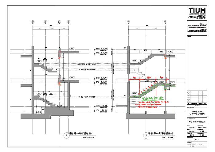
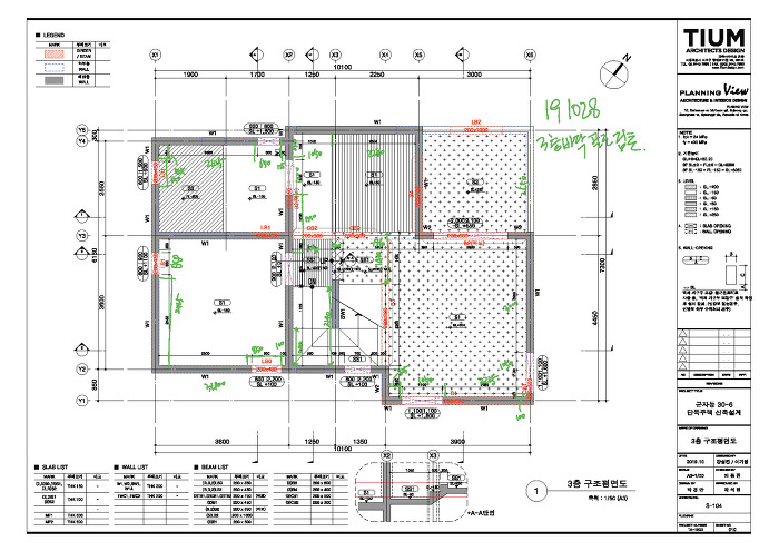
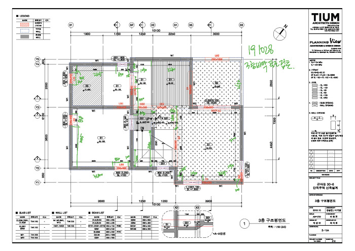
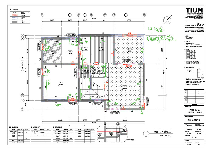
실시설계 납품 후, 현장에서 실시도면과 현장상황을 검토하는 일은 중요합니다. 허용오차를 감안한 건축치수와 구조치수를 봐야 합니다. 현장 타설해야 하는 RC 구조의 특성상, 오차는 발생합니다. 오차를 최대한 좁히면서 시공성을 확보하는 것이 현장의 몫이지만, 이를 함께 검토하고 의견을 제시해주는 것 또한 설계자의 몫이라 생각 듭니다.



| [2020] 이이공 (0) | 2024.01.04 |
|---|---|
| [2020] 자양243 (0) | 2024.01.03 |
| [2019] CHA.UM (0) | 2024.01.02 |
| [2019] JCW 이태원 (5) | 2023.12.31 |
| [2018] 웰메이드12 (0) | 2023.12.25 |