2024. 1. 3. 20:55ㆍPROJECT/Story

좋은 집의 보편적인 가치기준은 단독주거와 임대주거에서 동일한 바탕으로 적용됩니다. 합리적 기능이 바탕되는 공간과 쾌적한 거주가 첫번째 목표입니다. 금회 다가구 프로젝트 또한 건축주의 요청처럼 임대인 만족하며 살 수 있는 집을 목표로 설계됩니다.
물론, 임대주거 시장에서 중요한 사업성 확보는 첫번째 목표로 진행됩니다.
(사업성 확보에는 다양한 의미가 담긴다. 비교적 저렴한 시공비 투입으로 최대한 면적을 찾는일이 될 수도 있고, 적당한 시공비로 더 좋은 공간을 만드는 일이 될 수도 있다. 건축, 집이란 것이 1~2년 쓰고 버리는 것이 아니기 때문에 조금더 장기적으로 생각하고 내다본다면, 좋은 공간을 어떻게 가성비 있게 만들 것인가를 역으로 고민하는게 맞을 수 있다.)

<대지현황>
대지위치: 서울시 광진구 자양동
용도,지역지구: 도시지역, 제3종 일반주거지역
주변건물현황: 남측, 서측 기존 2층 높이의 건물 인접 (0.5m 이내) / 북측 7층 높이 건물 신축
-->남측, 서측, 북측, 3면이 건물로 둘러 쌓여 있음 (서측, 남측은 3층부터 시야 확보)
도로: 동측 4m(통과도로)
<검토방향>
1. 건축주 요청사항: 다가구주택 / 원룸+투룸 (전체 임대용 주거와 주인이 함께 거주하는 임대주거 계획 검토)
2. 주차에 따른 다가구주택, 가구수 검토 (주거전용면적 30 미만시, 0.5대 / 근린생활시설은 134 당 1대 설치 기준)
(a)주차 3대 적용시: 주거 6가구 가능 / (b)주차 2대 적용시: 주거 4가구+ 근린생활시설
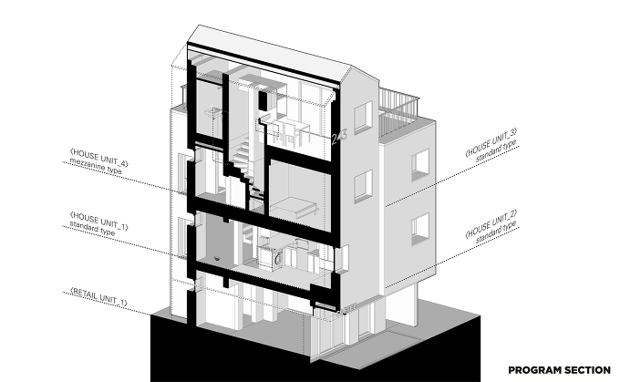
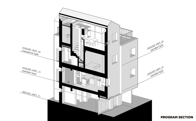
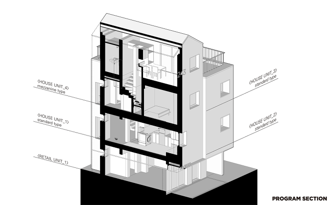
3. 프로그램 구성
(a)주거: 2,3,4층 / (b) 주거: 1,2,3층 / (c) 근생: 1층, 주거:2,3,4층
<설계방향>
1. 주차 검토
(a)대지의 현황
직각주차 적용시, 6m 확보를 위해 전면 4m 도로로 부터 대지 내에 2m 후퇴 후 설치 가능
대지 길이가 짧아서 앞뒤 연접주차 불가 / 대지와 도로가 접하는 방향으로 횡렬로만 주차 가능
평행주차 적용시, 전면도로에 인접하여 설치 가능

(b)주차 3대 적용시
주차3대를 횡렬로 배치 / 건물 구조체(필로티 구조)를 고려, 진출입 통로 1m 확보
계단을 서측으로 배치 . 1층에 주거 또는 근생 공간 없음
4층에서 공용계단 사용이 불가 (정북사선 저촉됨) / 4층 단독가구 적용시 공용계단을 안쪽에 신설
*3대 설치의 목적은 4층부터 공간을 활용하기 위함인데, 정북사선으로 인해 4층공간을 공용에서 연결하는 별도세대 설치가 어려움 상황임. 효용성이 떨어짐.

(c)주차 2대 적용시
직각주차 2대 / 건물 구조체(필로티 구조)를 고려, 진출입 통로 1m확보
계단배치가 주차 3대인 경우보다 유연하며, 이에 따라 1층 공간 확보할 수 있음 (주거 또는 근생으로 활용)
*주차 2대 설치가 현 대지에서 합리적인 규모 대안
*직각주차 및 평행주차를 함께 설치하는 대안 설정 필요
2. 프로그램 조닝 검토

ALT1: 주거2,3,4층: 4층은 독립적으로 사용이 힘들고, 3층과 연계하는 복층형 유닛구성이 합리적
ALT2: 주거1,2,3층: 1층을 주거로 사용시, 4층에는 주거를 설치 할 수 없음 (다락 적용)
ALT3: 근생1층 / 주거2,3,4층: 1층 근생 활용 / 3-4층 복층형 유닛 계획 / 최대면적 확보
가구 및 계단 배치 대안
-프로그램: 1층 근린생활시설 / 2~4층 다가구주택 (4호)
-주차: 2대
-코어(계단실)+주거 유닛 조닝: 주거 유닛 배치방향 설정

<ALT1>계단실을 건물 중심부에 위치, 계단실에서 동서방향으로 세대를 배치 (주거유닛은 남북방향)
주거유닛: 균일하게 남측 채광 확보 / 주차: 평행주차+직각주차=2대

<ALT2> 계단실을 서측에 위치, 계단실에서 남북방향으로 세대를 배치 (세대평면은 동서방향)
주거유닛: 균일하게 동측 조망 확보 / 주차: 평행주차+직각주차=2대 or 직각주차=2대

<ALT3> 계단실을 건물 중심부, 동측 전면에 위치, 계단실에서 동북/서북방향으로 세대를 배치 (세대평면은 동서방향)
주거유닛: 2면 또는 3면 확보 / 주차: 평행주차+직각주차=2대 or 직각주차=2대

<ALT4> 계단실을 건물 서측에 위치, 계단실에서 남북방향으로 세대를 배치 (세대평면은 동서방향)
주거유닛: 3면 확보 / 주차: 직각주차=2대

-주거유닛 조닝: 스탠다드형(22㎡) 3호 + 복층형(40㎡) 1호 조닝 구성
2층: 스탠다드형 2호 / 3층: 스탠다드형 1호+ 복층형 하부층
4층: 복층형 상부층 (테라스 포함)
-주거 유닛 배치+코어(계단실) 조닝: 동서길이방향으로 주거유닛 배치-> 조망권 확보 /ㅁ자 형태의 계단실, 복도를 서측 중앙에 배치
-주거 유닛 세부 배치 계획 (서측에서 동측 방향 순)

1) ALT-1: (화장실)+(현관)+(보일러)+(RM: 주방+침대+테이블+옷장+벤치)
2) ALT-2: (보일러)+(현관)+(주방+화장실)+(RM: 테이블+침대+옷장+벤치)

3) ALT-3: (화장실)+(보일러+현관+주방)+(RM: 테이블+침대+옷장+벤치)
4) ALT-4: V(보일러+화장실)+(현관+주방+테이블)+SKIP+(RM: 테이블+옷장+침대)

1. 분할 및 구성기준
>3개의 공간으로 구성: 계단실 / 유니트 2ea = 3part
2. 유니트 구성기준
>주거부분은 4개의 공간으로 구성: 주생활공간(내부 유효치수 2100 확보구간) / 확장형 발코니 공간 (서비스면적) / 부생활공간 / 화장실
>근생부분:<3part> 근생 / 창고 / 화장실
3. 동선; 진입복도, 계단실, 복도 치수 기준(mm) (단독주택의 다가구, 소형원룸)
>계단폭: 900이상 / 계단단높이: 180이하, 단수: 16계단(층고에 따라 조정) / 복도 폭(안목): 1000이상

4. 내부 공간 유효치수 기준(mm) (소형원룸 기준)
>출입문: 1000이상 / 현관: 1000이상 / 화장실: 1500, 화장실문: 700 / 보일러: 700 / 주방가구: 2100 / 옷장 및 수납: 2500 / 유효복도폭: 900이상






| [2020] 이태원24 (0) | 2024.01.08 |
|---|---|
| [2020] 이이공 (0) | 2024.01.04 |
| [2020] ㄹ: 리을 (0) | 2024.01.02 |
| [2019] CHA.UM (0) | 2024.01.02 |
| [2019] JCW 이태원 (5) | 2023.12.31 |