2022. 3. 15. 03:15ㆍPROJECT/Project

대지 면적 Site area: 73.10㎡
건축 면적 Building area: 43.79㎡
연면적 Total floor area: 149.23㎡
규모 Building scope: 4F
건폐율 Building to land ratio: 59.90%
용적률 Floor area ratio: 204.15%
건축사무소 Architects (디자인 사무소 Designer): 건축사사무소 틔움 / TIUM Architects
책임 건축가 Architect in charge (책임 디자이너 Designer in Charge): 차석헌 Cha seok heon / 강성진 Kang sung jin / 이동진 Lee dong Jin
건물 위치 Location: 경기도 성남시 수정구 태평동 / Taepyeong-ro, Sujeong-gu, Seongnam-si, Gyeonggi-do, Republic of Korea
건축 형태 Type: 신축 / New-built
건축 용도 Programme: 단독주택 / Single Family House
주요 구조 Main Structure: 철근콘크리트 RC
구조 Structural engineer: 시너지구조엔지니어링
기계 Mechanical engineer: 코담기술단
전기/통신 Telecommunication equipment: 성지이엔씨
시공 Construction: 세움건설
완공 연도 Year completed: 2022
사진가 Photographer: 이한울

도시의 끝자락, 도시의 경사를 따라 공원이 시작되기 전에 위치한 대지는 도시전경을 한눈에 내려 보는 전망을 갖고 있습니다. 남측으로는 도시전망, 북측으로는 가까이 자연환경을 담을 수 있는 공원이 바로 마주하고 있습니다. 도시생활과 자연환경을 함께 누리는 장점과 접근성이 조금 떨어진다는 단점을 함께 갖고 있는 대지 입니다. 거주자의 생활방식에 따라 호불호가 나뉠수도 있습니다.




북측과 서측 두개의 도로에 접해 있습니다. 대지 기준으로 약 3미터 높이 위에 위치한 북측도로와 골목의 끝, (대지 높낮이 차이 때문에) 계단으로 연결되는 서측도로에 접해 있습니다. 두개의 도로에 접하고 있지만, 어쩌면 두개의 도로에 다 접하지 못할 수도 있는 상황입니다. (우리가 말하는 맹지일 경우가 있습니다.)
북측도로의 경우, 대지경계의 높낮이가 다르기 때문에 경계지점이 어디 높이에 연결되어 있는지가 중요합니다. (대지경계가 높이가 낮은 현재 대지에 있는 경우는 도로연결이 안되는 맹지로 볼 수 있음) 서측도로는 낮은 도로가 높은 도로를 연결하기 위해 계단식으로 연결되어, 차량통행이 불가한 보행통로 역활만 가능한 대지라면 막다른 도로로 인한 도록 확폭으로 대지면적이 축소됩니다. 건축시작을 위해, 첫단추로 도로관계부터 정리합니다. 경계복원 측량과 현황측량을 진행, 대지 현황을 파악한 후, 자료를 정리하여 지자체 관련 부서와 사전협의를 진행합니다.
(수정구청_건축허가팀 / 수정구청_건설과 소하천팀 / 수정구청_도로관리팀 / 성남시청_주차장운영관리팀)
'대지분석 내용보러가기'
협의 결과는 아래와 같습니다.
북측도로: 대지 경계선이 높은 레벨에 형성되어,( 대지의 일부분이 높은 북측대지에 걸쳐 있음) 도로와 연결이 가능한 상태.
서측도로: 막다른 도로이지만, 지자체 내규에 따라 현황도로(4m)를 확폭없이 사용 가능함, 계단이 시작되기 전, 대지와 도로와 접하는 구간으로 차량 진출 가능함.
조금은 우려되는 대지상황에서 두개의 도로를 사용할 수 있는 대지로 상황이 바뀌었습니다.


이제 두개의 레벨(1층과 2층)에서 접근이 가능합니다. 다른 가구로 분리하여 사용할 수도 있고, 하나의 가구이지만, 출입구를 분리하여 거주자들의 사생활을 존중해주는 방법을 찾을 수도 있게 되었습니다. (출입구 설정시, 주차위치도 함께 고려합니다.)
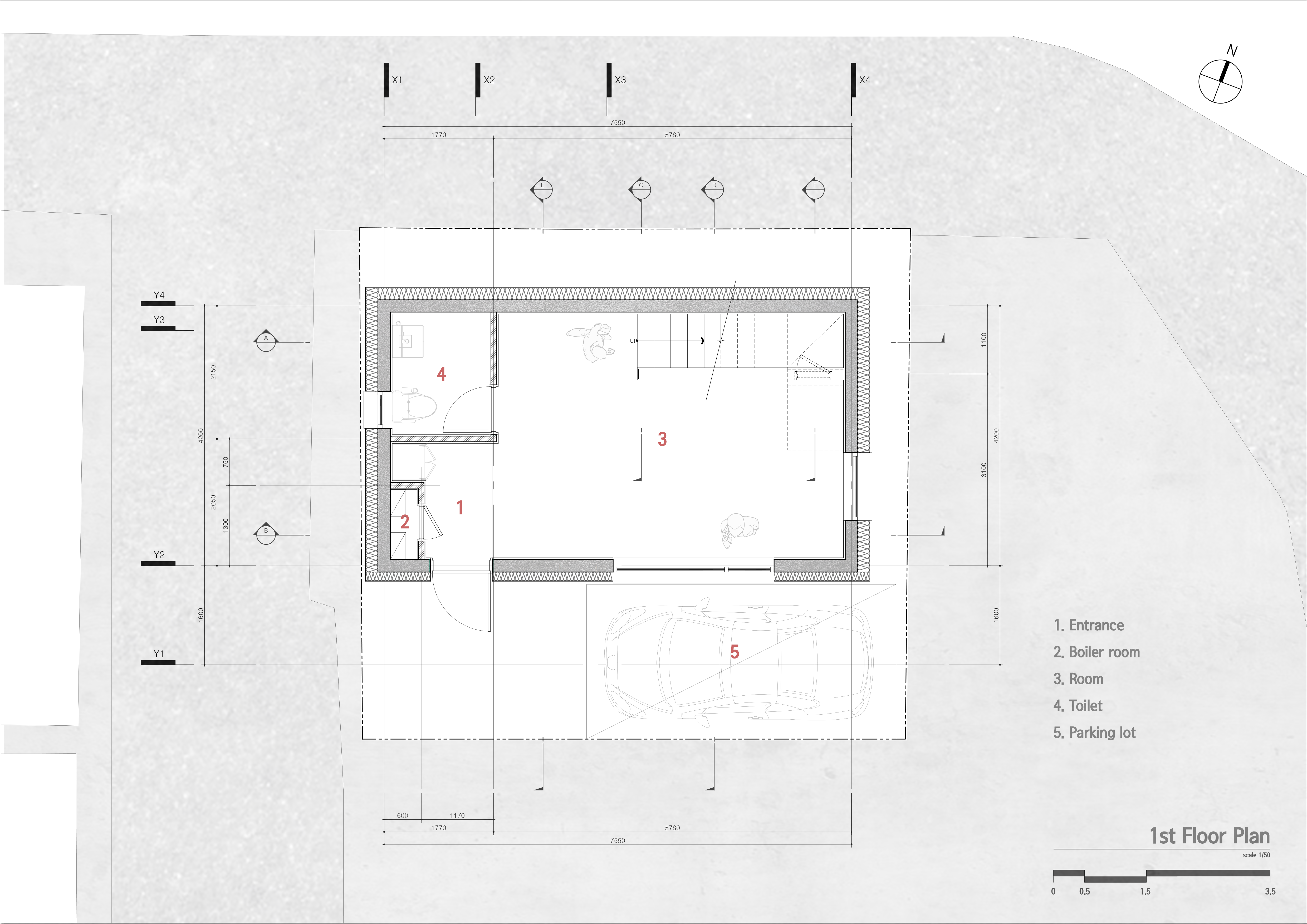
주출입구; 현관은 2층에 설정하여 2,3,4층을 연속된 하나의 공간으로 사용하기로 하고, 1층은 별도의 공간으로 활용 합니다. 주차장은 1층에 배치합니다. (고민: 2층에 주차장을 만들면, 시내도로를 따라 들어올 수 있습니다. 1층에 주차장을 만들면, 골목길을 따라 들어와야 하죠. 주차장이 만들어 지는 곳은 당연히 건축공간을 내어줘야 하죠. 2층에 주차장을 계획하는 것이 여러모로 불합리 하죠. 주요 공간을 활용하지 못하는 점도 크고, 기존 보도 사용을 위한 도로점용과 도시기반시설물의 이설을 해야 하는 문제점들이 발생합니다.)




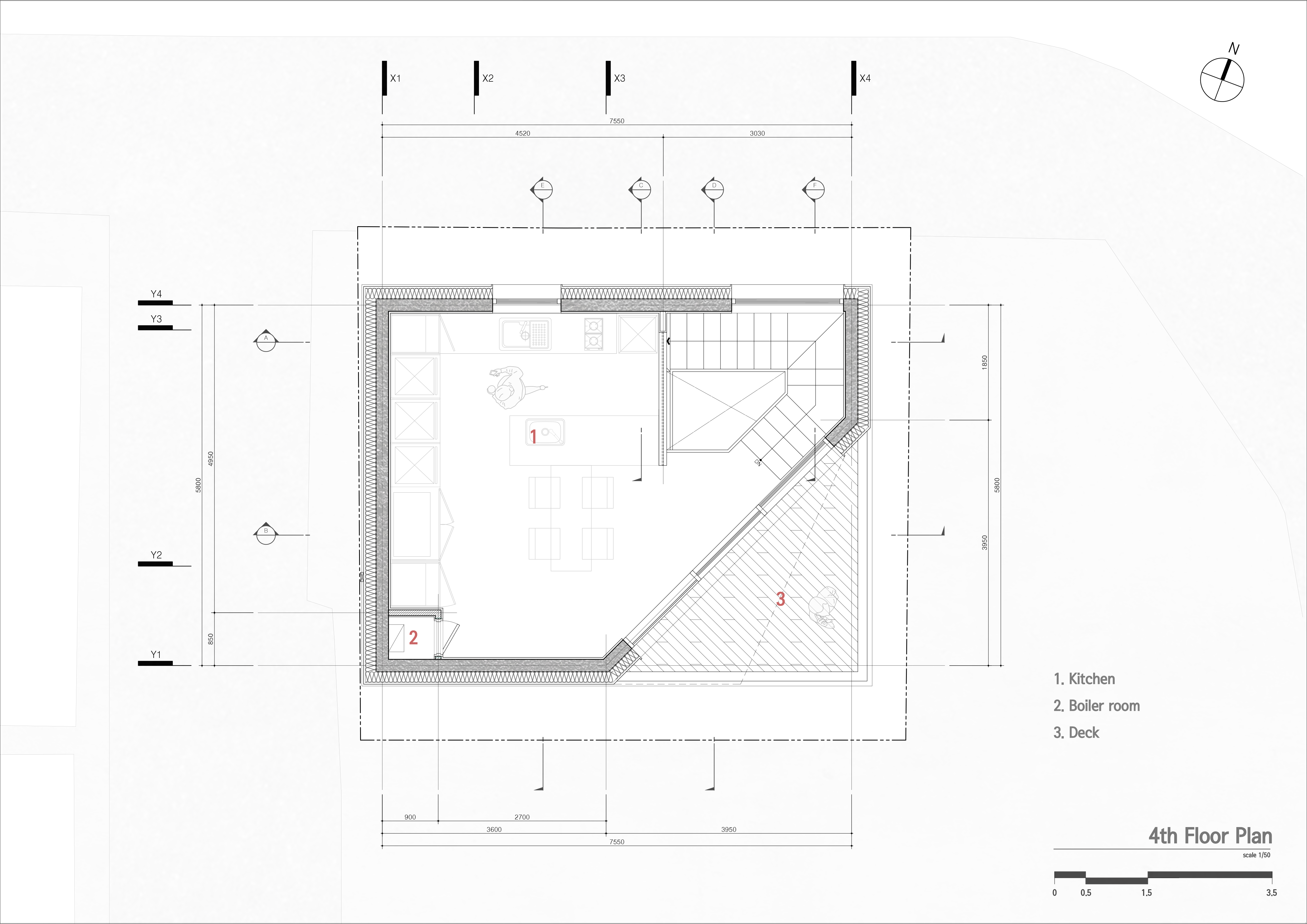
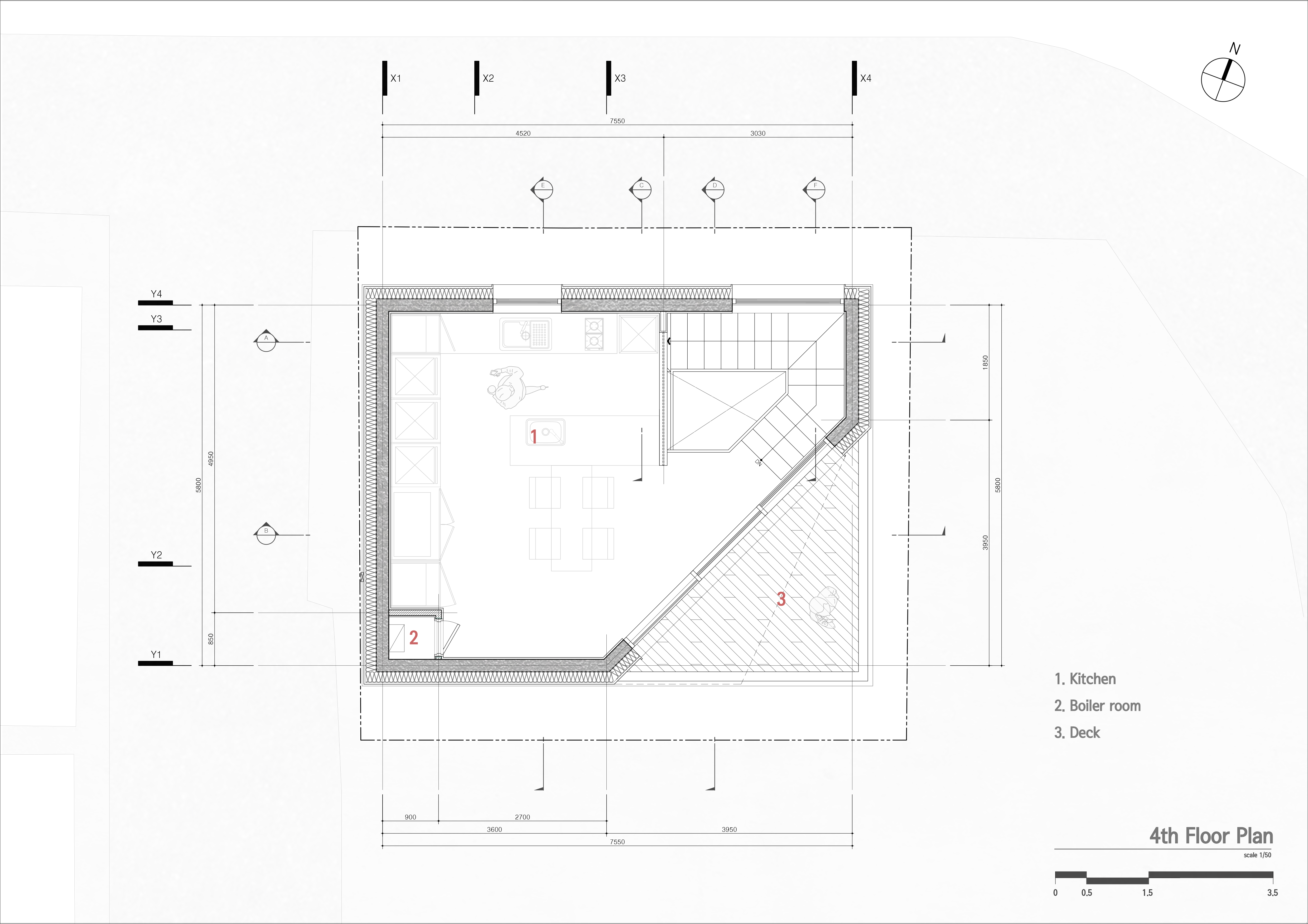
처음부터 건축주(아내)는 주방을 최상층에 그려 왔습니다. 전망 좋은 루프탑에서 생활하는 모습을 그려왔던 건축주에게 4층의 프로그램은 고정값입니다. 1층은 건축주가 별도로 사용하는 다목적 공간, 4층은 테라스와 주방,식당. 4인 가족을 위한 프로그램 설정 중, 1층과 4층은 정해졌습니다. 이제 고민은 공용공간과 사적공간을 어떠한 방식으로 구성할지가 남았습니다. 영역으로 분리하는 방법과 거주자의 관계(부모와 자녀)로 분리하는 방법에 따라 2층과 3층의 역활이 달라지기 때문입니다.
건축면적이 어느정도 여유가 있다면, 4층에 주방, 식당, 거실을 구성하면서 2층과 3층을 유연하게 구성할 수 있겠지만, 13평 면적에서는 선택을 해야 합니다. (13평 건축면적에 테라스를 포함한 공용공간을 넣기에는 여유가 너무 없습니다.) RM 한개를 3.3평정도로 환산하면, 13평에 4개정도 배치됩니다. 여기에 계단과 화장실을 제외하면 각층마다 프로그램을 삽입할 수 있는 공간의 크기는 2.5RM~3RM 정도 입니다.
'프로그램 구성 원칙: 설계과정 보러 가기'
우리는 거주자 관계에 따라 공용공간과 사적공간을 분리하는 방식을 선택했습니다. 곧 성인이 될 자녀의 생활을 보장해 주고, 부모의 생활을 보장해주는 방식으로 각각의 침실을 2층과 3층으로 분리 한후, 그 중간지대; 3층에 소거실을 배치합니다. 사적공간과 공용공간은 퐁당퐁당 짝을 맞추며 각층에 자리를 잡습니다.
1층: 출입+다목적실 / 2층: 출입+ 두자녀를 위한 룸2+화장실 / 3층: (소)거실+ 마스터룸+ 욕실(드레스,세탁,건조기 포함) / 4층: 주방,식당+테라스로 구성합니다.





테라스의 위치는 계단과 주방,식당의 관계에 따라 동남측 방향으로 설정합니다. 남측과 동측 두개의 도로로 열린 배치는 계단 앞(남측 자투리)공간을 사용할 수 있고, 효율적인 동선 구현이 가능해 집니다.
그리고 테라스의 활용을 위해 다양한 방법으로 건축공간을 모색합니다. 테라스가 자리한 만큼 내부공간; 주방과 식당이 축소되기 때문에 네모 반듯하게 한자리를 내어주는 방식보다 삼각형태로 빗각치듯이 공간을 잘라냅니다. 계단 방향 또한 비스듬히 빗각에 평행하게 돌려줍니다. 이러한 방식으로 식탁이 들어갈 내부공간을 확보하며, 넓은 하나의 창문으로 내외부가 만날 수 있도록 합니다. 북측에 위치한 창문과 테라스 창문이 가까워진만큼 계단과 보이드에 채광 및 개방감이 확대 됩니다.
두개의 도로가 만나는 교차로에서 건물의 모서리 대신 면을 만듭니다. 이렇게 생성된 면을 통해서 도시와 대응하는 다채로운 입면을 구현합니다. 정면과 측면의 경계를 모호하게 만듬으로써 연속된 입면으로 보이기도 하고, 입체감있는 3차원의 모습으로 보이기도 합니다. 시점마다 다른 입면을 만들어 냅니다.
태평동 주택에서 테라스는 일조사선에 의해 생겨진 부산물이 아니라, 건축주의 요청에 의해 처음부터 계획된 공간입니다. 일조사선에 의해 북측에 생성되는 테라스는 북측에 위치하여 채광이 불리합니다. 남측에 위치한 태평동 주택의 테라스는 채광 확보는 물론 도시를 전망할 수 있는 조망권도 확보됩니다.






수평공간이 작아서 원하는 공간을 하나의 레벨에 담지 못하는 경우, 계단을 이용해서 연속된 생활공간을 구성해야 합니다.
각 레벨의 프로그램 구성은 완료됬습니다. 공간의 크기와 향을 고려할때, 주요 공간을 남측에 배치하고 부속 공간과 동선을 북측에 배치합니다. 2층 주출입구(현관)에서 시작된 동선은 북동측에 위치한 계단을 통해 수직으로 연속되며, 남측에 위치한 각각의 주요공간을 연결합니다. 2층의 웰컴(전실)과 3층 거실이 연결되고, 3층 거실과 4층 테라스 및 식당이 연결됩니다. 공간을 연결하는 기능적 역활에 적층된 공간들 사이에서 오는 피로감을 해소하기 위한 숨구멍(void) 역활을 더합니다. 수직으로 설치된 보이드(void)를 통해 채광을 유입 시키고, 내부 공기를 순환 시킵니다. 4층에 설치된 남,북측 창호는 채광과 환기를 위한 보이드의 기능적 활동을 배가 시킵니다.









도시풍경에서 조금은 심심하기를 바랍니다. 도시풍경에 자연스레 묻어가는 집으로 담백한 집을 그립니다. 담백한 모습을 위해 두개의 메스(mass)로 구분합니다. 박공지붕과 삼각형 테라스가 있는 4층과 사각형 백색으로 보이는 1,2,3층을 구분합니다. (네모, 세모와 같이 하나의 도형으로 읽을 수 있는 형상으로 구분합니다. 읽기가 편해지는 만큼 직관적이고, 명확한 건축어휘로 표현됩니다.) 가로환경과 함께하는 저층부는 백색 스토 마감을 적용, 담백한 바탕으로 표현합니다. 이와달리 박공지붕으로 처리된 상층부(4층)는 이웃한 건물과 함께 에이징(aging)된 모습을 이어갈 수 있도록 적색 스무스 벽돌로 마감합니다.
시점에 따라 두가지 모습으로 보입니다. 경사지를 따라 오르면(남측에서 바라보면) 1층부터 4층까지 전체 건물을 볼 수 있습니다. 이와 반대로 길을 따라 걸으면(북측에서 바라보면) 담담한 3층 집으로 보여집니다. 도시와 조화를 이루며 그 자리에 슴슴하게 자리합니다.
하얀색 네모 위에 불그스레한 삼각형은 '슴' 처럼 보입니다.