2021. 6. 10. 21:18ㆍPROJECT/Project

대지 면적 Site area: 383.60㎡
건축 면적 Building area: 184.29㎡
연면적 Total floor area: 443.19㎡
규모 Building scope: 3F
건폐율 Building to land ratio: 48.04%
용적률 Floor area ratio: 115.53%
건축사무소 Architects (디자인 사무소 Designer): 건축사사무소 틔움 / TIUM Architects
책임 건축가 Architect in charge (책임 디자이너 Designer in Charge): 차석헌 Cha seok heon / 강성진 Kang sung jin / 이동진 Lee dong Jin
건물 위치 Location: 경기도 고양시 덕양구 오금동 / Ogeum-dong, Deogyang-gu, Goyang-si, Gyeonggi-do, Republic of Korea
건축 형태 Type: 신축 / New-built
건축 용도 Programme: 다가구주택 / Multi Family House
주요 구조 Main Structure: 철근콘크리트 RC
구조 Structural engineer: 시너지구조엔지니어링
기계 Mechanical engineer: 코담기술단
전기/통신 Telecommunication equipment: 성지이엔씨
시공 Construction: 우리마을 A&C
외장 마감재 Exterior finish: 롱브릭 타일 / 투명 로이 삼중유리 / 컬러 강판(지붕재)
내부 마감재 Interior finish: 석고보드위 수성페인트 Gypsum board/Vinyl paint finish / 강마루 Wood flooring / 타일 Tile
완공 연도 Year completed: 2021
사진가 Photographer: <외부> 권기돈 / Kee-Don Kwon <내부>꼬시나 / Cocina
'정면에서 바라보는 첫모습은'
세로로 긴 복층형 로우하우스(row house) 처럼 독립된 집의 집합체를 그렸습니다.
정면 도로에서 바라볼때, 3개의 집이 붙어 있는 모습입니다. 왼쪽부터 차례대로 직사각형 집과 두개의 사다리꼴형 집이 보입니다. 두개의 사다리꼴 집 사이에는 외부로 돌출된 작은 계단실이 있습니다. 계단실을 기준으로 두개의 사다리꼴 집은 10도 벌어져 있어요. 보는 시점에 따라 집의 정면이 다르게 보이는 이유이기도 합니다.
세로로 보이는 집의 1층과 2층사이에, 가로로 긴 보이드를 적용, 상층부와 저층부를 나눕니다. 이러한 건축적 비례와 리듬을 통해 수평성이 강조된 저층부와 공중으로 부유하는 상층부가 형성됩니다.
외부계단실은 세로로 긴 보이드가 적용됩니다. 수직동선의 시야확보와 건축적 비례로 나누어진 집의 세로를 강조하는 디자인 어휘입니다.


2개의 사다리꼴형 집과 직사각형 집이 차례대로 연결되어 있는 모습은 세로방향을 더 명확하게 나타냅니다. 대지 후면폭을 기준한 집의 모듈 때문에 세로모듈은 (정면에 비해) 담백하고 정제된 모습으로 표현됩니다. 세로로 연속되는 3개의 집이 만드는 건축리듬과 외부로 확장되는 1층 테라스 모습이 로우하우스 모습을 더 가까이 표현합니다.



택지개발지구에서 집을 설계하는 것은 도시계획 안에 정리된 인프라와 대지환경을 이용한다는 것을 의미합니다. 이웃한 건축물과 동일한 건축 디자인 지침을 적용 받는 것을 의미하기도 하죠.
건축 디자인 지침의 명암은 분명합니다. 통일감, 안정감 그리고 일정수준 이상의 건축환경 구현을 목표로 제공됩니다. 다른면에서 보면 어떨까요? 천편일률적, 특색없는 그래서 그만그만한 건축물이 만들어 질 수도 있죠. 건축주의 요구와 건축가의 의도 발현이 좁아지는 현상이 더 큰 문제로 보여집니다.
건축법의 테두리에서 정의되는 보통의 건축에는 더 많은 제약조건으로 인하여 요구와 의도가 발현되기 힘든 경우가 더 많습니다. 그럼에도 불구하고 제약조건 속에서 문제를 해결하는 설계방식과 사지선다 중 답을 고르는 설계방식은 차이가 있다고 생각합니다.
정해진 유형중, 답을 선택해야 하는 방식을 지양하기로 했습니다. 새로운 답을 찾기 위해, 새로운 문제를 내는 방식을 취하기로 했습니다. 방식은 다르지만, 목표는 보편적 가치를 우선합니다.
주인가구에게는 삶을 맞춤하는 집을, 임차인에게는 보편적 가치 기준을 상회하는 집을 계획합니다.

건축법상 다가구주택은 단독주택의 여러개의 하위목록 중 하나입니다. 소유권이 하나인 주거에 여러가구가 함께 거주하는 형태인 거죠. 관리주체가 있어서 유지관리가 지속되는 장점이 있습니다. 이와는 별개로 거주자 입장에서는 다세대와 유사한 거주환경이 주어지 때문에 공동거주 형태로 읽고 설계하는 것이 적절해 보입니다.
공동으로 거주해야 한다면, 가급적 자신의 생활과 타인의 생활에서 발생하는 불필요한 간섭을 최소화하고 싶지 않을까요? 그래서 우리는 각 가구의 생활동선과 생활영역에서 최소한의 간섭이 발생하도록, 공유하는 부분을 최소화 하기로 했습니다.
그리고 수평으로 가구를 분리하는 방식 대신, 수직으로 가구를 분리하는 방식을 선택했습니다. 이러한 설계방식은 공동거주에서 발생하는 층간소음을 최소화하고, 개별적인 현관을 확보합니다. 독립적인 생활동선이 보장됩니다.
생활영역 거리 확보를 위한 개별적인 외부공간이 함께 설계됩니다.

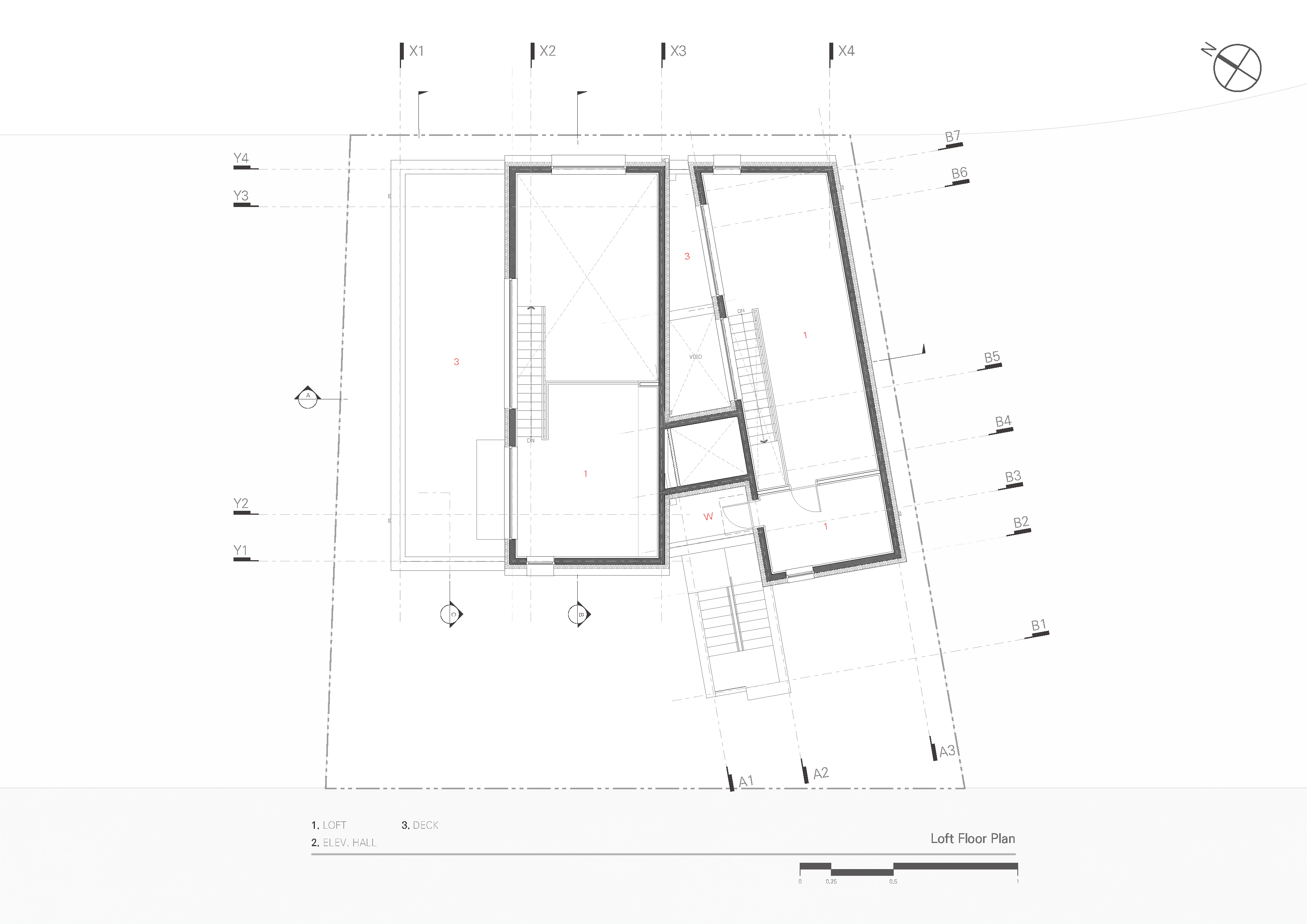
각 가구의 독립적인 거주생활을 목적으로 설계방향을 설정합니다. 일반적인 다세대처럼 가구를 적층하지 않습니다. 로우하우스처럼 가구를 세로방향으로 구분합니다. 여기서 대지의 폭(width)과 가구의 거주모듈 (module)에 따라 가구수를 결정합니다. (사다리꼴 대지 형상: 정면폭 20m, 후면폭 16m / 깊이 21m )
지구단위계획, 지침에 따라 5가구까지 구성이 가능하며, 층수는 3층으로 제한됩니다.
대지의 최소폭, 16m를 기준으로 3개의 임대가구를 복층(1층~2층) 로우하우스 타입으로 대지형상을 따라 배치합니다. 정면과 후면폭 차이에서 오는 쇄기형태의 보이드에 건물의 숨구멍: 중정과 상층부 주거를 위한 코어(core: 계단, 엘리베이터)를 배치합니다. 2개의 가구는 3층에 배치합니다. 2개의 모듈을 사용하는 주인가구와 1개의 모듈을 사용하는 임대가구가 중정을 기점으로 배치됩니다.
최종 5가구는 저층(1~2층)을 사용하는 복층형 3가구와 3층을 사용하는 단층형 2가구로 확정됩니다.

다섯개의 집은 각자의 외부공간을 갖습니다.
저층부가구는 외부녹지로 확장되는 후면 테라스를 통해 다양한 삶의 방식을 취할 수 있습니다. 휴식을 취하는 리딩누크, 가족과 즐기는 바베큐 타임, 그리고 외부녹지와 실내를 연결하는 완충데크로 사용 할 수 있습니다.
상층부 2가구에는 다락에서 연결되는 옥상데크가 적용됩니다. 주인가구의 넓은 옥상데크는 주거 1모듈이 적용되어, 다양한 외부공간 활용이 가능합니다. 정면과 후면 각각 2개의 데크가 적용된 임대가구는 거주자의 활용에 따라 맞춤 할 수 있도록 설계되었습니다.
다섯개의 마당(외부공간)은 각 가구의 생활영역을 구분하고 적정거리를 만듭니다.

출입구를 분리합니다. 공동거주에서 공용공간을 최소화하는 것은 전용율을 올리는 장점과 각 거주자의 독립적 생활을 더 보장하는 의미입니다. 코어(계단&엘리베이터)를 통해 수직으로 연결되는 출입과 달리, 저층가구는 각자의 포치를 통해 출입이 가능합니다.
2층 캔틸레버구조와 전면 가벽으로 형성된 포치공간은 거주자에게 심리적 안정감과 물리적 여유공간을 제공 합니다. 자전거, 유모차 또는 외부활동에 필요한 다양한 물품들의 여유공간 또한 생깁니다. 분리된 생활동선, 각 가구의 분리된 전이공간을 통해 독립된 거주공간은 가까워 집니다.
*전이공간은 성격이 다른 두개의 공간사이에서 완충해주는 공간을 의미합니다. 내외부 사이에 있는 발코니도 해당합니다.



3가지 이유가 만나서 지금의 사선지붕형태가 발현되었습니다.
옥상데크 (상층부 가구에게 외부공간 제공)
정북사선의 영향에 따라 주인가구의 옥상데크 위치를 선정합니다. 서측으로 열린 공간을 확보합니다. 임대가구의 옥상데크는 중정에 면하여 정면과 후면 각각 두개의 지점, 짜투리 공간을 이용합니다.
다락 (3층이하 층수제한 해결 방법)
실내에서 옥상데크로 확장되는 공간을 설계하기 위해서는 다락이 필요합니다. (실내)높이제약이 있는 다락에서 사선지붕은 선택이 아니라 필수라고 생각합니다. 범용적인 실(RM)의 사용보다는 완충공간, 수납공간, 알파공간으로 정의되는 다락의 특성상 옥상데크와 실내를 연결하는 소통공간으로 적용합니다.
디자인의도 (세로형태의 로우하우스 모습 구현)
세로로 연속된 3개의 집과 함께 2개의 사선지붕은 건물 전체를 이끌어가는 중요한 디자인 어휘입니다.
2개의 집을 커다란 사다리꼴형 집처럼 보이게 만들며, 세로방향의 건물로 디자인방향을 제시합니다. 다른 의도, 자의적 해석으로 평지붕, 박공지붕, (다른 경사방향의) 사선지붕을 적용할 수도 있습니다. 하지만 자의적 해석을 지양하는 우리의 디자인 방향에 따라, 실내와 옥상데크 동선확보를 위한 합리적 디자인을 취합니다. 그결과 서쪽으로 방향으로 건축리듬이 느껴지는 사선지붕을 적용합니다.
*다락은 연면적 삽입에 제외됨. 다락 실내 높이를 평균 1.8M 이내로 해야 함.


실제 건물의 형태는 가로가 길지만, 디자인 의도는 세로방향입니다.
설계기법 및 디자인 의도에 따라 세로방향으로 집을 읽도록 유도하고, 외장재를 가로배치하여 텍스쳐(texture:질감)를 느낄 수 있도록 합니다. 질감의 단계를 하나씩 밟고 올라가면서 켜를 느끼게 하고 싶었습니다. 동시에 질감을 갖는 거대한 덩어리(mass)처럼 보이길 바랬습니다. 이를 위해 질감의 켜가 방향성을 갖지 않도록 백색벽돌의 컬러와 유사한 백색줄눈을 적용합니다. 재료가 방향성을 갖게 되면, 재료에 초첨이 맞추어져서 전체를 방해하기 때문이죠.



























