2023. 12. 25. 23:50ㆍPROJECT/Story

대지의 제약조건은 오히려 새로운 건축을 시작하게 한다. 전형적이지 않은 주거평면, 그래서 공간을 더 특화 할 수 있는 지점이 오히려 맘에 든다. 지라프의 말처럼, 건축주 맘에 드는 것은 두번째이다. 우리가 지향하는 지점에 닿은 자식들은 한번도 건축주에게 실망을 주지 않았기 때문이다.


대지에 주어진 제약조건은 건축과 공간을 정의하는 첫번째 단추가 된다.
건축가의 개입은 두번째다. 먼저 대지의 제약조건 해결과 건축주의 생각이 담긴 건축물 접근이 우선이다.
일반적인 대지의 제약조건; 건폐율, 용적률, 정북사선(주거지역) 뿐만 아니라 층수와 가구수 제한의 숙제도 풀어야 한다.
-대지의 제약조건-
건폐율 60% 용적률 150% / 정북사선 적용
서측 보차혼용통로 6m 확폭, 남북측 보차혼용통로 각각 1미티 후퇴 확폭
3층 제한 (필로티 적용시 4층까지 가능), 6가구 제한


이전에 다양한 대안설정이 있었다. 타운하우스처럼, 단독형 6가구 제안도 있었고, 이웃한 대지를 구매해서 건축범위를 확장하는 대안도 있었다. 물론 현 대지에서 이러쿵, 저러쿵 대안도 많았다. 중요한 지점은 평범하지 않은 대지의 특성 때문에 (일반적인 건축환경으로는 풀지 못한다.) 이곳만의 특별한 무언가, (건축주의 요청처럼) 사업성이 확보되는 대안이 필요했다.
(이전 취락지역이 지구단위계획으로 지정되면서 현재 대지는 하천부지와 보차혼용통로를 내주며 가용부지가 많이 줄었다. 이런 상황이라면 지금의 건축주가 대지를 매입하지 않았을거다. 지역 건축사의 안이한 법규검토(가설계?) 때문에 그도 믿고 매입했을 뿐이다.)

주어진 대지환경과 건축시장을 반영한 임대건물을 제안한다. 6개를 개별분양하는 방식이 아니라, 주인세대와 임대세대가 하나의 건물로 묶인 건축물을 제안한다. (일반적인 다세대로 풀어서는 답이 안나온다. 한정적인 공간의 크기와 공사비, 결론적으로는 사업성이 안 나온다. 그래서 어쩌면 이곳만의 특수한 상황 정리가 필요했다.)

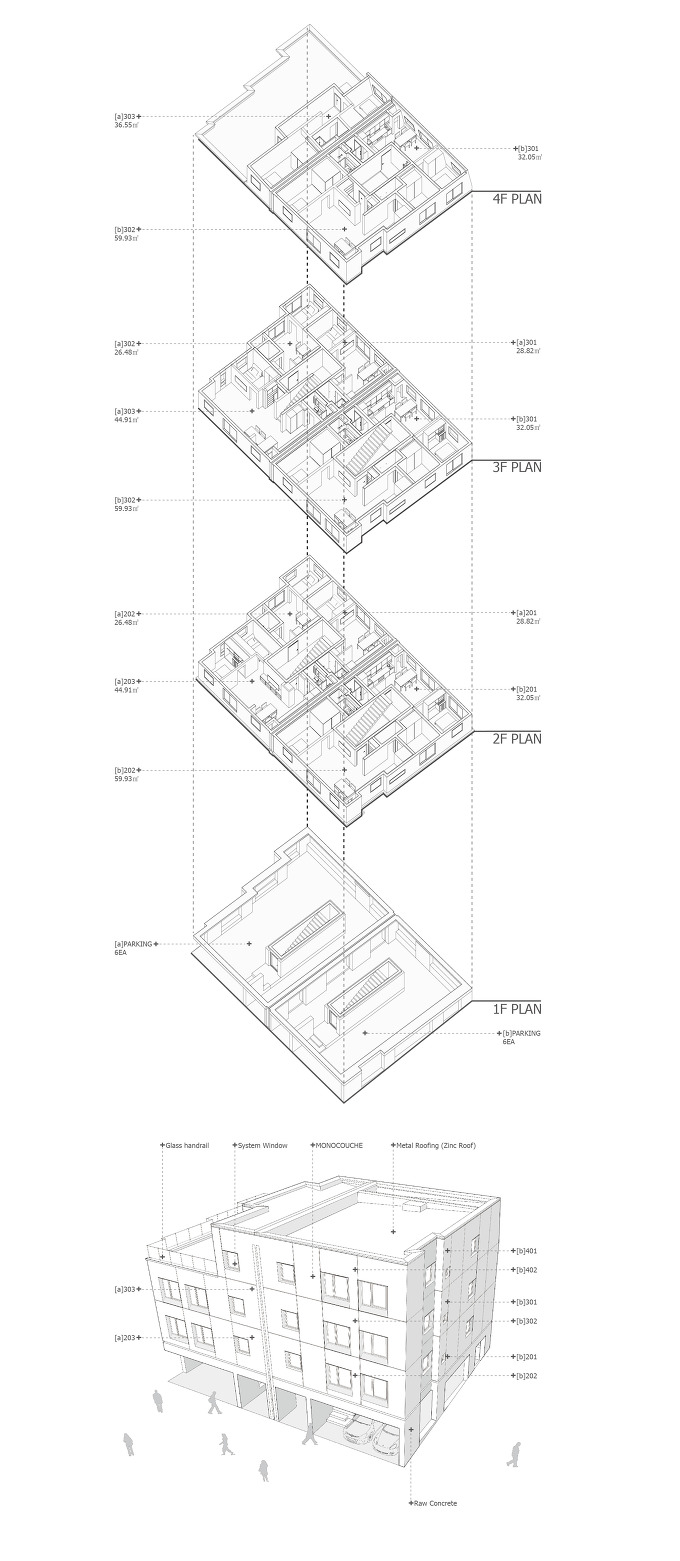
필지를 두개의 필지로 분필, 필지당 각 건물을 계획한다. 그리고 각 건물당 6가구를 계획한다. 6가구는 다시 임대를 위한 원룸형 5가구와 주인거주를 위한 1가구로 구분된다.
1층은 주차를 위해 전면에 필로티 형식을 취하며, 후면에 1가구가 자리한다. 임대세대 3가구가 자리한 2층과 주인세대, 임대세대, 도합 2가구가 자리한 3층으로 구성된다.
원룸 2개 모듈을 하나로 조닝한 주인세대는 다락과 옥상으로 연계되도록 계획, 반영한다.

공동주거 입면은 어렵다. 기능과 효율적인 측면을 고려해야 한다. 하지만 각기 다른 세대평면에 대응해야 하기 때문에 일률적으로 계획할 수 없다. 아니 다르게 계획해야 한다. 세대마다 주방이 어디 위치할지, 쇼파와 tv는 어디에 놓을지, 그러면서 활용할 수 있는 벽면은 어디인지 고려해야 한다.
전체 건축물의 통일감 있는 입면계획을 해야 한다. 우리가 지향하는 건축에 맞닿아 있어야 한다. 그래서 각 세대에 사용될 창문의 크기와 갯수를 정의해서, 이를 다시 전체 건물에 투영했다.
(틔움건축이 지향하는 건축방향은 미니멀이다. 거창한 단어같지만 내포하는 의미는 단순하다. 최소한의 건축을 통한 지속성을 확보하는 일. 그게 우리가 지향하는 건축이다.)


건축의 이름은 다르지만, 표현하는 방식은 같다. 건축주와 거주가 같은 단독주택의 경우가 아니더라도 집이 담아야 하는 바탕은 같다. 임대 또는 분양 거주에서도 '따뜻하고 쾌적한 집'을 만드는 작업은 동일하게 적용된다.
1. 임대세대를 위한 세대수 확보
2. 살기 좋은 각 세대유닛: 기능적을 생활동선 확보, 채광 및 환기가 원활한 공간
3. 유연한 거주환경: 사용자 거주방식에 따라 가변적으로 실을 확장, 구획
4. 주인세대 특화: 복층형 / 옥상마당 활용 / 가변적으로 3-4룸으로 확장 또는 구획
[A동]
연면적: 273.21㎡
건축면적: 136.71㎡
층수: 4층 (1층 필로티: 6대 주차 / 2층: 임대 3가구 / 3층: 임대2가구+ 주인세대 1가구 (4-5 복층형)
가구수: 6가구
주차: 6대
[B동]
연면적: 336.19㎡
건축면적: 126.99㎡
층수: 4층 (1층 필로티: 6대 주차 / 2층: 임대 2가구 / 3층: 임대 2가구 / 4층: 임대 1가구 + 주인세대 1가구)
가구수: 6가구
주차: 6대


2층 바닥 철근콘크리트 공정이 진행중이다. 골조를 완성하기 위해 철근배근 작업과 거푸집 제작을 콘크리트 타설 전에 선행한다. 벽체 골조는 철근배근 후 거푸집을 제작하고, 바닥골조는 거푸집 제작 후 철근을 배근한다.
철근배근은 콘크리트 타설만큼 중요한 작업이다. 콘크리트와 함께 철근콘크리트구조를 이루는 주요한 구조체 역활로 콘크리트의 부족한 인장력을 담당한다. 그럼에도 불구하고 철근배근은 타설이후 볼 수 없는 (구조체 내부에 삽입되는) 공정이기 때문에 시공중 현장감리를 충실해 해야한다.
구조도면에 명기된 스펙을 사용했는지, 배근상태(구조해석에 따라 일정간격으로 배치)는 괜찮은지, 수평과 수직부재(벽과 기둥, 보와 바닥)의 연결지점은 확실히 정착, 연결했는지 확인해야 한다. 안정적인 피복두께 확보를 위해 스페이서 설치 또한 잘 살펴봐야 한다.
실시도면처럼 시공하는 것이 시공자의 몫이라면, 이를 충실히 수행하고 있는지 3자 입장에서 관리감독하는 것은 설계자인 우리의 몫인 동시에 감리자의 몫이다.
[시공현장에서 사용하는 철근의 종류]
1. 철근은 아래와 같이 5가지 종류로 구분된다.

-원형철근 Round bar: φ , 6,9,12,13,16,19,22,25,28,36
-이형철근 Deformed bar: D 6, 10, 13, 16, 19, 22, 25, 29, 32, 35, 38, 41
-고강도 이형철근 HD H/D High tention Deformers bar
-일반철근 SD300, SD350 (D6, 10, 13, 16, 19 일반 이형철근)
-고강도철근 SD400, SD500 (HD6, 10, 13, 16, 19 고강도 이형철근)
*본 현장은 고강도철근 SD400제품을 사용하고 있다.
2. 철근종류를 읽는 방법


한국산업표준(KS) 규정에 의해 영문과 숫자가 1.5cm간격으로 양각되어 좌에서 우방향으로 읽으면 된다.
표기의 맨 앞에 *표시는 용접봉 철근을 표기하며, 그 다음 영문은 제조국가를 명기한다. 예를 들어, K는 korea를, J는 japan을 C는 china의 제조국을 나타낸다.
그 뒤 영문은 제조회사를 표시한다. HS는 현대제철, DK는 동국제강에서 생산한 것을 의미한다.
그 다음 숫자는 철근의 규격을 표시하며, 19는 19mm철근을, 25는 25mm철근을 의미한다.
마지막에 표시된 *또는 숫자는 강도를 표시한다.

SD300은 표기가 없다.
SD350은 숫자 3, 또는 *
SD400은 숫자 4, 또는 **
SD500은 숫자 5, 또는 ***
SD600은 숫자 6, 또는 ****
*본 현장에서는 현대제철에서 생산된HD10~HD19 고강도 철근(SD400) 제품을 각 부재에 따라 적용한다.
[이미지 및 내용일부는 kwca에서 발췌, 인용함]

바닥은 HD10(두께10mm)를 상부근과 하부근으로 나누어 @200간격으로 설치한다. 상부근과 하부근은 교차해서 시공한다.
보는 HD13~19(두께10mm~19mm)의 철근을 부재의 길이방향으로 상부와 하부에 설치하고, 테두리(늑근)을 HD10(두께10mm) 설치한다. 각기 다른 부재, 보와 바닥이 만나는 지점에는 철근을 교행하며 서로의 부착력을 높인다. 결속선으로 교차되는 철근위치를 정렬시킨다.




골조공사를 마무리하며, 그동안의 안전과 무사함을 축하한다. 동시에 앞으로 진행될 공사의 안전과 무사함을 똑같은 마음으로 기원한다. 상량식은 본래 주요한 구조공사 (예전 목조공사에서는 기둥을 세우고 보를 얹은 다음 마룻대를 올린 후 올리는 고사를 의미한다.)가 마무리 됨을 축하하고, 집이 잘 마무리 됨을 기원하는 자리이다. 상량식을 통해 관계자들은 마음가짐을 다잡는 계기가 된다.
누구하나 잘한다고 될일이 아니다. 건설사 대표님의 축언처럼 건축주, 설계자, 시공자가 한마음으로 건물의 완성도를 그려야 한다. 그래서 서로간의 건강한 견재와 응원이 필요하다.
상량식과 간단한 고시레를 마치고 건설사 대표님의 지난 공정 이야기와 앞으로 진행될 공사에 대한 허심탄회한 이야기가 진행됐다.


| [2019] CHA.UM (0) | 2024.01.02 |
|---|---|
| [2019] JCW 이태원 (5) | 2023.12.31 |
| [2018] 네묘집 (0) | 2023.12.25 |
| [2017] 화천문화센터 (0) | 2023.12.24 |
| [2017] 휘경 두자매집 (0) | 2023.12.22 |