2023. 12. 22. 17:05ㆍPROJECT/Story

인터뷰라는 낯선 단어보다, 건축주의 의중 또는 삶의 이야기를 듣는 시간으로 생각하자. 그럼, 왜? 건축주에게 삶의 양식을 물어보고, 그것들을 건축어휘로 정리하는 번거로운 일들을 할까? 현재 주거시장에서 통용되는 보편적인 주거공간을 그들에게 대입하여 주면 되는 일 아닌가? (조금 살을 붙이고, 잘라내고, 조금 다듬어서..)
그럼에도 불구하고 그들의 언어를 우리의 어휘로 바꾸고 곱씹는 이유가 있다. 30년, 40년 살아온, 그래서 자연스레 몸에 익은 생활을 담는 그릇이 되어야 하기 때문이다. 처음에 건축주는 모른다. 자신이 살고 싶어하는 집, 그릇의 모양새와 크기를.(너무나 당연한 일 아닌가. 그동안 그들에게 맞추어진 그릇, 집이 없었는데) 단지 인터넷에 떠다니는 무수한 이미지의 단편, 이를 조합한 꼴라주를 머리 속에 상상할 뿐이다.
구체화 작업을 위해, 그들이 원하는 지점을 정확하게 들여다 보고 짚어줘야 한다. 그리고 인지 시켜줘야 한다. 막연한 상상과 이미지 속에 있는 그들의 집을 정확하게 구현해야 한다. 그들이 위치한 지점과 미래에 머물 공간에 대해 정확하게 그려줘야 한다.
인터뷰는 짧게는 3시간에서 보통 4-5시간 정도 소요된다. 길다고 생각들 수도 있지만, 반대로 생각하면 그들의 삶을 통째로 듣는 자리이기 때문에 절대적으로 부족한 시간이기도 하다. 그래서 우리는 프로젝트를 시작할 수 있는 첫 단추정도로만 생각한다. 많은 건축가들과 건축주들이 겪는 경험처럼 설계를 진행 할 수록 생각이 바뀌기도 하고, 더 좋은 대안들이 나와 변경되기 때문에 절대적인 가이드라인은 아니다.
보통의 건축주들은 인터뷰를 낯설어 한다. 집을 짓는 경우가 첫번째 인 경우도 있고, 우리처럼 다짜고짜 그들의 생활을 깊숙히 물어 보는 사람이 없었기 때문이다. (솔직히, 다른 건축가는 건축주와 어떻게 진행하는지 잘 모른다, 다른 방법론 또는 우리와 유사한 방법을 택할 수도 있다.)
신기한 감정과 재미있는 감정을 표현하는데, 이는 집을 바라보는 시선이 다르기 때문이다. 주어진 집에 가구와 자신의 생활을 맞추었던 이전과 달리, 자신이 기준이 되어서 모든것이 맞추어 지기 때문이다.

편의상 언니네와 동생네로 세대를 구분, 호칭하기로 했다.
아이를 포함한 3인으로 구성된 언니네와 부부내외 2인으로 구성된 동생네, 총 2가구 설계를 시작한다.
변태적 기질(?)인지는 몰라도 제약조건이 건축공간을 풍성하게 만드는 것처럼, 이번 프로젝트도 많은 제약조건에서 시작한다.

북측에서 남측으로 올라가는 경사지 덕분에 평지보다 불리한 정북사선 적용, 석축으로 부터 이격거리 확보도 해야 한다. 더 재미있는 지점은 고도제한이 있어서 일정 높이 이상, 층수 이상 올리는게 힘든 상황이다. (그럼에도 불구하고 이러한 제약이 우리설계자를 불태우는 촉매제가 되기는 하겠지만...)
여기에 기존건축물(단층)을 유지, 증축해야 하는 까다로운 간섭사항이 있다. (이곳만의 매우 특수한 상황)
전체 건물은 남북을 가로지르는 주요동선축을 기점으로 주공간과 부공간으로 구성된다. 향에 대한 환경요인과 고지대에 위치한 지리적 특성상 열리는 전망; 동향과 남향에 관계를 주요하게 고려한다.

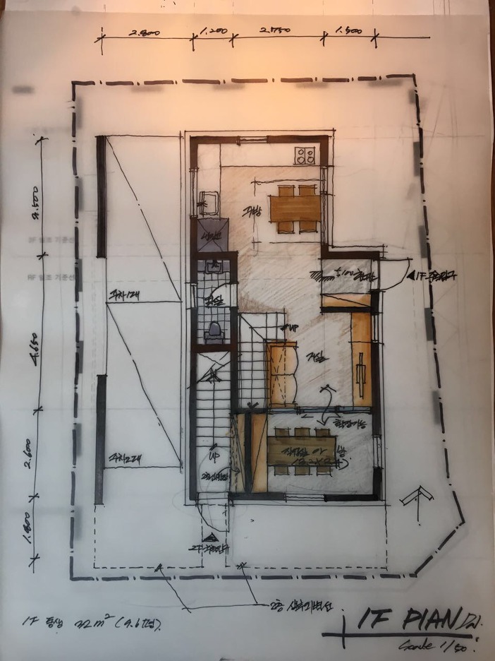
1층은 기존건물을 토대로 재정렬된다. 대신 각 세대 주차를 위한 2대 공간이 비어진다. 기존 마당은 두개로 구분, 마스터침실과 거실에서 연계 또는 확장되도록 계획한다.

남북축으로 자리한 주 동선축(계단)을 따라 주공간과 부공간이 자리한다. 남측과 동측에는 거실, 유아방(거실확장형 다목적공간), 주방이 대안에 따라 배치된다. 주방과 바로 연계되는 다용도실(보조주방, 세탁실, 팬트리)은 서측에 배치, 부출입구로 생활동선을 확보한다.
40대 젊은 건축주가 집을 짓는 다는것,
아이들과 부모님의 중간에서 가족을 이끌어가는 주체로서 가족계획의 변화가 있을수도 있으며, 여러가지 이유로 노부모님과 함께 할수도 있고 개인적인 사정으로 1가구를 임대를 줘야 할수도 있는 다양한 변화에 놓여있다 보니 가족구성원의 변화에 대해 상당히 예민해진다.
이렇게 본인의 거주 목적으로 집을 짓기로 결정하고 나면 향후10년은 함께 해야하는 집인데 가족구성원이 바뀐다면 내가 지금 짓는 집이 함께 할 수 있을까?
집을 짓지 않는다면 일반적으로 본인의 규모에 맞게 3룸, 4룸, 20평대, 30평대 아파트를 골라가며 상황에 맞게 움직이면 된다.
하지만 집을 짓게 된다면 상황은 달라진다. 지금 짓는 집이 나와 함께 변화되어 줘야 이 곳에서 거주목적의 우리집과 함께 할 수 있다.
집을 선택하는 기준은 가족구성원에 따라 달라진다. 방의 갯수, 집의 크기가 선택기준이 된다. (이사를 하게 되는, 집을 짓게 되는 이유가 된다.) 그 선택기준이 지금은 맞을 수 있지만 나중에 틀릴 수도 있다. 하지만 자신이 집을 짓는다면, 이야기는 달라진다. 선택지가 많아진다. 지금의 공간과 미래의 시간을 함께 담을 수 있는 계획을 건축가와 함께 나눌 수 있다.
가족구성원의 변화에 따라 주생활공간과 생활방식이 어떻게 달라지는지 이야기 할 수 있고, 그것을 예측해서 공간을 계획할 수 있다.
그래서 두자매, 아직 가족계획이 완료되지 않은 두가족을 위해 현재와 미래를 함께 고민한다.현재 드레스룸을 둘째를 위한 실로 변경할 수도 있고, 작업실을 지금과 달리 거실로 확장하여 사용할 수 있도록 계획한다.
그렇게 지금의 취향과 가족구성원의 변화에 따른 10년, 20년을 계획한다.

언니네와 동생네; 2가구는 각각 1,2층 복층형으로 구성된 동생네와 2,3층 복층형으로 구성된 언니네로 구성한다.
2가구의 주출입구의 위치 별도의 사생활을 위해 주출입구를 분리한다. 2층부터 시작되는 언니네의 현관은 2층까지의 거리를 생각하여 최대한 남측도로에서 짧은 쪽으로 위치를 잡고 1층의 동생네는 남측도로로 열려있는 대지의 상황을 반영하여 1층의 외부노출을 최소화 하기 위해 동측으로 우회하여 주출입구를 계획한다.
언니네 진입 계단(남북축을 가로지는 동선은 동생네와 언니네를 구분 짓는 구분자로 사용된다.) 을 경계로 주차장과 동생네 공용공간으로 영역이 분리된다.
동생네의 공용공간이 배치된 1층은 동측의 주출입을 중심으로 남북측으로 실을 계획한다.
외부 중정과 밀착된 환경을 위해 주방+식당을 북측에 배치하며 거실과 오픈형 계단 그리고 거주자의 알파공간(개인 작업실 또는 거실 확장공간)을 남측에 배치한다.

2층은 언니네와 동생네의 마스터공간이 함께 자리한 만큼 (한정적인 평면 속에 3개의 계단을 배치하고 각각의 거주공간을 확보해야 한다.) 서로의 조율과정과 이야기가 필요한 지점이다.
남북축으로 가로지르는 동선 (언니네 진입계단) 을 기점으로 2층은,
동측에 동생네를 북서측에 언니네를 배치한다. 『 + 』 엇갈린 퍼즐같이 맞춰진다.
동생네 마스터에 자리한 침실과 드레스룸은 오픈형 계단으로 아래층과 연결되며, 시간차에 따라 가변적으로 사용할 수 있도록 설계한다. 이는 동생네가 요청한 사항으로 가족계획에 따라 사업의 방향에 따라 유연하게 거주할 수 있도록 했다.
(별도로 사용할 수도, 확장하여 사용할 수도 있다. 분리하여 사용할 경우도 실의 성격을 달리하여 사용할 수 있도록 한다.)

동생네에 비해 언니네 프로그램은 좀 더 고민이 된다. 전체 면적의 60%이상을 차지하는 영역이면서 전체 집의 색채를 결정하는 역활을 하기 때문에 조금 더 두들겨 봐야 한다.
언니네 2층은 2가지 대안으로 방향을 설정한다. 마스터공간을 명확히 구분, 분리하는 대안과 공용공간과 함께 엮이는 확장하는 대안을 설정한다.
(우리의 설계 방법론일 수도 있는데, 명확한 답을 찾기 전까지는 많은 가지수를 열어두고 공간에 대해 건축주와 의견조율을 한다. 사실 건축주와 이전 미팅에서 분리된 마스터공간으로 결정했다. 그런데 설계를 진행해 보니, 한번 더 두들겨 봐야 할 필요가 생겨서 내부적으로 대안을 설정해 본거다. 덕분에 2시간 이상 건축주와 더 고민하는 시간을 갖게 되었다.)
언니네의 심장역활을 해줄 내부계단은 2층 서측 전실에서 시작한다. 상부다락까지 연결된 오픈형 내부계단은 고측창을 계획하여 환기 및 채광을 2층 전실까지 연결한다
이러한 2층 전실을 구심점으로 마스터공간과 침실을 남북으로 연계하여 전실의 성격을 마스터공간과 함께 확장할 수도, 분리하여 자립적인 성격(오픈형 계단과 엮인 진열장, 선반, 책장)으로도 구성할 수 있다. 물론, 남측에 위치한 침실과 확장 할 수도 있다. 확장성에 따라 전실의 성격과 전체 내부구성의 방향이 달라질 수 있기 때문에 한번 더 고민을 하게 된다.

언니네 공용공간으로 확정된 3층은 세부적인 이야기만 더 하면 될 듯 싶다.
내부와 내부, 내부와 외부의 열림과 연결을 위한 동선은 자연스레 평면을 4분면으로 구분한다. 북측 테라스의 연계성을 고려한 주방과 식당 그리고 거실이 자리한다. 남측에 위치한 온실 또한 거실과 연계성을 유념하여 배치한다.
남편의 서재 겸 아이의 낮잠방을 그 맞은편에 위치시킨다.

내부 다용도실 구성과 외부 테라스 사용에 따라 변형해 본다.
| [2018] 네묘집 (0) | 2023.12.25 |
|---|---|
| [2017] 화천문화센터 (0) | 2023.12.24 |
| [2017] 앨리스의 미로 (0) | 2023.12.22 |
| [2017] 삶가구 (0) | 2023.12.22 |
| [2017] 아이린 (0) | 2023.12.11 |